Eladó családi ház
Siófok
Részletes adatok
Az OTP Bank lakáshitel ajánlataFizetett hirdetés
Induló törlesztőrészlet
101 262 Ft /hóTörlesztőrészlet a 13. hónaptól
129 106 Ft /hóInduló törlesztőrészlet
135 016 Ft /hóTörlesztőrészlet a 13. hónaptól
172 142 Ft /hóA tájékoztatás nem teljes körű és nem minősül ajánlattételnek. Az OTP Évnyerő Lakáshitelei 1 éves türelmi idős kölcsönök, amellyel az első 12 hónapban alacsonyabb a havi törlesztőrészlet. A tőke törlesztését a 13. hónaptól kell megkezdeni.
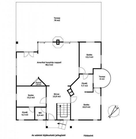
Eladó családi ház leírása
Balaton déli partján, Siófokon, 280 m2-es családi ház eladó. Az ingatlan Szabadifürdő városrész csendes utcájában helyezkedik el, Balaton-part 900 méterre, M7 autópálya csatlakozás 2400 méter távolságban van. Az átlagosnál nagyobb méretű telek területe, ami 3 ingatlan összevonásával alakult ki: 2681 m2. A parkszerű igényes kertépítészeti elemekkel körülvett lakóépület intim külső terekkel kapcsolódik a belső lakótérhez. A kertben úszómedence, kerti tó, grillezőhely, kerti lak épített elemek találhatók parkolókkal, kerti utakkal és sétányokkal. A kertfenntartáshoz fúrt kút és automata öntözőrendszer került létesítésre. A telek súlypontjában elhelyezett lakóépület belső terei kedvező benapozást biztosítanak. A három szintes épület földszintjén lakótér teraszkapcsolatokkal és hálószobák vizesblokkokkal, tetőtérben galéria és hálószoba funkciók vizesblokkal kerültek kialakításra. A pinceszinten kazánház és tároló kapott helyet. A belső terek egyedi építészeti megoldásokkal kivitelezettek, igényes felületekkel, burkolatokkal. A villaépület alkalmas állandó lakhatásra vagy nyaralás céljára is. Az ár tartalmazza a teljes berendezést. Bővebb információért keressen telefonon! M307812
360000000 Ft
Referencia szám: M307812
Hirdetés feltöltve: 2025. 07. 24. Utoljára módosítva: 2025. 10. 21.
Az ingatlan elhelyezkedése
Cím: Siófok
Eladó családi házak a környékről
