Stay Family Park

Eladó családi ház
Siklós

+ 11 kép 1/14
50 000 000 Ft50 M Ft 312 500 Ft/m2
3 szoba
160 m2
építés éve:1980

Részletes adatok

Telekméret: 619 m2
Fűtés: Gázkazán
Energetikai besorolás: Nem adta meg a hirdető

Az OTP Bank lakáshitel ajánlataFizetett hirdetés

+36 20 502
Szenk László
referens

Érdekel az OTP Bank kedvezményes lakáshitel ajánlata? *

* A kérdésre „Igen” válasz bejelölése esetén, az „Üzenet küldése” gombra kattintva kijelentem, hogy az OTP Bank Nyrt. Adatkezelési tájékoztatójának tartalmát megismertem és tudomásul vettem.

Eladó családi ház leírása

Eladó Kétszintes Ház Siklós, Családi Házas Övezetében!
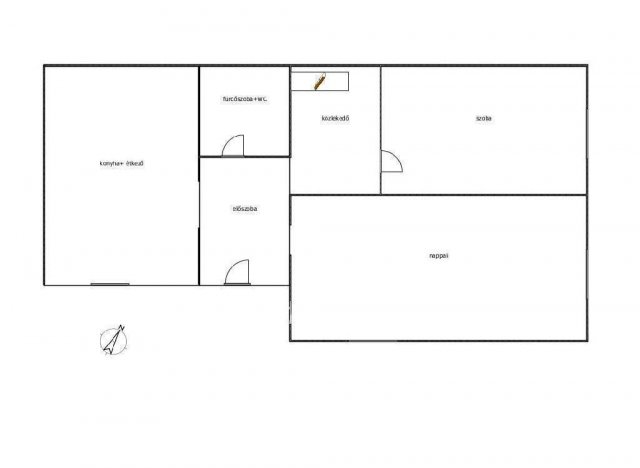
A város egyik csendes részén ajánljuk figyelmébe ezt a 70-es években épült, kétszintes, 80 m2 alapterületű, összesen 160 m2-es lakóterű, önálló családi házat.
Az alsó szint teljesen felújított: nappali + 1 hálószoba, tágas konyha étkezővel, fürdőszoba WC-vel és előtér található, ahol a víz- és villanyvezetékek, gépészet teljes cseréje megtörtént.
A felső szint 80 négyzetméter, ahol minden nyílászáró korszerűsítve, a válaszfalak és betonozás előkészítve, így az új tulajdonos saját elképzelése szerint alakíthatja ki a fürdőszobát, WC-t, konyhát, burkolatokat.

Az ingatlan új tetővel és teljes körű szigeteléssel rendelkezik. Fedett, három gépkocsi számára alkalmas beálló, a 619 négyzetméteres, teljesen sík telken. Kiválóan alkalmas két generáció együttélésére!

A közelben minden megtalálható: iskola, óvoda, boltok, buszmegálló.
További információért forduljon hozzám bizalommal!

Referenciaszám: M309056

Hirdetés feltöltve: 2025. 10. 16. Utoljára módosítva: 2025. 11. 26.

3 szobás családi házak ára Siklóson

Ebből az összehasonlításból megtudhatod, hogyan viszonyul a lakás ára a környékbeli családi házak átlagos árához. Ez nem azt jelenti, hogy ennyivel olcsóbb vagy drágább, mint amennyit a lakás ér, hanem hogy ennyivel tér el a környékbeli átlagtól.

Ennek a m² ára
Siklós m² ár
313 e Ft
400 e Ft 22%
Ennek az ára
Siklós átlagár
50 M Ft m Ft
42.7 m Ft -17%

Az ingatlan elhelyezkedése

Cím: Siklós

Eladó családi házak a környékről

Eladó családi ház
Eladó családi ház

Mohács

25 M Ft
4 szoba
120 m2
Eladó családi ház
Eladó családi ház

Siklós

9.8 M Ft
2 szoba
63 m2
Eladó családi ház
Eladó családi ház

Siklós

270 M Ft
8 szoba
600 m2
Eladó családi ház
Eladó családi ház

Siklós

61.5 M Ft
3 szoba
114 m2
Eladó családi ház
Eladó családi ház

Szigetvár

24.99 M Ft
2 + 1 szoba
105 m2
Eladó családi ház
Eladó családi ház

Lippó, Kossuth

95.338 M Ft
2 szoba
160 m2
Eladó családi ház
Eladó családi ház

Siklós, Bartha utca

110 M Ft
6 szoba
180 m2
Eladó családi ház
Eladó családi ház

Mohács

16.2 M Ft
4 szoba
96 m2
Eladó családi ház
Eladó családi ház

Mohács

25 M Ft
2 szoba
72 m2
Eladó családi ház
Eladó családi ház

Siklós

79.9 M Ft
5 szoba
195 m2
Eladó családi ház
Eladó családi ház

Siklós

9.8 M Ft
2 szoba
63 m2
Eladó családi ház
Eladó családi ház

Siklós

44.9 M Ft
6 szoba
250 m2
Eladó családi ház
Eladó családi ház

Siklós

67.9 M Ft
4 szoba
138 m2
Eladó családi ház
Eladó családi ház

Siklós

119 M Ft
8 szoba
240 m2
Eladó családi ház
Eladó családi ház

Somogyviszló

5.5 M Ft
1 szoba
45 m2
Eladó családi ház
Eladó családi ház

Pécs, Ispitaalja, Bajcsy-Zsilinszky Endre utca

26.5 M Ft
1 szoba
44 m2
Eladó családi ház
Eladó családi ház

Pécs

44.9 M Ft
2 szoba
60 m2
Eladó családi ház
Eladó családi ház

Siklós

270 M Ft
8 szoba
600 m2
Eladó családi ház
Eladó családi ház

Versend

15.5 M Ft
5 szoba
140 m2
Eladó családi ház
Eladó családi ház

Pécs

299 M Ft
5 szoba
350 m2
Eladó családi ház
Eladó családi ház

Siklós

270 M Ft
7 szoba
560 m2
Eladó családi ház
Eladó családi ház

Pécs, Ürög, Mária dűlő

15.995 M Ft
654 m2
Eladó családi ház
Eladó családi ház

Siklós, Külterület

61.5 M Ft
2 szoba
110 m2
Eladó családi ház
Eladó családi ház

Pécs, Ürög, Mária dűlő

15.995 M Ft
654 m2

Falusi CSOK ingatlanok

Eladó családi ház
Eladó családi ház

Harsány

14.999 M Ft
4 szoba
80 m2
Eladó családi ház
Eladó családi ház

Örkény

36.5 M Ft
2 szoba
56 m2
Eladó családi ház
Eladó családi ház

Hegyeshalom

85 M Ft
4 + 1 szoba
123 m2
Eladó családi ház
Eladó családi ház

Szigliget

299 M Ft
3 szoba
95 m2
Eladó családi ház
Eladó családi ház

Orci

119.9 M Ft
6 szoba
200 m2
Eladó családi ház
Eladó családi ház

Olaszfa

70.38 M Ft
3 szoba
139 m2
Eladó családi ház
Eladó családi ház

Szederkény

107.9 M Ft
6 szoba
224 m2
Eladó családi ház
Eladó családi ház

Villány

65 M Ft
3 szoba
95 m2