Aerogate Homes

Eladó családi ház
Sárisáp

Figyelem!

Ez az ingatlan a 2019.07.01-től induló falusi CSOK által támogatott településen található

+ 17 kép 1/20
95 000 000 Ft95 M Ft 527 778 Ft/m2
4 szoba
180 m2
építés éve:1984

Részletes adatok

Telekméret: 730 m2
Fűtés: Egyéb
Energetikai besorolás: Nem adta meg a hirdető

Az OTP Bank lakáshitel ajánlataFizetett hirdetés

+36 70 605
Vadászi Zita
Immo1 Esztergom

Érdekel az OTP Bank kedvezményes lakáshitel ajánlata? *

* A kérdésre „Igen” válasz bejelölése esetén, az „Üzenet küldése” gombra kattintva kijelentem, hogy az OTP Bank Nyrt. Adatkezelési tájékoztatójának tartalmát megismertem és tudomásul vettem.

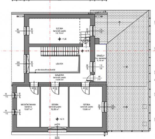
Eladó családi ház leírása

Eladó Sárisáp családi házas övezetében, 730 m2 telken elhelyezkedő 180 m2 alapterületű "A+++ " energetikai besorolású családi ház.
Helyiségei:
- A földszintet tágas terek jellemzik : előtér, beépített modern, gépesített konyha, étkező, nappali, fürdőszoba, nyitott lépcső a felső szintre. A földszinten kapott helyet a garázs, beállás az utcáról lehetséges.
- A felső szinten a galériáról nyílik a 3 szoba és az emeleti fürdőszoba (szerkezetkész állapotú).
- A pince szinten található a gépészet.
Építés éve 1984, tégla falazattal.
6 éve a következő felújításokat végezték el az ingatlanon:
- műanyag külső nyílászárók
- víz, csatorna felújítása
- 10 cm dryvit külső szigetelés
- villany hálózat felújítása, az áram költsége minimális, a napelemrendszer fedezi az ingatlan áramfogyasztását!
- 10 KW-os napelemrendszer telepítése:
nappali 3x25 A; irányított 1x32 A; H-tarifa - 3x25A
- 12KW-os hőszivattyú biztosítja az otthon melegét, padlófűtéssel, amely több szakaszon szabályozható.
A rendezett kert, téglakerítéssel körbekerített.
Az ingatlan vásárlást követően azonnal birtokba vehető!

Hirdetés feltöltve: 2025. 11. 14. Utoljára módosítva: 2025. 12. 11.

Az ingatlan elhelyezkedése

Cím: Sárisáp

Eladó ingatlanok a környékről

Eladó családi ház
Eladó családi ház

Sárisáp

68.99 M Ft
4 + 2 szoba
170 m2
Eladó családi ház
Eladó családi ház

Tatabánya, Felsőgalla, Réce

58.5 M Ft
3 + 1 szoba
130 m2
Eladó családi ház
Eladó családi ház

Oroszlány

360 M Ft
27 szoba
478 m2
Eladó családi ház
Eladó családi ház

Komárom

135 M Ft
7 + 2 szoba
254 m2
Eladó családi ház
Eladó családi ház

Oroszlány

54.9 M Ft
3 szoba
112 m2
Eladó családi ház
Eladó családi ház

Tarján

119.9 M Ft
5 szoba
220 m2
Eladó családi ház
Eladó családi ház

Héreg, Rákóczi Ferenc utca

67.99 M Ft
6 szoba
303 m2
Eladó családi ház
Eladó családi ház

Kisbér, Kossuth Lajos utca

69 M Ft
4 szoba
155 m2
Eladó családi ház
Eladó családi ház

Pilismarót

33 M Ft
3 szoba
86 m2
Eladó családi ház
Eladó családi ház

Tatabánya, Bánhida, Károlyi Mihály utca

36 M Ft
3 + 1 szoba
95 m2
Eladó családi ház
Eladó családi ház

Tatabánya, Alsógalla

57 M Ft
4 + 1 szoba
205 m2
Eladó családi ház
Eladó családi ház

Sárisáp, Fő út

39.9 M Ft
3 szoba
70 m2
Eladó családi ház
Eladó családi ház

Sárisáp

31.5 M Ft
3 szoba
76 m2
Eladó családi ház
Eladó családi ház

Esztergom

98 M Ft
3 szoba
92 m2
Eladó családi ház
Eladó családi ház

Komárom

64.15 M Ft
2 + 1 szoba
71 m2
Eladó családi ház
Eladó családi ház

Tatabánya

95 M Ft
10 + 4 szoba
150 m2
Eladó családi ház
Eladó családi ház

Sárisáp

45.9 M Ft
2 szoba
65 m2
Eladó panellakás
Eladó panellakás

Tatabánya, Gál István lakótelep, Mártírok útja

48.9 M Ft
3 szoba
54 m2
Eladó családi ház
Eladó családi ház

Nagyigmánd

129 M Ft
4 + 1 szoba
163 m2
Eladó nyaraló
Eladó nyaraló

Tata

27.5 M Ft
2 szoba
36 m2
Eladó családi ház
Eladó családi ház

Nyergesújfalu

38 M Ft
5 szoba
111 m2
Eladó családi ház
Eladó családi ház

Tatabánya

132 M Ft
5 szoba
180 m2
Eladó családi ház
Eladó családi ház

Esztergom, Visegrádi út 69

179.99 M Ft
6 szoba
187 m2
Eladó családi ház
Eladó családi ház

Sárisáp, Hunyadi János utca

31.5 M Ft
3 szoba
76 m2

Falusi CSOK ingatlanok

Eladó családi ház
Eladó családi ház

Röszke

99.99 M Ft
4 szoba
122 m2
Eladó ikerház
Eladó ikerház

Alcsútdoboz, Külterület

37.5 M Ft
2 szoba
80 m2
Eladó családi ház
Eladó családi ház

Kemeneshőgyész

8 M Ft
2 szoba
60 m2
Eladó családi ház
Eladó családi ház

Somogygeszti

38.6 M Ft
3 + 1 szoba
98 m2
Eladó családi ház
Eladó családi ház

Abaújszántó

19.99 M Ft
3 szoba
84 m2
Eladó családi ház
Eladó családi ház

Tótújfalu

6.9 M Ft
4 szoba
120 m2
Eladó családi ház
Eladó családi ház

Fertőd

65 M Ft
3 szoba
90 m2
Eladó családi ház
Eladó családi ház

Verseg

84.9 M Ft
6 szoba
152 m2

Falusi CSOK ingatlanok

Eladó ikerház
Eladó ikerház

Bodajk

64.9 M Ft
5 szoba
108 m2
Eladó családi ház
Eladó családi ház

Ölbő

15 M Ft
3 szoba
103 m2
Eladó családi ház
Eladó családi ház

Somogygeszti

38.6 M Ft
3 + 1 szoba
98 m2
Eladó családi ház
Eladó családi ház

Tótújfalu

6.9 M Ft
4 szoba
120 m2
Eladó családi ház
Eladó családi ház

Annavölgy

79 M Ft
2 szoba
67 m2
Eladó családi ház
Eladó családi ház

Tápiógyörgye

22.9 M Ft
3 szoba
120 m2
Eladó családi ház
Eladó családi ház

Üllés

35.5 M Ft
3 szoba
99 m2
Eladó családi ház
Eladó családi ház

Mezőfalva

39 M Ft
3 szoba
77 m2