Astora Art House

Eladó családi ház
Sárbogárd

74 000 000 Ft74 M Ft 725 490 Ft/m2
3 szoba
102 m²
építés éve:2026

Részletes adatok

Telekméret: 2341 m2
Fűtés: Egyéb
Komfort: Összkomfortos
Energetikai besorolás: A+

Az OTP Bank lakáshitel ajánlataFizetett hirdetés

+36 20 236
Rapai Klaudia
referens

Érdekel az OTP Bank kedvezményes lakáshitel ajánlata? *

* A kérdésre „Igen” válasz bejelölése esetén, az „Üzenet küldése” gombra kattintva kijelentem, hogy az OTP Bank Nyrt. Adatkezelési tájékoztatójának tartalmát megismertem és tudomásul vettem.

Eladó családi ház leírása

Új építésű, személyre szabható álom otthon - már az építkezés megkezdése előtt foglalható!

Fejér megyében, Sárbogárdon, látványtervek alapján kínálunk megvételre egy új építésű, 102 m2-es családi házat, amely már az építkezés megkezdése előtt lefoglalható.

A legnagyobb előnye, hogy a tervek teljes mértékben variálhatók a vevő igényei szerint, így valóban olyan otthon születhet, ami az Ön életstílusához és elképzeléseihez igazodik - egyedi, személyre szabott megoldásokkal.

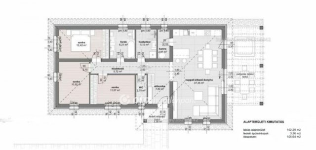
A jelenlegi alaprajz szerint az ingatlanban:

- 3 külön nyíló szoba

- tágas, amerikai konyhás nappali-étkező

- valamint egy fedett terasz kap helyet, ami tökéletes a nyári estékhez, pihenéshez, beszélgetésekhez.

A ház egy 2347 m2-es telken épül, így bőven marad tér kertnek, játszótérnek, kocsibeállónak vagy akár egy későbbi medencének is.

Ideális választás családoknak, akik modern, új otthont szeretnének, és azoknak is, akik most alakítanák ki az igényeikre szabott álomházukat.

Érdeklődjön bizalommal!

Hirdetés feltöltve: 2026. 04. 01. Utoljára módosítva: 2026. 05. 14.

3 szobás családi házak ára Sárbogárdon

Ebből az összehasonlításból megtudhatod, hogyan viszonyul a lakás ára a környékbeli családi házak átlagos árához. Ez nem azt jelenti, hogy ennyivel olcsóbb vagy drágább, mint amennyit a lakás ér, hanem hogy ennyivel tér el a környékbeli átlagtól.

Ennek a m² ára
Sárbogárd m² ár
725 e Ft
428 e Ft -69%
Ennek az ára
Sárbogárd átlagár
74 M Ft m Ft
45.3 m Ft -64%

Az ingatlan elhelyezkedése

Cím: Sárbogárd

Eladó családi házak a környékről

Etyek
Eladó családi ház

Etyek

160 M Ft
6 szoba
228 m²
Sárbogárd
Eladó családi ház

Sárbogárd

44 M Ft
4 szoba
170 m²
Szabadbattyán
Eladó családi ház

Szabadbattyán

357.518 M Ft
9 + 2 szoba
1053 m²
Iváncsa, Táncsics Mihály utca
Eladó családi ház

Iváncsa

86 M Ft
4 szoba
120 m²
Sárbogárd
Eladó családi ház

Sárbogárd

59 M Ft
3 szoba
126 m²
Kulcs
Eladó családi ház

Kulcs

180 M Ft
8 szoba
167 m²
Sárbogárd
Eladó családi ház

Sárbogárd

27.999 M Ft
2 szoba
48 m²
Sárbogárd
Eladó családi ház

Sárbogárd

45 M Ft
3 szoba
205 m²
Székesfehérvár
Eladó családi ház

Székesfehérvár

69.9 M Ft
3 szoba
95 m²
Adony
Eladó családi ház

Adony

8 M Ft
2 szoba
30 m²
Mór
Eladó családi ház

Mór

110 M Ft
12 szoba
340 m²
Bakonycsernye
Eladó családi ház

Bakonycsernye

39 M Ft
3 szoba
350 m²
Pusztaszabolcs
Eladó családi ház

Pusztaszabolcs

143.9 M Ft
4 szoba
149 m²
Sárbogárd
Eladó családi ház

Sárbogárd

7 M Ft
2 szoba
39 m²
Vértesacsa
Eladó családi ház

Vértesacsa

86 M Ft
3 + 1 szoba
123 m²
Lepsény, Róka sétány
Eladó családi ház

Lepsény

64.9 M Ft
5 + 1 szoba
203 m²
Sárbogárd
Eladó családi ház

Sárbogárd

22.9 M Ft
3 szoba
51 m²
Sárbogárd
Eladó családi ház

Sárbogárd

65.5 M Ft
5 szoba
183 m²
Felcsút, Rákóczi Ferenc utca
Eladó családi ház

Felcsút

32 M Ft
2 + 1 szoba
55 m²
Alcsútdoboz, Szabadság utca
Eladó családi ház

Alcsútdoboz

320 M Ft
12 szoba
620 m²
Gánt, Gánti út
Eladó családi ház

Gánt

29.9 M Ft
2 + 1 szoba
40 m²
Csákvár, Kossuth utca
Eladó családi ház

Csákvár

76 M Ft
1 szoba
181 m²
Sárbogárd
Eladó családi ház

Sárbogárd

44 M Ft
4 szoba
170 m²
Sárbogárd
Eladó családi ház

Sárbogárd

11.5 M Ft
1 + 1 szoba
105 m²

Falusi CSOK ingatlanok

Mikepércs
Eladó családi ház

Mikepércs

56 M Ft
3 + 1 szoba
87 m²
Verseg
Eladó családi ház

Verseg

69.9 M Ft
4 szoba
0 m²
Zsámbok
Eladó családi ház

Zsámbok

30 M Ft
2 szoba
58 m²
Sződ
Eladó családi ház

Sződ

116.9 M Ft
4 + 1 szoba
102 m²
Hahót
Eladó családi ház

Hahót

48 M Ft
4 + 1 szoba
110 m²
Badacsonytomaj
Eladó családi ház

Badacsonytomaj

285 M Ft
4 szoba
230 m²
Bakonyszentlászló
Eladó családi ház

Bakonyszentlászló

48.5 M Ft
3 szoba
103 m²
Verseg
Eladó családi ház

Verseg

41.5 M Ft
2 szoba
55 m²