Avico Greentop

Eladó családi ház
Sajókaza

Figyelem!

Ez az ingatlan a 2019.07.01-től induló falusi CSOK által támogatott településen található

+ 17 kép 1/20
22 000 000 Ft22 M Ft 157 143 Ft/m2
4 szoba
140 m²
építés éve:1983

Részletes adatok

Állapot: Átlagos
Telekméret: 669 m2
Fűtés: Egyéb
Parkolás: Garázs
Energetikai besorolás: Nem adta meg a hirdető
Zenga Premier

Friss hirdetések, amiket nem találsz meg más ingatlankereső portálon.

Fedezd fel elsőként a Zenga Premier címkés eladó ingatlanokat!

További részletek a zenga.hu-n

Az OTP Bank lakáshitel ajánlataFizetett hirdetés

+36 20 491
Pucsok Hajnalka
referens

Érdekel az OTP Bank kedvezményes lakáshitel ajánlata? *

* A kérdésre „Igen” válasz bejelölése esetén, az „Üzenet küldése” gombra kattintva kijelentem, hogy az OTP Bank Nyrt. Adatkezelési tájékoztatójának tartalmát megismertem és tudomásul vettem.

Eladó családi ház leírása

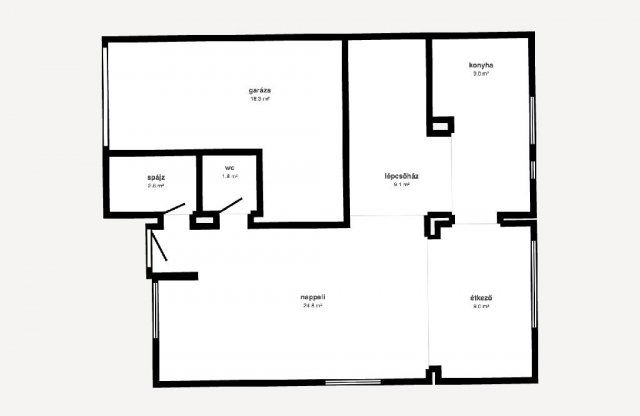
Eladó Sajókaza csendes, nyugodt utcájában egy 140 m2-es, kétszintes, tégla építésű családi ház, Miskolctól 30 percre. Az ingatlan praktikus elosztású: világos nappali amerikai konyhával és étkezővel, teraszkapcsolattal, valamint 3 különnyíló hálószoba biztosít kényelmes életteret. A fürdőszoba mellett külön WC is rendelkezésre áll. A 25 m2-es fedett terasz kiváló helyszíne családi összejöveteleknek, a 669 m2-es, rendezett, bekerített telek pedig ideális kertészkedéshez vagy pihenéshez. Az ingatlanhoz garázs is tartozik. Fűtéséről gázkazán és vegyes tüzelésű kazán gondoskodik, a műanyag nyílászárók, klíma, riasztó- és kamerarendszer pedig a kényelmet és biztonságot növelik. Kiváló választás nagyobb családok számára. Az ingatlanra Falusi CSOK, CSOK Plusz és OTTHON START 3%-os hitel is igénybe vehető. Ingatlanirodánk ügyvédi háttérrel, OTP Banki hátterünknek köszönhetően finanszírozási igényekben (pl. Otthon Start Hitelprogram, Babaváró, Falusi CSOK, CSOK Plusz, Lakáshitel, Személyi kölcsön stb.), illetve biztosítások tekintetében is díjmentesen, soron kívüli ügyintézéssel segítem ügyfeleim! Érdeklődés esetén hivatkozzon az M324637 referenciaszámra!

Hirdetés feltöltve: 2026. 03. 21. Utoljára módosítva: 2026. 03. 21.

Az ingatlan elhelyezkedése

Cím: Sajókaza

Eladó ingatlanok a környékről

Bükkaranyos
Eladó nyaraló

Bükkaranyos

19.9 M Ft
1 + 2 szoba
70 m²
Komlóska
Eladó családi ház

Komlóska

55.9 M Ft
7 szoba
247 m²
Miskolc
Eladó panellakás

Miskolc

33.5 M Ft
1 + 2 szoba
55 m²
Szikszó
Eladó családi ház

Szikszó

37 M Ft
2 szoba
91 m²
Onga
Eladó családi ház

Onga

92.9 M Ft
4 szoba
160 m²
Kistokaj
Eladó nyaraló

Kistokaj

9.99 M Ft
1 + 1 szoba
21 m²
Bükkszentkereszt
Eladó nyaraló

Bükkszentkereszt

70 M Ft
15 szoba
281 m²
Szomolya
Eladó családi ház

Szomolya

21.5 M Ft
2 szoba
75 m²
Kazincbarcika
Eladó téglalakás

Kazincbarcika

17.7 M Ft
1 + 1 szoba
42 m²
Sajókaza
Eladó családi ház

Sajókaza

13.9 M Ft
3 szoba
77 m²
Bánhorváti
Eladó családi ház

Bánhorváti

54.5 M Ft
4 szoba
151 m²
Sajószentpéter
Eladó téglalakás

Sajószentpéter

15.95 M Ft
1 + 1 szoba
42 m²
Sajókaza, Május 1 utca
Eladó családi ház

Sajókaza

13.9 M Ft
3 szoba
120 m²
Sajószentpéter, Borsvezér
Eladó családi ház

Sajószentpéter

49.5 M Ft
6 szoba
220 m²
Miskolc
Eladó családi ház

Miskolc

89.999 M Ft
4 szoba
128 m²
Ózd
Eladó családi ház

Ózd

26.5 M Ft
3 szoba
100 m²
Léh
Eladó családi ház

Léh

23.99 M Ft
2 + 1 szoba
100 m²
Miskolc
Eladó téglalakás

Miskolc

20.9 M Ft
1 + 1 szoba
43 m²
Miskolc
Eladó téglalakás

Miskolc

41.49 M Ft
2 szoba
55 m²
Miskolc, Fő
Eladó családi ház

Miskolc

48 M Ft
2 szoba
48 m²
Felsőzsolca
Eladó családi ház

Felsőzsolca

89.9 M Ft
6 szoba
220 m²
Sajókaza
Eladó családi ház

Sajókaza

22 M Ft
3 szoba
150 m²
Szikszó
Eladó családi ház

Szikszó

89.9 M Ft
3 szoba
100 m²
Ózd
Eladó családi ház

Ózd

25.99 M Ft
4 szoba
198 m²

Falusi CSOK ingatlanok

Devecser
Eladó családi ház

Devecser

39.9 M Ft
3 szoba
75 m²
Emőd
Eladó családi ház

Emőd

34.99 M Ft
2 szoba
74 m²
Somogyszil
Eladó családi ház

Somogyszil

27.9 M Ft
3 szoba
140 m²
Törtel
Eladó családi ház

Törtel

35 M Ft
3 szoba
52 m²
Kislőd
Eladó családi ház

Kislőd

23.9 M Ft
2 szoba
68 m²
Felsőmocsolád
Eladó családi ház

Felsőmocsolád

48 M Ft
4 szoba
150 m²
Balatonszárszó
Eladó családi ház

Balatonszárszó

178 M Ft
6 szoba
260 m²
Balatonszemes
Eladó téglalakás

Balatonszemes

125.2 M Ft
2 szoba
50 m²

Falusi CSOK ingatlanok

Emőd
Eladó családi ház

Emőd

34.99 M Ft
2 szoba
74 m²
Karád
Eladó családi ház

Karád

42.9 M Ft
3 szoba
100 m²
Kéthely, Magyari utca 13
Eladó családi ház

Kéthely

12.75 M Ft
3 + 1 szoba
114 m²
Villány
Eladó családi ház

Villány

31 M Ft
1 szoba
35 m²
Hosszúpereszteg
Eladó családi ház

Hosszúpereszteg

27.9 M Ft
4 szoba
121 m²
Lengyeltóti
Eladó családi ház

Lengyeltóti

26.5 M Ft
2 szoba
85 m²
Seregélyes
Eladó téglalakás

Seregélyes

58.8 M Ft
2 szoba
47 m²
Mezőkeresztes
Eladó ikerház

Mezőkeresztes

14.9 M Ft
2 + 1 szoba
70 m²