Astora Márvány8

Eladó családi ház
Ráckeve, CSALÁDI HÁZ, 5-SZOBA,NAGY TELEK 80M. Ft

+ 2 kép 1/5
74 990 000 Ft74.99 M Ft 694 352 Ft/m2
5 szoba
108 m2

Részletes adatok

Telekméret: 1105 m2
Fűtés: Egyéb
Közmű: Villany, Csatorna
Energetikai besorolás: Nem adta meg a hirdető

Az OTP Bank lakáshitel ajánlataFizetett hirdetés

+36 70 779
Zsuzsanna Hegedűs
Dream Credit Kft

Érdekel az OTP Bank kedvezményes lakáshitel ajánlata? *

* A kérdésre „Igen” válasz bejelölése esetén, az „Üzenet küldése” gombra kattintva kijelentem, hogy az OTP Bank Nyrt. Adatkezelési tájékoztatójának tartalmát megismertem és tudomásul vettem.

Eladó családi ház leírása

3%-OS HITEL, CSOK+, ILLETÉKMENTESSÉG, ZÖLD-HITEL, ENERGIATAKARÉKOS HÁZ, JÓ KÖZLEKEDÉS!!!

5-SZOBA, NAPELEMMEL KOMBINÁLHATÓ HŐSZIVATTYÚ, PADLÓFŰTÉS, NAGY TELEK!!
KEDVEZŐ ÁR!! 80millió Ft.

Önálló CSALÁDI HÁZAT kínálok megvételre Ráckeve csendes, zöldövezeti mellékutcájában, hatalmas telekkel!!

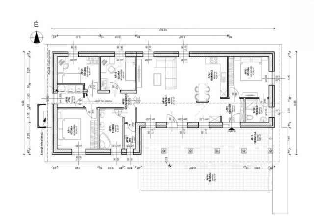
A földszintes OTTHON, NETTÓ 108nm:

Előtér 3,95nm

Közlekedő 6,41nm

Fürdő 6,80nm

WC 2,15nm

Tusoló 4,00nm

HTH 4,18nm

Amerikai-Konyhás-Nappali 40,5nm

Szoba 8,54nm

Szoba 8,40nm

Szoba 11,56nm

Szoba 11,56nm

Veranda 19,90nm

Terasz 38,14nm

Bruttó: 166,05nm

Központi helyen, mégis nyugodt környezetben,
Buszmegálló, Bevásárlási lehetőség, Szakorvosi rendelő, 5 perc gyalogosan!!

Pár műszaki adat:
-Alapozás: vasbeton, 8 cm szerelő-, 8 cm sóderágy
-Falazat: 30 cm Leier blokk külső, 10 cm téglaszerkezetű belső válaszfal
-Födém: faszerkezetű, belül gipszkarton borítással
-Külső hőszigetelés: 10 cm grafitos vagy 15 cm fehér hungarocell
-Tető: nyeregtető Leier cserépfedéssel, 30 cm szigeteléssel
-Nyílászárók: műanyag, fehér, 3 rétegű üvegezéssel
-Bejárati ajtó: hőszigetelt, 85.000 Ft értékben
-Belső ajtók: dekor darabok, 26.000 Ft/db értéken
-Burkolatok: melegburkolat 3.500 Ft/m², hidegburkolat 4.500 Ft/m² értékben
-Gépészet: levegő hőszivattyús padlófűtés, fürdőben törölközőszárítós radiátor
-Villanyszerelés: Schneider Asfora kapcsolók, konnektorok, TV- és internet-kiállások
-Vízszerelés: nagy nyomású műanyag csövezés, meleg vizet is a hőszivattyú biztosítja
-Kerítés: beton elemes, utcafronti pillérekkel, zártszelvény keretű nyíló kapuval, festve

Cégünk INGYENES, iroda és bank-független Hitel ügyintézéssel is rendelkezésére áll, nem csak nálunk vásárolt ingatlanokra!!
Kérdés és-vagy időpont egyeztetés miatt hívjon bátran akár hétvégén is.
Amennyiben nem tudom felvenni visszahívom

Hirdetés feltöltve: 2025. 11. 02. Utoljára módosítva: 2026. 01. 13.

5 szobás családi házak ára Ráckevén

Ebből az összehasonlításból megtudhatod, hogyan viszonyul a lakás ára a környékbeli családi házak átlagos árához. Ez nem azt jelenti, hogy ennyivel olcsóbb vagy drágább, mint amennyit a lakás ér, hanem hogy ennyivel tér el a környékbeli átlagtól.

Ennek a m² ára
Ráckeve m² ár
694 e Ft
641 e Ft -8%
Ennek az ára
Ráckeve átlagár
74.99 M Ft m Ft
92.9 m Ft 19%

Az ingatlan elhelyezkedése

Cím: Ráckeve, CSALÁDI HÁZ, 5-SZOBA,NAGY TELEK 80M. Ft

Eladó családi házak a környékről

Eladó családi ház
Eladó családi ház

Ráckeve

159.9 M Ft
3 szoba
127 m2
Eladó családi ház
Eladó családi ház

Budaörs, Odvshegy utca

268.9 M Ft
5 szoba
235 m2
Eladó családi ház
Eladó családi ház

Budaörs, Városközpont utca

119.5 M Ft
5 + 1 szoba
140 m2
Eladó családi ház
Eladó családi ház

Ráckeve, Duna közeli utca

96 M Ft
4 szoba
240 m2
Eladó családi ház
Eladó családi ház

Veresegyház, Salamon utca

119.9 M Ft
4 szoba
160 m2
Eladó családi ház
Eladó családi ház

Ráckeve

29 M Ft
3 szoba
40 m2
Eladó családi ház
Eladó családi ház

Ráckeve

84.9 M Ft
4 szoba
160 m2
Eladó családi ház
Eladó családi ház

Remeteszőlős

399.9 M Ft
5 + 2 szoba
260 m2
Eladó családi ház
Eladó családi ház

Pécel, Reményik Sándor utca

296 M Ft
6 szoba
396 m2
Eladó családi ház
Eladó családi ház

Ráckeve

46 M Ft
2 szoba
80 m2
Eladó családi ház
Eladó családi ház

Budakeszi, Budakeszi kertváros

140 M Ft
2 szoba
55 m2
Eladó családi ház
Eladó családi ház

Ráckeve

42.8 M Ft
3 szoba
150 m2
Eladó családi ház
Eladó családi ház

Gyál, Gyál út

169.9 M Ft
2 szoba
90 m2
Eladó családi ház
Eladó családi ház

Budaörs, Bányász utca

385 M Ft
6 szoba
300 m2
Eladó családi ház
Eladó családi ház

Budakeszi, Budakeszi kertváros

229 M Ft
10 szoba
450 m2
Eladó családi ház
Eladó családi ház

Kerepes

199 M Ft
6 szoba
360 m2
Eladó családi ház
Eladó családi ház

Tápiószőlős

34.9 M Ft
5 szoba
210 m2
Eladó családi ház
Eladó családi ház

Ráckeve

87.9 M Ft
4 szoba
104 m2
Eladó családi ház
Eladó családi ház

Budakeszi

130 M Ft
5 szoba
30 m2
Eladó családi ház
Eladó családi ház

Leányfalu

237 M Ft
9 szoba
800 m2
Eladó családi ház
Eladó családi ház

Ráckeve

77 M Ft
4 szoba
102 m2
Eladó családi ház
Eladó családi ház

Ráckeve

99.9 M Ft
4 szoba
100 m2
Eladó családi ház
Eladó családi ház

Ráckeve

110 M Ft
4 szoba
154 m2
Eladó családi ház
Eladó családi ház

Ráckeve

77.9 M Ft
4 + 1 szoba
134 m2

Falusi CSOK ingatlanok

Eladó családi ház
Eladó családi ház

Mátraderecske

14 M Ft
1 + 1 szoba
47 m2
Eladó családi ház
Eladó családi ház

Zengővárkony

30.999 M Ft
3 szoba
87 m2
Eladó családi ház
Eladó családi ház

Újszilvás

23 M Ft
3 + 1 szoba
100 m2
Eladó családi ház
Eladó családi ház

Balatonszárszó

178 M Ft
6 szoba
260 m2
Eladó családi ház
Eladó családi ház

Somogymeggyes

14 M Ft
3 szoba
86 m2
Eladó téglalakás
Eladó téglalakás

Pápakovácsi

36.5 M Ft
4 szoba
101 m2
Eladó családi ház
Eladó családi ház

Szigliget

299 M Ft
3 szoba
95 m2
Eladó családi ház
Eladó családi ház

Szabadbattyán

163.99 M Ft
5 szoba
255 m2