Eladó családi ház
Pilis

+ 8 kép 1/11
42 000 000 Ft42 M Ft 512 195 Ft/m2
2 szoba
82 m2
építés éve:1950

Részletes adatok

Telekméret: 1142 m2
Fűtés: Egyéb
Energetikai besorolás: Nem adta meg a hirdető

Az OTP Bank lakáshitel ajánlataFizetett hirdetés

+36 70 677
Jószai Olívia
Szentes OTP Ingatlanpont Iroda Petőfi utca 12.

Érdekel az OTP Bank kedvezményes lakáshitel ajánlata? *

* A kérdésre „Igen” válasz bejelölése esetén, az „Üzenet küldése” gombra kattintva kijelentem, hogy az OTP Bank Nyrt. Adatkezelési tájékoztatójának tartalmát megismertem és tudomásul vettem.

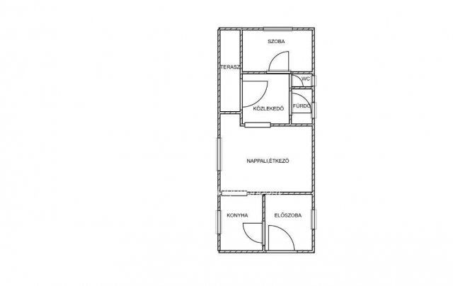
Eladó családi ház leírása

Eladó Pest megyei gyöngyszem Pilisen! Ez a 82 nm-es családi ház tökéletes otthon lehet Önnek és családjának, aki nyugodt, csendes környezetben keres kényelmes és praktikus ingatlant. Az ingatlan egy nyugodt, csendes utcában helyezkedik el, jó szomszédokkal körülvéve, így garantált a békés mindennapok hangulata. Az eladó ház sajátos kialakításával tökéletes választás különleges otthonra: egy tágas szoba, ideális pihenésre, külön konyha a praktikus főzésért, külön WC a kényelmes mindennapokért, nagy nappali étkezővel, ahol a családi összejövetelek és baráti találkozók garantáltan felejthetetlenek lesznek. A fűtő-hűtő klíma maximális kényelmet biztosít. Az épület egy tégla alapon álló, vegyes falazattal készült ház, mely hosszú távra biztosít stabilitást és jó hőszigetelést. A telek méretei lehetőséget adnak a bővítésre, jelenlegi tulajdonos terve szerint akár további szobák vagy kerti létesítmények kialakítására is van lehetőség. Ehhez már 220 nm Leier cserép is megvásárolva, így a bővítés könnyen megvalósítható. A házban egy épített kemence található, amely nemcsak meleget biztosít, hanem az integrált sütőnek köszönhetően az ételek elkészítésében is segédkezik. Az ingatlanhoz tartozik egy dupla garázs (45 nm), mely komfortos megoldást nyújt mind a parkolás, mind a tárolás terén. A vásárlás finanszírozásában az OTP kedvező hitelkonstrukcióival áll rendelkezésére, használja ki a lehetőséget, hogy kedvezőbb kamatozású OTP Bank hitelhez juthat, ha az OTP Ingatlanpont kínálatából vásárol.

Referencia szám: M304210-ZE

Hirdetés feltöltve: 2025. 10. 09.

2 szobás családi házak ára Pilisen

Ebből az összehasonlításból megtudhatod, hogyan viszonyul a lakás ára a környékbeli családi házak átlagos árához. Ez nem azt jelenti, hogy ennyivel olcsóbb vagy drágább, mint amennyit a lakás ér, hanem hogy ennyivel tér el a környékbeli átlagtól.

Ennek a m² ára
Pilis m² ár
512 e Ft
592 e Ft 14%
Ennek az ára
Pilis átlagár
42 M Ft m Ft
93.1 m Ft 55%

Az ingatlan elhelyezkedése

Cím: Pilis

Eladó családi házak a környékről

Eladó családi ház
Eladó családi ház

Tápiószele

37.9 M Ft
4 szoba
141 m2
Eladó családi ház
Eladó családi ház

Pilis

29.9 M Ft
2 szoba
50 m2
Eladó családi ház
Eladó családi ház

Pilis

37.8 M Ft
4 szoba
110 m2
Eladó családi ház
Eladó családi ház

Pilis, Jávorka Ádám

81.9 M Ft
7 + 1 szoba
152 m2
Eladó családi ház
Eladó családi ház

Budaörs, Bányász utca

385 M Ft
6 szoba
300 m2
Eladó családi ház
Eladó családi ház

Pilis

48 M Ft
6 szoba
81 m2
Eladó családi ház
Eladó családi ház

Pilis

37.8 M Ft
4 szoba
110 m2
Eladó családi ház
Eladó családi ház

Budakeszi, Makkosmária

100 M Ft
1 szoba
10 m2
Eladó családi ház
Eladó családi ház

Dunavarsány

46.9 M Ft
3 + 2 szoba
130 m2
Eladó családi ház
Eladó családi ház

Budakeszi, Budakeszi kertváros

229 M Ft
10 szoba
450 m2
Eladó családi ház
Eladó családi ház

Leányfalu

237 M Ft
9 szoba
800 m2
Eladó családi ház
Eladó családi ház

Szigetszentmiklós, Városközpont, Tököli út közeli utca

120 M Ft
7 szoba
525 m2
Eladó családi ház
Eladó családi ház

Kerepes

81.99 M Ft
5 szoba
102 m2
Eladó családi ház
Eladó családi ház

Pilis

38 M Ft
3 szoba
95 m2
Eladó családi ház
Eladó családi ház

Pilis, Haleszi szőlő I. dűlő

19.3 M Ft
2 szoba
48 m2
Eladó családi ház
Eladó családi ház

Pilis

29.9 M Ft
1 szoba
50 m2
Eladó családi ház
Eladó családi ház

Érd

164.9 M Ft
5 szoba
192 m2
Eladó családi ház
Eladó családi ház

Pilis

25.9 M Ft
3 szoba
87 m2
Eladó családi ház
Eladó családi ház

Pilis

9.9 M Ft
2 + 1 szoba
58 m2
Eladó családi ház
Eladó családi ház

Pilis, Csaba utca

34.9 M Ft
4 szoba
151 m2
Eladó családi ház
Eladó családi ház

Pilis, Sándor utca

18 M Ft
2 + 1 szoba
72 m2
Eladó családi ház
Eladó családi ház

Pilis, Pipacs utca

41.9 M Ft
2 szoba
54 m2
Eladó családi ház
Eladó családi ház

Pilis

64 M Ft
2 + 2 szoba
99 m2
Eladó családi ház
Eladó családi ház

Budakeszi

130 M Ft
5 szoba
30 m2

Falusi CSOK ingatlanok

Eladó családi ház
Eladó családi ház

Görbeháza

22.5 M Ft
2 szoba
60 m2
Eladó családi ház
Eladó családi ház

Táborfalva

24.9 M Ft
2 + 1 szoba
81 m2
Eladó családi ház
Eladó családi ház

Tihany

210 M Ft
3 szoba
112 m2
Eladó családi ház
Eladó családi ház

Fonyód, Liszt Ferenc utca

69 M Ft
4 szoba
95 m2
Eladó családi ház
Eladó családi ház

Nyírtura

99 M Ft
4 szoba
280 m2
Eladó családi ház
Eladó családi ház

Fülöpjakab

57 M Ft
6 szoba
219 m2
Eladó családi ház
Eladó családi ház

Bakonya

48 M Ft
3 szoba
168 m2
Eladó családi ház
Eladó családi ház

Tápióbicske

37.5 M Ft
2 szoba
70 m2