Astora Olive Club House

Eladó családi ház
Pécs

+ 17 kép 1/20
149 990 000 Ft149.99 M Ft 749 950 Ft/m2
9 szoba
200 m2
építés éve:1970

Részletes adatok

Telekméret: 593 m2
Fűtés: Egyéb
Parkolás: Garázs
Energetikai besorolás: Nem adta meg a hirdető

Az OTP Bank lakáshitel ajánlataFizetett hirdetés

+36 20 996
Fáy Nikolett
Estate & More

Érdekel az OTP Bank kedvezményes lakáshitel ajánlata? *

* A kérdésre „Igen” válasz bejelölése esetén, az „Üzenet küldése” gombra kattintva kijelentem, hogy az OTP Bank Nyrt. Adatkezelési tájékoztatójának tartalmát megismertem és tudomásul vettem.

Eladó családi ház leírása

Pécsett régi kertvárosban 593 nm-s telken, 200 nm-s, 3 szintes családi ház eladó.

A ház 1970-ben épült, szerkezetileg kiváló állapotú és gondosan karbantartott. A tetőtér 2001-ben lett beépítve.
Az első emelet igény szerint korszerűsíthető. 2016-ban felújításra került a földszint, amibe beletartozik a villany és a vízvezetékek korszerűsítése is. 2021-ben 10 cm szigetelést és 6 kW-s napelemeket kapott az ingatlan.

A fűtésről gázkazán, a hűtésről pedig 6 db klíma gondoskodik.
A napkollektoroknak köszönhetően a ház áramfogyasztása nagyon kedvező.

Jelenleg a tetőtérben albérlő lakik.
A lépcsőháznak köszönhetően minden szinten külön bejárat van, így több generáció együtt éléséhez is megfelelő az ingatlan.
Minden emeleten külön villanyóra található (szintenként 15 amper).

Az ingatlan elosztása:

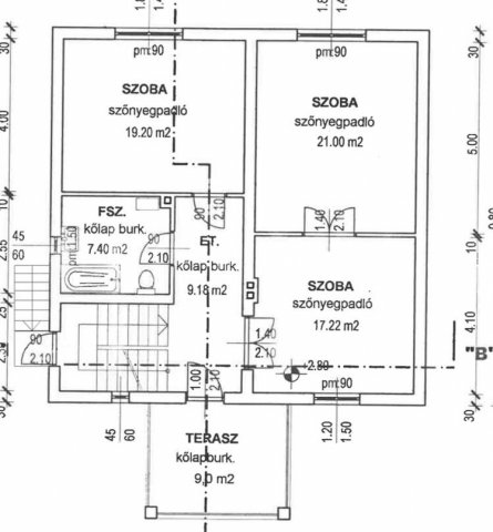
Földszint (84 nm): előszoba, közlekedő, fürdőszoba, WC, konyha – nappali, szoba

Első emelet (84 nm): közlekedő, fürdőszoba, 3 szoba, terasz

Tetőtér (43 nm): előszoba, konyha, fürdőszoba, 2 szoba

A telek 593 nm, sík és elkerített. A kapu elektromosan nyitható, az udvar több részre van osztva a kutyák miatt, amit egybe lehet nyitni (igény kérdése). Található még egy 56 nm-s dupla garázs elektromosan nyitható ajtóval, ahova akár 3 autó is befér és elektromos autó töltésére is van lehetőség. Ezeken felül az udvaron el van helyezve egy komposztáló és egy mobilgarázs.

A ház oldalánál van még egy 30 nm-s terasz, amely kapott egy féltetőt, így kellemes hely időtöltésnek, kikapcsolódásnak.

I.ár: 149.9 MFt

Közelben találhatóak boltok, gyógyszertár, háziorvosi rendelő, iskola, óvoda, buszmegálló.

Az ingatlan adottságainak köszönhetően tökéletes több generáció számára vagy akár befektetésnek is.

Tehermentes és a vételár kifizetését követően rövid időn belül birtokba vehető.

További értékes információkért keressen bizalommal!

Hirdetés feltöltve: 2025. 12. 11.

Az ingatlan elhelyezkedése

Cím: Pécs

Eladó családi házak a környékről

Eladó családi ház
Eladó családi ház

Pécs, Szigeti külváros, Erreth Lajos utca

85 M Ft
4 szoba
130 m2
Eladó családi ház
Eladó családi ház

Zaláta

7.5 M Ft
2 szoba
72 m2
Eladó családi ház
Eladó családi ház

Villány

15.9 M Ft
6 + 1 szoba
220 m2
Eladó családi ház
Eladó családi ház

Pécs

83 M Ft
3 szoba
100 m2
Eladó családi ház
Eladó családi ház

Pécs, Deindol, Nagydeindoli

5.9 M Ft
902 m2
Eladó családi ház
Eladó családi ház

Pécs, Deindol, Nagydeindoli

5.9 M Ft
902 m2
Eladó családi ház
Eladó családi ház

Pécs, Ispitaalja, Bajcsy-Zsilinszky Endre utca

26.5 M Ft
1 szoba
44 m2
Eladó családi ház
Eladó családi ház

Pécs

122 M Ft
4 szoba
181 m2
Eladó családi ház
Eladó családi ház

Pécs

299 M Ft
5 szoba
350 m2
Eladó családi ház
Eladó családi ház

Pécs, Kertváros, Táncsics Mihály utca

74.9 M Ft
6 szoba
185 m2
Eladó családi ház
Eladó családi ház

Pécs, Hird, Kerékhegyi út

10 M Ft
2 szoba
60 m2
Eladó családi ház
Eladó családi ház

Pécs, Ispitaalja, Bajcsy-Zsilinszky Endre utca

26.5 M Ft
1 szoba
44 m2
Eladó családi ház
Eladó családi ház

Versend

75 M Ft
3 szoba
123 m2
Eladó családi ház
Eladó családi ház

Pécs, Meszesi lakóövezet, Pacca dűlő

11 M Ft
1 szoba
28 m2
Eladó családi ház
Eladó családi ház

Lippó, Kossuth

95.65 M Ft
2 szoba
160 m2
Eladó családi ház
Eladó családi ház

Pécs

165 M Ft
8 szoba
240 m2
Eladó családi ház
Eladó családi ház

Pécs, Szabolcsfalu, Szabadságharc utca

58.99 M Ft
3 szoba
240 m2
Eladó családi ház
Eladó családi ház

Versend

21.5 M Ft
4 szoba
128 m2
Eladó családi ház
Eladó családi ház

Pécs, Újhegy, Barázda utca

29.85 M Ft
1 szoba
45 m2
Eladó családi ház
Eladó családi ház

Pécs

299 M Ft
4 szoba
126 m2
Eladó családi ház
Eladó családi ház

Mohács

26.5 M Ft
5 szoba
200 m2
Eladó családi ház
Eladó családi ház

Mohács

25 M Ft
4 szoba
120 m2
Eladó családi ház
Eladó családi ház

Pécs, Deindol, Nagydeindoli

5.9 M Ft
902 m2
Eladó családi ház
Eladó családi ház

Siklós, Külterület

61.5 M Ft
2 szoba
110 m2

Falusi CSOK ingatlanok

Eladó téglalakás
Eladó téglalakás

Balatonszemes

119.9 M Ft
2 szoba
81 m2
Eladó családi ház
Eladó családi ház

Balogunyom, Petőfi Sándor utca

74.9 M Ft
4 szoba
242 m2
Eladó családi ház
Eladó családi ház

Tömörkény

8.9 M Ft
2 szoba
80 m2
Eladó családi ház
Eladó családi ház

Tiszaalpár

24.6 M Ft
5 szoba
140 m2
Eladó családi ház
Eladó családi ház

Pétfürdő

74.9 M Ft
3 szoba
89 m2
Eladó családi ház
Eladó családi ház

Elek

85.9 M Ft
5 szoba
274 m2
Eladó családi ház
Eladó családi ház

Bajánsenye

34.9 M Ft
5 szoba
130 m2
Eladó családi ház
Eladó családi ház

Olaszfa

39.9 M Ft
4 szoba
96 m2