Eladó családi ház
Pécs, 1. emelet

136 500 000 Ft136.5 M Ft 1 156 780 Ft/m2
4 szoba
118 m2
1. emelet
építés éve:2026

Részletes adatok

Fűtés: Egyéb
Energetikai besorolás: Nem adta meg a hirdető

Az OTP Bank lakáshitel ajánlataFizetett hirdetés

+36 30 215
PremierHousing Ingatlanközvetítő Iroda
PremierHousing Ingatlanközvetítő Iroda

Érdekel az OTP Bank kedvezményes lakáshitel ajánlata? *

* A kérdésre „Igen” válasz bejelölése esetén, az „Üzenet küldése” gombra kattintva kijelentem, hogy az OTP Bank Nyrt. Adatkezelési tájékoztatójának tartalmát megismertem és tudomásul vettem.

Eladó családi ház leírása

Pécsett, Régi Kertvárosban, családi házas övezetben, de mégis közel a főutakhoz, városi csomópontokhoz, új építésű családi ház ELADÓ 2026 nyár végi átadással!

A ház egy 700 nm-es zárt telken helyezkedik el, egy másik azonos adottságú családi házzal területmegosztással.

A két ház abban különbözik egymástól, hogy míg az egyiknek első és oldalkertje van, addig a másiknak az oldalkertjéhez egy hátsó, kicsit privátabb kertje van.

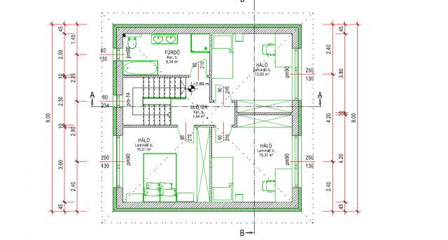
Minkét házban az alsó szinten van egy nagy méretű 31 nm-es nappali.konyha-étkező, egy zuhanyzó, gardrób, illetve egy nagyobb szétfogó helyiség, ami biztosítja a bejárás kényelmét. Természetesen a nappaliból egy 13,5 nm-es, dél-nyugati fekvésű fedett terasz is kapott helyet, így ezzel az élettér növelve lesz.

A emeleten 3 külön nyíló hálószoba van, egy fürdőszoba és egy előtér a lépcsőházból.

A lakások burkolata jelenleg egyedi igények szerint válaszható!
Ezen ingatlan a tervrajzon összesen bruttó 118,7 nm, és egy 13,5 nm-es terasszal.
A házakhoz elektromos autótöltéshez is lesz lehetőség.

Referencia szám: PH21772
Alapterület: 118m2
Ingatlan típusa: Ház- házrész
Ingatlan állapota: Újépítésű
Épület típusa: tégla
Emelet: 1.
Kilátás: udvari
Szobák száma: 4
Fűtés típusa:
Berendezés: bútorozatlan
Extrák: Kertes, Teraszos, Légkondícionáló, Új nyílászárók, Redőny, Jó közlekedés

Ár: 136.5M Ft

Hirdetés feltöltve: 2025. 10. 04. Utoljára módosítva: 2025. 10. 04.

4 szobás családi házak ára Pécsett

Ebből az összehasonlításból megtudhatod, hogyan viszonyul a lakás ára a környékbeli családi házak átlagos árához. Ez nem azt jelenti, hogy ennyivel olcsóbb vagy drágább, mint amennyit a lakás ér, hanem hogy ennyivel tér el a környékbeli átlagtól.

Ennek a m² ára
Pécs m² ár
1157 e Ft
812 e Ft -42%
Ennek az ára
Pécs átlagár
136.5 M Ft m Ft
109.9 m Ft -24%

Az ingatlan elhelyezkedése

Cím: Pécs, 1. emelet

Eladó családi házak a környékről

Eladó családi ház
Eladó családi ház

Pécs

19.9 M Ft
2 szoba
72 m2
Eladó családi ház
Eladó családi ház

Pécs, Ürög, Mária dűlő

15.995 M Ft
654 m2
Eladó családi ház
Eladó családi ház

Pécs, Deindol, Nagydeindoli

5.9 M Ft
902 m2
Eladó családi ház
Eladó családi ház

Pécs

19.9 M Ft
2 szoba
72 m2
Eladó családi ház
Eladó családi ház

Pécs, Ispitaalja, Bajcsy-Zsilinszky Endre utca

26.5 M Ft
1 szoba
44 m2
Eladó családi ház
Eladó családi ház

Pécs, Szabolcsfalu, Szabadságharc utca

58.99 M Ft
3 szoba
240 m2
Eladó családi ház
Eladó családi ház

Pécs

44.9 M Ft
2 szoba
70 m2
Eladó családi ház
Eladó családi ház

Endrőc

9.99 M Ft
3 szoba
100 m2
Eladó családi ház
Eladó családi ház

Pécs, Ürög, Mária dűlő

15.995 M Ft
654 m2
Eladó családi ház
Eladó családi ház

Pécs

83 M Ft
3 szoba
100 m2
Eladó családi ház
Eladó családi ház

Pécs

44.9 M Ft
2 szoba
70 m2
Eladó családi ház
Eladó családi ház

Pécs, Belváros, Kálvária utca

29.9 M Ft
3 szoba
120 m2
Eladó családi ház
Eladó családi ház

Pécs

165 M Ft
8 szoba
240 m2
Eladó családi ház
Eladó családi ház

Pécs, Meszesi lakóövezet, Sarkos dűlő

3.99 M Ft
1 szoba
30 m2
Eladó családi ház
Eladó családi ház

Bánfa

104.9 M Ft
5 szoba
209 m2
Eladó családi ház
Eladó családi ház

Zaláta

7.5 M Ft
2 szoba
72 m2
Eladó családi ház
Eladó családi ház

Harkány

118 M Ft
17 szoba
739 m2
Eladó családi ház
Eladó családi ház

Pécs, Meszesi lakóövezet, Pacca dűlő

11 M Ft
1 szoba
28 m2
Eladó családi ház
Eladó családi ház

Pécs

79.901 M Ft
5 szoba
165 m2
Eladó családi ház
Eladó családi ház

Lippó, Kossuth

97.34 M Ft
2 szoba
160 m2
Eladó családi ház
Eladó családi ház

Pécs, Szabolcsfalu, Szabadságharc utca

58.99 M Ft
3 szoba
240 m2
Eladó családi ház
Eladó családi ház

Pécs

99 M Ft
6 szoba
195 m2
Eladó családi ház
Eladó családi ház

Pécs, Deindol, Nagydeindoli

5.9 M Ft
902 m2
Eladó családi ház
Eladó családi ház

Pécs, Basamalom, Cinka Panna utca

73 M Ft
3 szoba
95 m2

Falusi CSOK ingatlanok

Eladó családi ház
Eladó családi ház

Fonyód, Liszt Ferenc utca

69 M Ft
4 szoba
95 m2
Eladó téglalakás
Eladó téglalakás

Tokaj

192.5 M Ft
3 szoba
90 m2
Eladó családi ház
Eladó családi ház

Somogyszob

9.9 M Ft
2 szoba
60 m2
Eladó családi ház
Eladó családi ház

Böhönye, Dózsa körút

20.9 M Ft
5 + 1 szoba
127 m2
Eladó családi ház
Eladó családi ház

Enese

72.025 M Ft
4 szoba
75 m2
Eladó téglalakás
Eladó téglalakás

Besnyő

37.9 M Ft
2 szoba
35 m2
Eladó családi ház
Eladó családi ház

Szőlősgyörök, Arany János utca

89.9 M Ft
3 szoba
130 m2
Eladó családi ház
Eladó családi ház

Tihany

345 M Ft
6 szoba
347 m2