Astora Art House

Eladó családi ház
Pázmánd

+ 15 kép 1/18
69 000 000 Ft69 M Ft 734 043 Ft/m2
2 szoba
94 m2
építés éve:1960

Részletes adatok

Állapot: Felújítandó
Telekméret: 1787 m2
Fűtés: Gázkonvektor
Energetikai besorolás: E

Az OTP Bank lakáshitel ajánlataFizetett hirdetés

+36 20 236
Rapai Klaudia
referens

Érdekel az OTP Bank kedvezményes lakáshitel ajánlata? *

* A kérdésre „Igen” válasz bejelölése esetén, az „Üzenet küldése” gombra kattintva kijelentem, hogy az OTP Bank Nyrt. Adatkezelési tájékoztatójának tartalmát megismertem és tudomásul vettem.

Eladó családi ház leírása

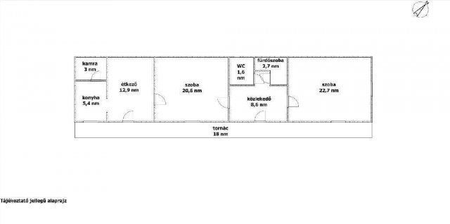
Fejér megye, Pázmánd 94,5 nm-es családi ház eladó. A vályog falazatú, felújítandó ingatlan egy 1787 nm-es telken helyezkedik el közel a település központjához. A telek két utcára nyílik, beépíthetősége 30 %. A tehermentes házban 2 szoba, konyha, étkező, kamra, fürdőszoba, külön WC található, valamint tartozik hozzá tornác, garázs, pince, szaletli, kerti sütögető és melléképületek. A fűtésről gázkonvektorok és egy hangulatos cserépkályha gondoskodik. Az összes közmű az ingatlanba bevezetve. Megvásárlásában rengeteg lehetőség rejlik, melyben ráfordítással és fantáziával egy hangulatos otthon alakíthat ki békés környezetben. Teljes körű ügyintézésben segítjük ügyfeleinket díjtalanul: kedvezményes hitel mobil bankári szolgáltatással, adásvétel teljes lebonyolításával.

Hirdetés feltöltve: 2026. 02. 10.

2 szobás családi házak ára Pázmándon

Ebből az összehasonlításból megtudhatod, hogyan viszonyul a lakás ára a környékbeli családi házak átlagos árához. Ez nem azt jelenti, hogy ennyivel olcsóbb vagy drágább, mint amennyit a lakás ér, hanem hogy ennyivel tér el a környékbeli átlagtól.

Ennek a m² ára
Pázmánd m² ár
734 e Ft
665 e Ft -10%
Ennek az ára
Pázmánd átlagár
69 M Ft m Ft
66 m Ft -4%

Az ingatlan elhelyezkedése

Cím: Pázmánd

Eladó ingatlanok a környékről

Eladó családi ház
Eladó családi ház

Pázmánd

80 M Ft
3 szoba
115 m2
Eladó családi ház
Eladó családi ház

Velence

42.9 M Ft
1 szoba
40 m2
Eladó családi ház
Eladó családi ház

Pusztavám

22.9 M Ft
3 szoba
103 m2
Eladó családi ház
Eladó családi ház

Besnyő

25 M Ft
1 szoba
30 m2
Eladó családi ház
Eladó családi ház

Hantos

45 M Ft
2 szoba
87 m2
Eladó családi ház
Eladó családi ház

Bakonycsernye

39 M Ft
3 szoba
350 m2
Eladó családi ház
Eladó családi ház

Pusztaszabolcs

143.9 M Ft
4 szoba
149 m2
Eladó családi ház
Eladó családi ház

Velence

85.9 M Ft
4 szoba
103 m2
Eladó családi ház
Eladó családi ház

Szabadbattyán

357.518 M Ft
9 + 2 szoba
1053 m2
Eladó családi ház
Eladó családi ház

Sárszentmihály

32.9 M Ft
2 + 1 szoba
80 m2
Eladó családi ház
Eladó családi ház

Pusztavám

22.9 M Ft
3 szoba
103 m2
Eladó családi ház
Eladó családi ház

Martonvásár

75 M Ft
3 szoba
140 m2
Eladó családi ház
Eladó családi ház

Pázmánd

43 M Ft
2 + 1 szoba
80 m2
Eladó családi ház
Eladó családi ház

Velence

220 M Ft
4 szoba
154 m2
Eladó családi ház
Eladó családi ház

Pázmánd

69 M Ft
2 szoba
94 m2
Eladó családi ház
Eladó családi ház

Lepsény, Róka sétány

64.9 M Ft
5 + 1 szoba
203 m2
Eladó téglalakás
Eladó téglalakás

Székesfehérvár

99.6 M Ft
3 szoba
100 m2
Eladó családi ház
Eladó családi ház

Adony

9.5 M Ft
2 szoba
30 m2
Eladó családi ház
Eladó családi ház

Dunaújváros

139.9 M Ft
3 szoba
350 m2
Eladó családi ház
Eladó családi ház

Pázmánd

80 M Ft
3 szoba
115 m2
Eladó családi ház
Eladó családi ház

Mány

18.5 M Ft
3 szoba
70 m2
Eladó családi ház
Eladó családi ház

Kulcs

41 M Ft
2 szoba
92 m2
Eladó téglalakás
Eladó téglalakás

Dunaújváros

20.5 M Ft
1 + 1 szoba
46 m2
Eladó családi ház
Eladó családi ház

Mór

110 M Ft
12 szoba
340 m2

Falusi CSOK ingatlanok

Eladó családi ház
Eladó családi ház

Bár

89.5 M Ft
4 + 1 szoba
172 m2
Eladó családi ház
Eladó családi ház

Sárisáp, Orgona utca

60 M Ft
4 szoba
145 m2
Eladó családi ház
Eladó családi ház

Szabadbattyán

163.99 M Ft
5 szoba
255 m2
Eladó családi ház
Eladó családi ház

Dunaszekcső

12.5 M Ft
3 szoba
110 m2
Eladó családi ház
Eladó családi ház

Tésenfa, Kossuth utca 23/a

5.55 M Ft
1 + 1 szoba
109 m2
Eladó családi ház
Eladó családi ház

Szabadbattyán

136 M Ft
5 szoba
226 m2
Eladó családi ház
Eladó családi ház

Vásárosdombó

14.99 M Ft
2 szoba
69 m2
Eladó ikerház
Eladó ikerház

Balatonakali

370 M Ft
4 szoba
140 m2