NapForrás 20 - Buda

Eladó családi ház
Őrbottyán

+ 17 kép 1/20
169 900 000 Ft169.9 M Ft 1 011 310 Ft/m2
5 szoba
168 m2
építés éve:2005

Részletes adatok

Állapot: Újszerű
Telekméret: 991 m2
Fűtés: Gázkazán
Parkolás: Garázs
Energetikai besorolás: Nem adta meg a hirdető

Az OTP Bank lakáshitel ajánlataFizetett hirdetés

+36 20 397
Floch Ildikó
referens

Érdekel az OTP Bank kedvezményes lakáshitel ajánlata? *

* A kérdésre „Igen” válasz bejelölése esetén, az „Üzenet küldése” gombra kattintva kijelentem, hogy az OTP Bank Nyrt. Adatkezelési tájékoztatójának tartalmát megismertem és tudomásul vettem.

Eladó családi ház leírása

Esztétikus és magas felszereltségű családi ház eladó Őrbottyán központjában!

Az ingatlan egyedi tervek alapján épült 2005-ben, egy összközműves, 991 nm-es telekre.
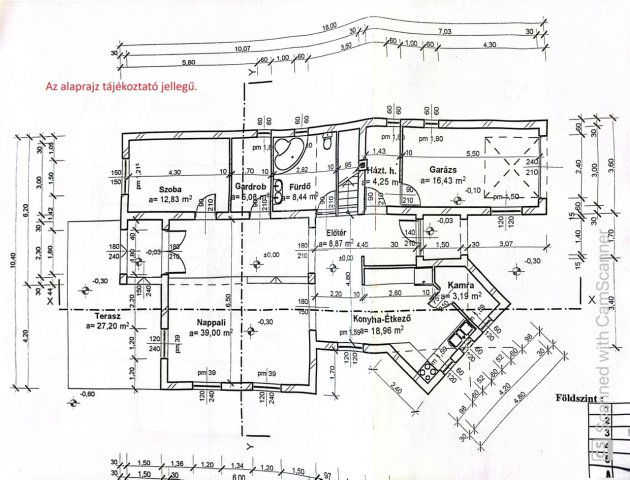
A 168 nm-es, 5 szobás ház tégla építésű, 5 cm hőszigeteléssel ellátott. Fűtéséről és melegvíz-ellátásról kondenzációs gázkazán gondoskodik, a közös helyiségekben és fürdőszobákban padlófűtéssel, hálószobákban radiátor hőleadókkal.
A napelem rendszernek és a ház adottságainak köszönhetően a rezsi rendkívül alacsony.
A földszinten hűtő-fűtő klíma, a tetőtérben rejtett beltéri egységgel rendelkező klíma biztosítja a kellemes hőmérsékletet.

További műszaki adatok:
- műanyag nyílászárók alumínium redőnyökkel és szúnyoghálóval
- biztonsági bejárati ajtó,
- magas minőségű beltéri ajtók, burkolatok
- riasztó és kamera rendszer
- BWT vízlágyító rendszer
- elektromos kapu és garázsajtó
- öntözőrendszer a kertben
- gépesített konyha
- jacuzzi
- beépített szekrények
- dupla mosdós fürdőszobák
- fedett 26 nm-es terasz
- fedett, dupla kocsi beálló
- gondozott növényzet
- térkövezett udvar

Röviden az otthonról:
A házba belépve a közlekedőn át egy ízlésesen kialakított és meleg hangulatú térbe érkezünk, ahol 2 lépcsőfokos szinteltolással elkülönül a nagy étkező-konyha rész és a galériás kialakítás miatt, tágas és világos terekkel rendelkező, otthonos nappali.
A földszinten helyett kapott egy hálószoba saját gardróbbal, fürdőszoba WC-vel, háztartási helyiség, ahonnan közvetlen átjárás vezet a 16 nm-es garázsba.

A nappali impozáns eleme sötétszínű, kényelmes lépcső, amely a tetőtérbe vezet. Itt 3 hálószoba és egy zuhanyzó+WC kapott helyet, kis előtérrel. A szobák hangulata a tető összetett kialakítása miatt igazi elvonulós, pihenős, privát helyek a család kisebb-nagyobb tagjai számára.

Télen-nyáron élvezhetjük a nappaliból és az udvarról is megközelíthető nagy, fedett teraszt, ami jó beszélgetések, pihenések ideális helyszíne.

Az udvar belső részében fedett parkolási lehetőség is rendelkezésre áll, ezen felül az utcafronton található fűtött garázs és további parkolóhelyek állnak rendelkezésre kapun belül.

A telek hátsó, füves része ideális helyszín kerti-sütögető kialakítására, gyerekeknek játszani, konyhakertnek és család négylábú tagjai is örömüket lelik benne.

Elhelyezkedés:
Őrbottyán Pest vármegyében, a fővárostól mindössze 25 kilométerre, Veresegyház és Vác között található, nyugodt, zöldövezeti település, kiváló közlekedéssel Budapest irányába.
Autóval az M2-es autóúton, illetve a Budapest–Vác vasútvonalon kényelmesen megközelíthető; a vonat kb. 35–40 perc alatt a Nyugati pályaudvarra ér.
A településen van óvoda, bölcsőde, iskola, orvosi rendelő, posta, gyógyszertár, kisebb éttermek és több bevásárlási lehetőség is. Őrbottyán rendezett, biztonságos, családbarát környezetet kínál, ahol a kertvárosi nyugalom és a főváros közelsége ideálisan találkozik.

Ha felkeltettem érdeklődését hívjon bizalommal.

Amiben segíteni tudjuk ingatlanvásárlását:
- jogi háttér
- földhivatali ügyintézés
- ingyenes, bankfüggetlen hitelügyintézés (CSOK és Babaváró ügyintézése is.)
- energetikai tanúsítvány elkészítése
- biztosítás
- belsőépítész ...TOVÁBBI, TÖBBEZRES INGATLAN KÍNÁLAT: www.gdn-ingatlan.hu - GDN azonosító: 389450

Hirdetés feltöltve: 2025. 11. 10. Utoljára módosítva: 2026. 01. 13.

5 szobás családi házak ára Őrbottyánban

Ebből az összehasonlításból megtudhatod, hogyan viszonyul a lakás ára a környékbeli családi házak átlagos árához. Ez nem azt jelenti, hogy ennyivel olcsóbb vagy drágább, mint amennyit a lakás ér, hanem hogy ennyivel tér el a környékbeli átlagtól.

Ennek a m² ára
Őrbottyán m² ár
1011 e Ft
832 e Ft -22%
Ennek az ára
Őrbottyán átlagár
169.9 M Ft m Ft
135.7 m Ft -25%

Az ingatlan elhelyezkedése

Cím: Őrbottyán

Eladó családi házak a környékről

Eladó családi ház
Eladó családi ház

Remeteszőlős

399.9 M Ft
5 + 2 szoba
260 m2
Eladó családi ház
Eladó családi ház

Őrbottyán

145 M Ft
4 szoba
210 m2
Eladó családi ház
Eladó családi ház

Kerepes

199 M Ft
6 szoba
360 m2
Eladó családi ház
Eladó családi ház

Tápiószele

11.9 M Ft
3 szoba
62 m2
Eladó családi ház
Eladó családi ház

Őrbottyán

107 M Ft
4 szoba
94 m2
Eladó családi ház
Eladó családi ház

Budakeszi, Makkosmária

100 M Ft
1 szoba
10 m2
Eladó családi ház
Eladó családi ház

Őrbottyán, Fürdő utca

149 M Ft
5 szoba
120 m2
Eladó családi ház
Eladó családi ház

Tápiószentmárton

7.9 M Ft
2 + 1 szoba
86 m2
Eladó családi ház
Eladó családi ház

Pécel, Reményik Sándor utca

296 M Ft
6 szoba
396 m2
Eladó családi ház
Eladó családi ház

Budaörs, Városközpont utca

119.5 M Ft
5 + 1 szoba
140 m2
Eladó családi ház
Eladó családi ház

Tápiószele

32.9 M Ft
4 szoba
200 m2
Eladó családi ház
Eladó családi ház

Kerepes

81.99 M Ft
5 szoba
102 m2
Eladó családi ház
Eladó családi ház

Budaörs, Odvshegy utca

268.9 M Ft
5 szoba
235 m2
Eladó családi ház
Eladó családi ház

Budakeszi, Budakeszi kertváros

140 M Ft
2 szoba
55 m2
Eladó családi ház
Eladó családi ház

Tápiószele

37.9 M Ft
4 szoba
141 m2
Eladó családi ház
Eladó családi ház

Őrbottyán

95.55 M Ft
4 szoba
84 m2
Eladó családi ház
Eladó családi ház

Őrbottyán

194.9 M Ft
7 szoba
231 m2
Eladó családi ház
Eladó családi ház

Őrbottyán

265 M Ft
2158 m²
450 m2
Eladó családi ház
Eladó családi ház

Őrbottyán

105 M Ft
4 szoba
102 m2
Eladó családi ház
Eladó családi ház

Gyál, Gyál út

169.9 M Ft
2 szoba
90 m2
Eladó családi ház
Eladó családi ház

Őrbottyán

154 M Ft
4 + 1 szoba
115 m2
Eladó családi ház
Eladó családi ház

Őrbottyán

92.85 M Ft
4 szoba
84 m2
Eladó családi ház
Eladó családi ház

Veresegyház, Salamon utca

119.9 M Ft
4 szoba
160 m2
Eladó családi ház
Eladó családi ház

Őrbottyán, Gárdonyi Géza utca

79.5 M Ft
3 szoba
84 m2

Falusi CSOK ingatlanok

Eladó családi ház
Eladó családi ház

Szólád

99.9 M Ft
6 + 1 szoba
245 m2
Eladó családi ház
Eladó családi ház

Szabadbattyán

67.5 M Ft
5 szoba
180 m2
Eladó családi ház
Eladó családi ház

Tapsony

23.8 M Ft
3 szoba
130 m2
Eladó családi ház
Eladó családi ház

Újlengyel

110 M Ft
4 szoba
121 m2
Eladó családi ház
Eladó családi ház

Baté

21.8 M Ft
2 szoba
60 m2
Eladó családi ház
Eladó családi ház

Ceglédbercel

67 M Ft
5 szoba
174 m2
Eladó családi ház
Eladó családi ház

Nemesbőd

87 M Ft
5 szoba
120 m2
Eladó családi ház
Eladó családi ház

Bátmonostor

22.9 M Ft
3 szoba
82 m2