Eladó családi ház
Onga

Figyelem!

Ez az ingatlan a 2019.07.01-től induló falusi CSOK által támogatott településen található

+ 17 kép 1/20
59 990 000 Ft59.99 M Ft 555 463 Ft/m2
3 szoba
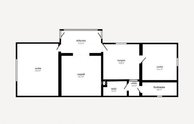
108 m2
építés éve:1972

Részletes adatok

Telekméret: 1221 m2
Fűtés: Gázkonvektor
Energetikai besorolás: Nem adta meg a hirdető

Az OTP Bank lakáshitel ajánlataFizetett hirdetés

+36 30 494
Gyöngyösi Szabolcs
OTP Ingatlanpont Miskolc Szemere

Érdekel az OTP Bank kedvezményes lakáshitel ajánlata? *

* A kérdésre „Igen” válasz bejelölése esetén, az „Üzenet küldése” gombra kattintva kijelentem, hogy az OTP Bank Nyrt. Adatkezelési tájékoztatójának tartalmát megismertem és tudomásul vettem.

Eladó családi ház leírása

KIVÉTELES LEHETŐSÉG ONGÁN! FELÚJÍTOTT CSALÁDI HÁZ KÜLÖNÁLLÓ ÉPÜLETTEL ELADÓ A KÖZPONTBAN!
Eladásra kínálunk Onga központjában, a frekventált Dózsa György úton egy 108 m?-es, teljes körűen felújított családi házat 1221 m?-es, gondozott telken, amelyhez egy 51 m?-es, külön bejárattal rendelkező melléképület is tartozik, lakhatásra vagy vállalkozásra egyaránt kiválóan alkalmas. A főépület 2008-ban átfogó felújításon esett át: új tetőszerkezet és héjazat, 6 cm-es Nikecell szigetelés (2024), hőszigetelt nyílászárók, teljesen megújult villamos- és vízhálózat, korszerűsített fürdőszoba került kialakításra. A ház két bejárattal rendelkezik, melyek fedett teraszra nyílnak, a fűtésről gázkonvektorok és egy hangulatos kandalló gondoskodik, a melegvizet villanybojler szolgáltatja. A biztonságot riasztórendszer és kamerák biztosítják.
A szintén 2008-ban felújított, 51 m?-es különálló épület konyhával, spájzzal, fürdőszobával és hálószobával rendelkezik. Fűtése gázkonvektoros, a melegvizet itt is külön villanybojler biztosítja. A házikó hőszigetelt fa ablakokkal és műanyag bejárati ajtóval épült, minden helyiség burkolata járólap. A melléképület meghosszabbított részében egy garázs is kialakításra került.
A portán található továbbá állattartásra alkalmas melléképület, egy ásott gyűrűs kút, valamint a hátsó kert gyümölcsfákkal telepített. Mindkét épület külön bejárattal rendelkezik, így külön-külön is lakható, és külön kedvezményes gázdíj is igényelhető rájuk.
Ez az ingatlan ideális választás többgenerációs családoknak, vállalkozóknak vagy azoknak, akik befektetési céllal keresnek jól hasznosítható, kiváló állapotú ingatlant. Ne maradjon le erről a sokoldalú lehetőségről ? hívjon most hivatkozzon az M302878 számra és tekintse meg személyesen!
Szükség esetén banki finanszírozással, CSOK+ BABAVÁRÓ ügyintézéssel és ügyvédi közreműködéssel

Hirdetés feltöltve: 2025. 10. 02. Utoljára módosítva: 2025. 10. 02.

3 szobás családi házak ára Ongán

Ebből az összehasonlításból megtudhatod, hogyan viszonyul a lakás ára a környékbeli családi házak átlagos árához. Ez nem azt jelenti, hogy ennyivel olcsóbb vagy drágább, mint amennyit a lakás ér, hanem hogy ennyivel tér el a környékbeli átlagtól.

Ennek a m² ára
Onga m² ár
555 e Ft
399 e Ft -39%
Ennek az ára
Onga átlagár
59.99 M Ft m Ft
43.1 m Ft -39%

Az ingatlan elhelyezkedése

Cím: Onga

Eladó családi házak a környékről

Eladó családi ház
Eladó családi ház

Onga

59.99 M Ft
3 szoba
108 m2
Eladó családi ház
Eladó családi ház

Méra

38 M Ft
3 + 1 szoba
130 m2
Eladó családi ház
Eladó családi ház

Onga

99 M Ft
4 szoba
160 m2
Eladó családi ház
Eladó családi ház

Ózd, Ózd falu, 48-as út

39.9 M Ft
3 + 1 szoba
300 m2
Eladó családi ház
Eladó családi ház

Onga

46.5 M Ft
3 + 1 szoba
63 m2
Eladó családi ház
Eladó családi ház

Onga

99 M Ft
4 szoba
160 m2
Eladó családi ház
Eladó családi ház

Onga

34.5 M Ft
3 szoba
83 m2
Eladó családi ház
Eladó családi ház

Gönc

26 M Ft
3 szoba
130 m2
Eladó családi ház
Eladó családi ház

Ózd

14.7 M Ft
3 szoba
95 m2
Eladó családi ház
Eladó családi ház

Taktaharkány, Magtár utca

9.9 M Ft
3 szoba
100 m2
Eladó családi ház
Eladó családi ház

Onga

45 M Ft
4 szoba
120 m2
Eladó családi ház
Eladó családi ház

Szikszó

89.9 M Ft
3 szoba
100 m2
Eladó családi ház
Eladó családi ház

Ózd

13 M Ft
5 szoba
150 m2
Eladó családi ház
Eladó családi ház

Onga

59.99 M Ft
3 szoba
108 m2
Eladó családi ház
Eladó családi ház

Onga

25 M Ft
2 + 1 szoba
96 m2
Eladó családi ház
Eladó családi ház

Miskolc, Vargahegy, Margaréta utca

14.5 M Ft
1 szoba
42 m2
Eladó családi ház
Eladó családi ház

Onga

59.99 M Ft
3 szoba
108 m2
Eladó családi ház
Eladó családi ház

Onga

99 M Ft
4 szoba
160 m2
Eladó családi ház
Eladó családi ház

Onga

99 M Ft
4 szoba
160 m2
Eladó családi ház
Eladó családi ház

Onga

45 M Ft
4 szoba
120 m2
Eladó családi ház
Eladó családi ház

Tiszalúc, Alkotmány utca

16.9 M Ft
4 szoba
137 m2
Eladó családi ház
Eladó családi ház

Ózd

25.99 M Ft
4 szoba
198 m2
Eladó családi ház
Eladó családi ház

Miskolc

25.9 M Ft
4 szoba
148 m2
Eladó családi ház
Eladó családi ház

Onga

55 M Ft
6 szoba
104 m2

Falusi CSOK ingatlanok

Eladó ikerház
Eladó ikerház

Balatonkenese

84.99 M Ft
3 szoba
76 m2
Eladó családi ház
Eladó családi ház

Marcaltő

26 M Ft
3 szoba
103 m2
Eladó családi ház
Eladó családi ház

Magyargencs

21.9 M Ft
2 szoba
60 m2
Eladó családi ház
Eladó családi ház

Baktalórántháza

32.9 M Ft
6 szoba
194 m2
Eladó családi ház
Eladó családi ház

Jászkarajenő

11 M Ft
2 szoba
52 m2
Eladó családi ház
Eladó családi ház

Homokbödöge

49.9 M Ft
4 + 1 szoba
167 m2
Eladó családi ház
Eladó családi ház

Kaposgyarmat

5.9 M Ft
1 szoba
40 m2
Eladó családi ház
Eladó családi ház

Nádasdladány

45.9 M Ft
1 + 1 szoba
50 m2

Falusi CSOK ingatlanok

Eladó családi ház
Eladó családi ház

Gyepükaján

12.9 M Ft
2 szoba
70 m2
Eladó családi ház
Eladó családi ház

Táborfalva

119.723 M Ft
5 szoba
105 m2
Eladó családi ház
Eladó családi ház

Jászkarajenő

11 M Ft
2 szoba
52 m2
Eladó családi ház
Eladó családi ház

Bag

99 M Ft
6 + 1 szoba
194 m2
Eladó családi ház
Eladó családi ház

Böhönye, Dózsa körút

20.9 M Ft
5 + 1 szoba
127 m2
Eladó családi ház
Eladó családi ház

Sásd

24.911 M Ft
3 szoba
123 m2
Eladó családi ház
Eladó családi ház

Badacsonytomaj

199.8 M Ft
3 szoba
166 m2
Eladó családi ház
Eladó családi ház

Becsehely

18 M Ft
4 szoba
134 m2