Eladó családi ház
Onga

Figyelem!

Ez az ingatlan a 2019.07.01-től induló falusi CSOK által támogatott településen található

+ 17 kép 1/20
21 900 000 Ft21.9 M Ft 182 500 Ft/m2
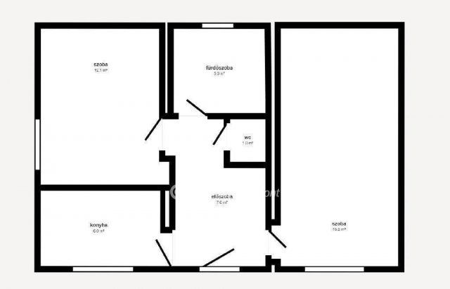
3 szoba
120 m2
építés éve:1990

Részletes adatok

Állapot: Felújítandó
Telekméret: 756 m2
Fűtés: Egyéb
Energetikai besorolás: Nem adta meg a hirdető

Az OTP Bank lakáshitel ajánlataFizetett hirdetés

+36 70 397
Vég-Dudás Dominika
OTP Ingatlanpont Miskolc

Érdekel az OTP Bank kedvezményes lakáshitel ajánlata? *

* A kérdésre „Igen” válasz bejelölése esetén, az „Üzenet küldése” gombra kattintva kijelentem, hogy az OTP Bank Nyrt. Adatkezelési tájékoztatójának tartalmát megismertem és tudomásul vettem.

Eladó családi ház leírása

ELADÓ ONGÁN CSALÁDI HÁZ! Eladó Ongán csendes utcában két családi ház egy 756nm-es portán! Az egyik ház 100nm, + 100nm beépíthető tetőtér, a másik 100nm-es beépített tetőtérrel. Állapotuk felújítandó, de ezt az irányár is tükrözi. Viszont kiváló lehetőség nagycsaládosoknak, összeköltözőknek, vállalkozásnak vagy akik idős szüleiket szeretnék magukhoz közel, biztonságban tudni. Miskolctól 10km, negyedóra autóval! Várom hívását, hétvégén is!
Virtuális séta:
OTP banki hátterünkkel ügyfeleink rendelkezésére állunk finanszírozási kérdésekben is.
M305031

Hirdetés feltöltve: 2025. 07. 24. Utoljára módosítva: 2025. 10. 05.

3 szobás családi házak ára Ongán

Ebből az összehasonlításból megtudhatod, hogyan viszonyul a lakás ára a környékbeli családi házak átlagos árához. Ez nem azt jelenti, hogy ennyivel olcsóbb vagy drágább, mint amennyit a lakás ér, hanem hogy ennyivel tér el a környékbeli átlagtól.

Ennek a m² ára
Onga m² ár
183 e Ft
405 e Ft 55%
Ennek az ára
Onga átlagár
21.9 M Ft m Ft
43.8 m Ft 50%

Az ingatlan elhelyezkedése

Cím: Onga

Eladó családi házak a környékről

Eladó családi ház
Eladó családi ház

Onga

99 M Ft
4 szoba
160 m2
Eladó családi ház
Eladó családi ház

Onga

88 M Ft
10 szoba
Eladó családi ház
Eladó családi ház

Onga

59.99 M Ft
3 szoba
108 m2
Eladó családi ház
Eladó családi ház

Onga

45 M Ft
4 szoba
120 m2
Eladó családi ház
Eladó családi ház

Onga

34.5 M Ft
3 szoba
83 m2
Eladó családi ház
Eladó családi ház

Onga

55 M Ft
6 szoba
104 m2
Eladó családi ház
Eladó családi ház

Onga

99 M Ft
4 szoba
160 m2
Eladó családi ház
Eladó családi ház

Ózd

15 M Ft
7 szoba
225 m2
Eladó családi ház
Eladó családi ház

Ózd

14.7 M Ft
3 szoba
95 m2
Eladó családi ház
Eladó családi ház

Tiszalúc

19.9 M Ft
4 szoba
180 m2
Eladó családi ház
Eladó családi ház

Onga

21.9 M Ft
3 szoba
120 m2
Eladó családi ház
Eladó családi ház

Ónod, Nyéki utca

20.7 M Ft
2 + 1 szoba
90 m2
Eladó családi ház
Eladó családi ház

Gönc

20.5 M Ft
2 szoba
80 m2
Eladó családi ház
Eladó családi ház

Onga

59.99 M Ft
3 szoba
108 m2
Eladó családi ház
Eladó családi ház

Kisgyőr, Rákóczi

59.9 M Ft
3 szoba
100 m2
Eladó családi ház
Eladó családi ház

Gönc, Kossuth Lajos utca

26 M Ft
2 + 1 szoba
130 m2
Eladó családi ház
Eladó családi ház

Onga

25 M Ft
2 + 1 szoba
96 m2
Eladó családi ház
Eladó családi ház

Onga

59.99 M Ft
3 szoba
108 m2
Eladó családi ház
Eladó családi ház

Szikszó

89.9 M Ft
3 szoba
100 m2
Eladó családi ház
Eladó családi ház

Onga

99 M Ft
4 szoba
160 m2
Eladó családi ház
Eladó családi ház

Onga

59.99 M Ft
3 szoba
108 m2
Eladó családi ház
Eladó családi ház

Putnok

11 M Ft
3 szoba
79 m2
Eladó családi ház
Eladó családi ház

Ózd, Ózd falu, 48-as út

39.9 M Ft
3 + 1 szoba
300 m2
Eladó családi ház
Eladó családi ház

Miskolc, Vargahegy, Margaréta utca

14.5 M Ft
1 szoba
42 m2

Falusi CSOK ingatlanok

Eladó családi ház
Eladó családi ház

Lázi

18.9 M Ft
2 szoba
74 m2
Eladó családi ház
Eladó családi ház

Kéthely

17.9 M Ft
4 szoba
113 m2
Eladó családi ház
Eladó családi ház

Bakháza

4.5 M Ft
1 szoba
50 m2
Eladó családi ház
Eladó családi ház

Tápiószőlős

34 M Ft
1 + 2 szoba
85 m2
Eladó családi ház
Eladó családi ház

Ábrahámhegy

59.9 M Ft
0 + 5 szoba
68 m2
Eladó családi ház
Eladó családi ház

Bugac

55 M Ft
3 szoba
90 m2
Eladó családi ház
Eladó családi ház

Tápiószőlős

69 M Ft
3 szoba
77 m2
Eladó téglalakás
Eladó téglalakás

Tokaj

189.9 M Ft
3 szoba
90 m2

Falusi CSOK ingatlanok

Eladó családi ház
Eladó családi ház

Magyarszék

89.9 M Ft
5 szoba
130 m2
Eladó családi ház
Eladó családi ház

Koppányszántó, Fő u 211

9.9 M Ft
2 szoba
55 m2
Eladó téglalakás
Eladó téglalakás

Tokaj

116.5 M Ft
2 szoba
49 m2
Eladó családi ház
Eladó családi ház

Törtel

39 M Ft
1 + 1 szoba
118 m2
Eladó családi ház
Eladó családi ház

Galgahévíz

49 M Ft
3 + 1 szoba
108 m2
Eladó családi ház
Eladó családi ház

Fonyód

79.9 M Ft
7 szoba
149 m2
Eladó családi ház
Eladó családi ház

Mágocs, Ady Endre utca 86

7.9 M Ft
4 szoba
128 m2
Eladó családi ház
Eladó családi ház

Bakonya

48 M Ft
3 szoba
168 m2