Metrodom

Eladó családi ház
Ócsa

+ 3 kép 1/6
94 900 000 Ft94.9 M Ft 958 586 Ft/m2
4 szoba
99 m²
építés éve:2026

Részletes adatok

Telekméret: 500 m2
Fűtés: Egyéb
Energetikai besorolás: Nem adta meg a hirdető

Az OTP Bank lakáshitel ajánlataFizetett hirdetés

+36 1 444
Nyiri Tamás
referens

Érdekel az OTP Bank kedvezményes lakáshitel ajánlata? *

* A kérdésre „Igen” válasz bejelölése esetén, az „Üzenet küldése” gombra kattintva kijelentem, hogy az OTP Bank Nyrt. Adatkezelési tájékoztatójának tartalmát megismertem és tudomásul vettem.

Eladó családi ház leírása

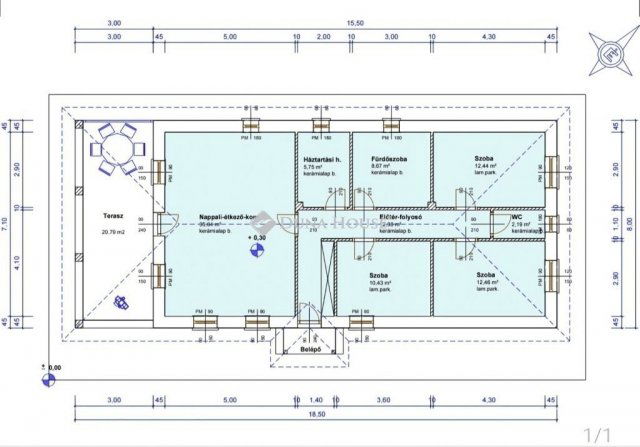
Eladó új építésű önálló családi ház Ócsán!Ócsán kínálunk megvételre egy 99,96 négyzetméteres, új építésű önálló családi házat, melynek átgondolt belső elrendezése három külön nyíló szobából, fürdőszobából, külön WC-ből, háztartási helyiségből, valamint amerikai konyhás nappaliból áll, ahonnan közvetlen kijárat nyílik egy 20 négyzetméteres teraszra.Az épület beton alapra, Porotherm 30-as téglából épül, fa födémmel. A külső falakon 15 cm vastag hőszigetelés kerül kialakításra, a padlóban 10 cm lépésálló hőszigeteléssel, míg a födémen 25 cm vastag szigetelés biztosítja az energiatakarékos működést.A fűtést korszerű hőszivattyús rendszer látja el padlófűtéssel,a nappaliban pedig egy klíma is felhelyezésre kerül. Az ingatlanban gáz nem kerül kialakításra. A 500 négyzetméteres telken kocsibeálló is helyet kap, a homlokzat és egyes külső elemek színe még választható, legyen szó modern antracit megjelenésről vagy mediterrán stílusú kialakításról.A ház várható átadása 2026 2. negyedévének végén, illetve a 3. negyedév elején történik, így jelenleg még lehetőség van az ingatlan belső kialakítását és egyes részleteit a saját igények szerint formálni. A burkolatok (hideg/meleg): 7000 Ft.-/ nm-ig választhatóak. (További árinformációk a műszaki tartalomban érhetők el.)Ez az ingatlan ideális választás mindazok számára, akik egy új, korszerű, energiatakarékos otthont keresnek nyugodt környezetben, Ócsán.

Hirdetés feltöltve: 2026. 03. 11. Utoljára módosítva: 2026. 03. 12.

4 szobás családi házak ára Ócsán

Ebből az összehasonlításból megtudhatod, hogyan viszonyul a lakás ára a környékbeli családi házak átlagos árához. Ez nem azt jelenti, hogy ennyivel olcsóbb vagy drágább, mint amennyit a lakás ér, hanem hogy ennyivel tér el a környékbeli átlagtól.

Ennek a m² ára
Ócsa m² ár
959 e Ft
662 e Ft -45%
Ennek az ára
Ócsa átlagár
94.9 M Ft m Ft
103.5 m Ft 8%

Az ingatlan elhelyezkedése

Cím: Ócsa

Eladó családi házak a környékről

Ócsa
Eladó családi ház

Ócsa

94.9 M Ft
4 szoba
99 m²
Budakeszi, Makkosmária
Eladó családi ház

Budakeszi

100 M Ft
1 szoba
10 m²
Kerepes
Eladó családi ház

Kerepes

199 M Ft
6 szoba
360 m²
Tápiószentmárton
Eladó családi ház

Tápiószentmárton

48 M Ft
5 szoba
180 m²
Budaörs
Eladó családi ház

Budaörs

400 M Ft
12 szoba
583 m²
Tápiószentmárton
Eladó családi ház

Tápiószentmárton

16.5 M Ft
3 szoba
50 m²
Zebegény
Eladó családi ház

Zebegény

69.9 M Ft
6 szoba
245 m²
Ócsa
Eladó családi ház

Ócsa

165 M Ft
7 szoba
320 m²
Érd, Érdliget - Kutyavár, Érd-liget
Eladó családi ház

Érd

230 M Ft
7 szoba
280 m²
Ócsa
Eladó családi ház

Ócsa

102.5 M Ft
5 szoba
91 m²
Tápiógyörgye
Eladó családi ház

Tápiógyörgye

19.9 M Ft
3 szoba
65 m²
Ócsa
Eladó családi ház

Ócsa

102.5 M Ft
5 szoba
91 m²
Ócsa, Pipacs utca 17
Eladó családi ház

Ócsa

79.9 M Ft
2 + 2 szoba
115 m²
Tápiószele
Eladó családi ház

Tápiószele

18.9 M Ft
4 szoba
68 m²
Tápiószentmárton
Eladó családi ház

Tápiószentmárton

7.9 M Ft
2 + 1 szoba
86 m²
Ócsa
Eladó családi ház

Ócsa

99.9 M Ft
1 + 4 szoba
101 m²
Dunakeszi
Eladó családi ház

Dunakeszi

250 M Ft
4 szoba
180 m²
Ócsa
Eladó családi ház

Ócsa

71.5 M Ft
4 + 2 szoba
160 m²
Nagykáta
Eladó családi ház

Nagykáta

130 M Ft
3 szoba
203 m²
Budakeszi, Budakeszi kertváros
Eladó családi ház

Budakeszi

229 M Ft
10 szoba
450 m²
Ócsa
Eladó családi ház

Ócsa

99.9 M Ft
1 + 4 szoba
101 m²
Ócsa, Rózsa utca
Eladó családi ház

Ócsa

83 M Ft
4 szoba
180 m²
Ócsa
Eladó családi ház

Ócsa

94.9 M Ft
4 szoba
99 m²
Tápiószőlős
Eladó családi ház

Tápiószőlős

34.9 M Ft
5 szoba
210 m²

Falusi CSOK ingatlanok

Törtel
Eladó családi ház

Törtel

35 M Ft
3 szoba
52 m²
Ceglédbercel
Eladó családi ház

Ceglédbercel

80 M Ft
7 szoba
125 m²
Úri
Eladó családi ház

Úri

149 M Ft
5 szoba
279 m²
Herend
Eladó téglalakás

Herend

59.99 M Ft
3 szoba
69 m²
Németkér
Eladó családi ház

Németkér

149.9 M Ft
2 szoba
540 m²
Ceglédbercel, Aranyhegy utca
Eladó családi ház

Ceglédbercel

114.99 M Ft
5 szoba
133 m²
Halimba
Eladó családi ház

Halimba

59.9 M Ft
6 szoba
182 m²
Balatonfenyves
Eladó ikerház

Balatonfenyves

65 M Ft
3 szoba
40 m²