River Life

Eladó családi ház
Nyúl

+ 17 kép 1/20
149 500 000 Ft149.5 M Ft 1 045 455 Ft/m2
4 szoba
143 m2
építés éve:2005

Részletes adatok

Állapot: Felújított
Telekméret: 810 m2
Fűtés: Gázkazán
Energetikai besorolás: Nem adta meg a hirdető

Az OTP Bank lakáshitel ajánlataFizetett hirdetés

+36 70 567
Fehér Orsolya
OTPip - Győr Bajcsy-Zsilinszky út 27 - OTP Ingatlanpont Iroda

Érdekel az OTP Bank kedvezményes lakáshitel ajánlata? *

* A kérdésre „Igen” válasz bejelölése esetén, az „Üzenet küldése” gombra kattintva kijelentem, hogy az OTP Bank Nyrt. Adatkezelési tájékoztatójának tartalmát megismertem és tudomásul vettem.

Eladó családi ház leírása

Igazi minőség és nyugalom Nyúl központjában. Eladó egy csendes kis zsákutca utolsó háza. Óvoda és az iskola a közelben.
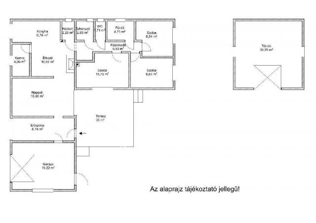
A ház 2005-ben épült, jól átgondolt egyedi igények alapján, kiváló minőségű anyagokból. A tulajdonosok nagy figyelmet fordítottak az energiatakarékosságra így napelem rendszert építettek ki. Bár a házat 44-es porotherm téglából építették, kapott még 5 cm szigetelést, a tökéletes hőmegtartás érdekében. Van fúrt kút, szivattyúval. A házban 3 hálószoba, nappali, két fürdőszoba és konditerem szolgálja a benne lakók kényelmét. A konyhában gondosan megtervezett helytakarékos, igényes egyedi konyhabútor, minden extrával ellátva. A nappaliban és a szobákban egyedi méretre készült bútorok vannak, rengeteg tárolási lehetőséggel. A fűtést gázkazán biztosítja, illetve egy szép cserépkályha, ami igazán hangulatossá teszi a hideg téli estéket és önállóan is befűti az egész házat. Az emeleti tetőtér jelenleg részlegesen van beépítve, előtér és konditerem van fent. A tetőtér többi része, kb. 70 m2-es terület még igény szerint kialakítható. A házban van garázs, amiből rögtön az előszobába vezető ajtón tudunk a hideg és az eső elől elzártan, kényelmesen kipakolni az autóból. A nagy 35 m2-es hangulatos pergolás terasz biztosítja, hogy egy hosszú nap után megpihenhessünk és gyönyörködhessünk az udvarban virágzó bokrok, gyümölcsfák között, vagy ha kedvünk van kicsit kertészkedhetünk is a konyhakertben. Az udvaron továbbá van még egy kedves kis 30 m2-es melléképület, ami kis átalakítás után akár vendégházként is funkcionálhat.
Amennyiben az ingatlan felkeltette az érdeklődését, kérem keressen bizalommal.
Referencia szám: M316857

Hirdetés feltöltve: 2025. 12. 01. Utoljára módosítva: 2026. 01. 13.

4 szobás családi házak ára Nyúlon

Ebből az összehasonlításból megtudhatod, hogyan viszonyul a lakás ára a környékbeli családi házak átlagos árához. Ez nem azt jelenti, hogy ennyivel olcsóbb vagy drágább, mint amennyit a lakás ér, hanem hogy ennyivel tér el a környékbeli átlagtól.

Ennek a m² ára
Nyúl m² ár
1045 e Ft
183 e Ft -471%
Ennek az ára
Nyúl átlagár
149.5 M Ft m Ft
26.1 m Ft -473%

Az ingatlan elhelyezkedése

Cím: Nyúl

Eladó családi házak a környékről

Eladó családi ház
Eladó családi ház

Balatonlelle

149.9 M Ft
9 + 3 szoba
370 m2
Eladó családi ház
Eladó családi ház

Balatonlelle

123 M Ft
3 + 2 szoba
140 m2
Eladó családi ház
Eladó családi ház

Balatonlelle

78 M Ft
4 szoba
117 m2
Eladó családi ház
Eladó családi ház

Balatonfenyves

77 M Ft
7 szoba
120 m2
Eladó családi ház
Eladó családi ház

Balatonlelle

123 M Ft
3 + 2 szoba
140 m2
Eladó családi ház
Eladó családi ház

Látrány

74.99 M Ft
4 szoba
138 m2
Eladó családi ház
Eladó családi ház

Siófok

330 M Ft
12 szoba
Eladó családi ház
Eladó családi ház

Fonyód

112.9 M Ft
4 + 1 szoba
150 m2
Eladó családi ház
Eladó családi ház

Csurgó

39.9 M Ft
5 szoba
300 m2
Eladó családi ház
Eladó családi ház

Siófok

178.999 M Ft
4 szoba
150 m2
Eladó családi ház
Eladó családi ház

Siójut

32 M Ft
4 szoba
108 m2
Eladó családi ház
Eladó családi ház

Balatonlelle

129 M Ft
6 szoba
178 m2
Eladó családi ház
Eladó családi ház

Balatonlelle

350 M Ft
14 szoba
400 m2
Eladó családi ház
Eladó családi ház

Balatonlelle

124.9 M Ft
4 szoba
125 m2
Eladó családi ház
Eladó családi ház

Marcali

149 M Ft
7 + 4 szoba
400 m2
Eladó családi ház
Eladó családi ház

Siófok

498 M Ft
10 szoba
975 m2
Eladó családi ház
Eladó családi ház

Balatonlelle

139 M Ft
9 szoba
265 m2
Eladó családi ház
Eladó családi ház

Balatonlelle

78 M Ft
4 szoba
117 m2
Eladó családi ház
Eladó családi ház

Balatonföldvár

78.821 M Ft
4 szoba
93 m2
Eladó családi ház
Eladó családi ház

Balatonlelle

250 M Ft
12 szoba
260 m2
Eladó családi ház
Eladó családi ház

Balatonlelle

174.99 M Ft
7 szoba
230 m2
Eladó családi ház
Eladó családi ház

Zamárdi

126 M Ft
6 szoba
120 m2
Eladó családi ház
Eladó családi ház

Balatonlelle

250 M Ft
8 szoba
260 m2
Eladó családi ház
Eladó családi ház

Balatonlelle

620 M Ft
12 szoba
1300 m2

Falusi CSOK ingatlanok

Eladó családi ház
Eladó családi ház

Fonyód

89.9 M Ft
7 szoba
151 m2
Eladó családi ház
Eladó családi ház

Sumony

19 M Ft
4 szoba
120 m2
Eladó családi ház
Eladó családi ház

Szomolya

57.85 M Ft
4 szoba
117 m2
Eladó családi ház
Eladó családi ház

Somogymeggyes

14 M Ft
3 szoba
86 m2
Eladó családi ház
Eladó családi ház

Görcsöny

49.9 M Ft
5 szoba
120 m2
Eladó családi ház
Eladó családi ház

Tésenfa, Kossuth utca 23/a

5.55 M Ft
1 + 1 szoba
109 m2
Eladó családi ház
Eladó családi ház

Mezőlak, Arany János utca

35.7 M Ft
3 szoba
104 m2
Eladó családi ház
Eladó családi ház

Szigliget

299 M Ft
3 szoba
95 m2