Avico Greentop

Eladó családi ház
Nyíregyháza

79 900 000 Ft79.9 M Ft 700 877 Ft/m2
3 szoba
114 m²
építés éve:2026

Részletes adatok

Telekméret: 720 m2
Fűtés: Egyéb
Energetikai besorolás: Nem adta meg a hirdető

Az OTP Bank lakáshitel ajánlataFizetett hirdetés

+36 70 661
Bm
referens

Érdekel az OTP Bank kedvezményes lakáshitel ajánlata? *

* A kérdésre „Igen” válasz bejelölése esetén, az „Üzenet küldése” gombra kattintva kijelentem, hogy az OTP Bank Nyrt. Adatkezelési tájékoztatójának tartalmát megismertem és tudomásul vettem.

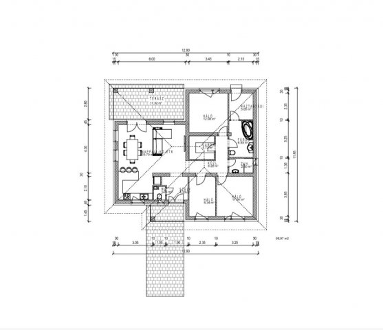
Eladó családi ház leírása

Nyíregyháza - Nyírszőlős kedvelt részén ÚJ ÉPÍTÉSŰ ÖNÁLLÓ csaladi ház eladó!


Az ingatlan főbb jellemzői:

Lakótér 97 m2 + Terasz 17,32m2

Telek: 720 m2

Porotherm 30 N+F tégla falazat, 15 cm-es homlokzati szigeteléssel ellátva, Válaszfal kialakítása Leier vagy porotherm 10 cm-es válaszfal téglából.

Fokozottan hőszigetelt, 3 réteg üvegezésű, 6 légkamrás műanyag nyílászárók,

A tetőfedés kerámia vagy beton cseréppel történik.

Fűtése HŐSZIVATTYÚS, minden helyiségben padlófűtéssel, 1 db SPLITKLIMA 3,5KW

A szobákban laminált padló, a többi helyiségben kerámia burkolat.

Burkolatok, szaniterek, beltéri ajtók még választhatóak értékegyeztetéssel,

Várható átadás: 2026 év vége

Megbízható, komoly, számos referenciával rendelkező kivitelezőtől

Amennyiben hirdetésem felkeltette az érdeklődését keressen bizalommal!

Hirdetés feltöltve: 2026. 03. 08. Utoljára módosítva: 2026. 04. 11.

3 szobás családi házak ára Nyíregyházán

Ebből az összehasonlításból megtudhatod, hogyan viszonyul a lakás ára a környékbeli családi házak átlagos árához. Ez nem azt jelenti, hogy ennyivel olcsóbb vagy drágább, mint amennyit a lakás ér, hanem hogy ennyivel tér el a környékbeli átlagtól.

Ennek a m² ára
Nyíregyháza m² ár
701 e Ft
679 e Ft -3%
Ennek az ára
Nyíregyháza átlagár
79.9 M Ft m Ft
81.1 m Ft 2%

Az ingatlan elhelyezkedése

Cím: Nyíregyháza

Eladó családi házak a környékről

Nyíregyháza
Eladó családi ház

Nyíregyháza

69.9 M Ft
4 szoba
165 m²
Nyíregyháza
Eladó családi ház

Nyíregyháza

88 M Ft
3 szoba
256 m²
Nyíregyháza
Eladó családi ház

Nyíregyháza

250 M Ft
4 szoba
440 m²
Nyíregyháza
Eladó családi ház

Nyíregyháza

90 M Ft
3 + 1 szoba
100 m²
Nyíregyháza
Eladó családi ház

Nyíregyháza

89.9 M Ft
5 szoba
274 m²
Nyíregyháza
Eladó családi ház

Nyíregyháza

65 M Ft
3 szoba
135 m²
Nyíregyháza
Eladó családi ház

Nyíregyháza

190 M Ft
4 szoba
230 m²
Nyíregyháza
Eladó családi ház

Nyíregyháza

140 M Ft
3 szoba
190 m²
Nyíregyháza
Eladó családi ház

Nyíregyháza

90 M Ft
3 szoba
170 m²
Nyíregyháza
Eladó családi ház

Nyíregyháza

199.9 M Ft
6 szoba
500 m²
Nyíregyháza
Eladó családi ház

Nyíregyháza

90 M Ft
3 + 1 szoba
100 m²
Nyíregyháza
Eladó családi ház

Nyíregyháza

65 M Ft
3 szoba
135 m²
Nyíregyháza
Eladó családi ház

Nyíregyháza

150 M Ft
2 szoba
120 m²
Nyíregyháza
Eladó családi ház

Nyíregyháza

63.9 M Ft
2 + 1 szoba
100 m²
Nyíregyháza
Eladó családi ház

Nyíregyháza

69.9 M Ft
4 szoba
165 m²
Nyíregyháza
Eladó családi ház

Nyíregyháza

240 M Ft
3 szoba
204 m²
Nyíregyháza
Eladó családi ház

Nyíregyháza

100 M Ft
4 szoba
220 m²
Nyíregyháza
Eladó családi ház

Nyíregyháza

90 M Ft
5 szoba
210 m²
Kemecse
Eladó családi ház

Kemecse

27 M Ft
2 + 1 szoba
96 m²
Nyíregyháza
Eladó családi ház

Nyíregyháza

140 M Ft
3 szoba
190 m²
Nyíregyháza
Eladó családi ház

Nyíregyháza

94 M Ft
3 szoba
110 m²
Nyíregyháza
Eladó családi ház

Nyíregyháza

100 M Ft
4 szoba
220 m²
Nyíregyháza
Eladó családi ház

Nyíregyháza

290 M Ft
4 szoba
620 m²
Nyíregyháza
Eladó családi ház

Nyíregyháza

90 M Ft
5 szoba
210 m²

Falusi CSOK ingatlanok

Fülöpszállás
Eladó családi ház

Fülöpszállás

69.9 M Ft
4 szoba
190 m²
Jánosháza
Eladó családi ház

Jánosháza

23.5 M Ft
3 szoba
90 m²
Seregélyes
Eladó családi ház

Seregélyes

75 M Ft
6 szoba
160 m²
Pilisszentkereszt
Eladó családi ház

Pilisszentkereszt

68.9 M Ft
2 szoba
50 m²
Röszke
Eladó családi ház

Röszke

69.99 M Ft
4 szoba
99 m²
Marcalgergelyi
Eladó családi ház

Marcalgergelyi

31 M Ft
2 + 1 szoba
120 m²
Egerbakta
Eladó családi ház

Egerbakta

43.9 M Ft
5 + 1 szoba
160 m²
Hegyeshalom, Margaréta utca 12
Eladó téglalakás

Hegyeshalom

32.89 M Ft
1 szoba
27 m²