Aerogate Homes

Eladó családi ház
Nyíregyháza, 1. emelet

1/2
71 500 000 Ft71.5 M Ft 768 817 Ft/m2
3 szoba
93 m2
1. emelet
építés éve:2026

Részletes adatok

Telekméret: 500 m2
Fűtés: Gázkazán
Emelet: 1. emelet
Energetikai besorolás: Nem adta meg a hirdető

Az OTP Bank lakáshitel ajánlataFizetett hirdetés

+36 30 409
Bugyi Zsuzsa
Szabolcs Ingatlanközvetítő Iroda

Érdekel az OTP Bank kedvezményes lakáshitel ajánlata? *

* A kérdésre „Igen” válasz bejelölése esetén, az „Üzenet küldése” gombra kattintva kijelentem, hogy az OTP Bank Nyrt. Adatkezelési tájékoztatójának tartalmát megismertem és tudomásul vettem.

Eladó családi ház leírása

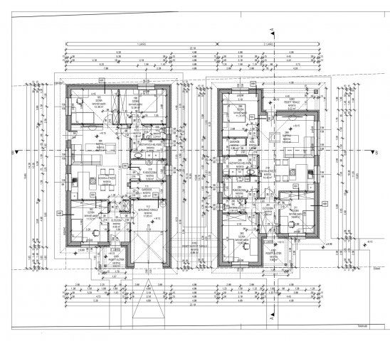
Nyíregyháza–Nyírszőlős központjában eladó egy új építésű, 93 m²-es családi ház.Az ingatlan nappali + 3 szobás kialakítású, teraszkapcsolatos nappalival, külön gardróbhelyiséggel, önálló fürdőszobával és 2 WC-vel.
A burkolatok (járólap, laminált parketta), a beltéri ajtók és a szaniterek szabadon választhatók, így az otthon saját ízlés szerint alakítható.A fűtést egyedi gáz kondenzációs kazán biztosítja padlófűtéssel, kiegészítve 2 db inverteres hűtő-fűtő klímával.
Az épület 3 rétegű üvegezésű műanyag nyílászárókkal, utcafronton épített kerítéssel, valamint kiváló hőszigeteléssel készül:– 15 cm homlokzati szigetelés– 30 cm födémszigetelés– 10 cm aljzatszigetelés
A ház 2026 év végén kerül átadásra, ideális választás modern, energiatakarékos otthont keresők számára.Az ingatlan azonosítója: 99706Érdeklődni: +36304092510

Hirdetés feltöltve: 2026. 02. 06. Utoljára módosítva: 2026. 02. 06.

3 szobás családi házak ára Nyíregyházán

Ebből az összehasonlításból megtudhatod, hogyan viszonyul a lakás ára a környékbeli családi házak átlagos árához. Ez nem azt jelenti, hogy ennyivel olcsóbb vagy drágább, mint amennyit a lakás ér, hanem hogy ennyivel tér el a környékbeli átlagtól.

Ennek a m² ára
Nyíregyháza m² ár
769 e Ft
654 e Ft -18%
Ennek az ára
Nyíregyháza átlagár
71.5 M Ft m Ft
75 m Ft 5%

Az ingatlan elhelyezkedése

Cím: Nyíregyháza, 1. emelet

Eladó családi házak a környékről

Eladó családi ház
Eladó családi ház

Nyíregyháza

159 M Ft
2 szoba
130 m2
Eladó családi ház
Eladó családi ház

Nyíregyháza

250 M Ft
4 szoba
440 m2
Eladó családi ház
Eladó családi ház

Nyíregyháza

60 M Ft
3 szoba
100 m2
Eladó családi ház
Eladó családi ház

Nyíregyháza

90 M Ft
3 szoba
170 m2
Eladó családi ház
Eladó családi ház

Nyíregyháza

89.9 M Ft
5 szoba
274 m2
Eladó családi ház
Eladó családi ház

Nyíregyháza

82 M Ft
4 szoba
140 m2
Eladó családi ház
Eladó családi ház

Nyíregyháza

140 M Ft
3 szoba
168 m2
Eladó családi ház
Eladó családi ház

Nyíregyháza

98 M Ft
4 szoba
125 m2
Eladó családi ház
Eladó családi ház

Nyíregyháza

44.5 M Ft
2 szoba
60 m2
Eladó családi ház
Eladó családi ház

Nyíregyháza

68 M Ft
4 szoba
220 m2
Eladó családi ház
Eladó családi ház

Nyíregyháza

91.7 M Ft
4 szoba
142 m2
Eladó családi ház
Eladó családi ház

Nyíregyháza

240 M Ft
3 szoba
204 m2
Eladó családi ház
Eladó családi ház

Nyíregyháza

62 M Ft
4 szoba
140 m2
Eladó családi ház
Eladó családi ház

Nyíregyháza

92 M Ft
3 szoba
161 m2
Eladó családi ház
Eladó családi ház

Nyíregyháza

190 M Ft
4 szoba
230 m2
Eladó családi ház
Eladó családi ház

Nyíregyháza

250 M Ft
4 szoba
440 m2
Eladó családi ház
Eladó családi ház

Nyíregyháza

90 M Ft
5 szoba
210 m2
Eladó családi ház
Eladó családi ház

Nyíregyháza

190 M Ft
4 szoba
230 m2
Eladó családi ház
Eladó családi ház

Napkor

49.9 M Ft
4 szoba
253 m2
Eladó családi ház
Eladó családi ház

Nyíregyháza

150 M Ft
2 szoba
120 m2
Eladó családi ház
Eladó családi ház

Nyíregyháza

90 M Ft
3 szoba
170 m2
Eladó családi ház
Eladó családi ház

Nyíregyháza

60 M Ft
3 szoba
100 m2
Eladó családi ház
Eladó családi ház

Nyíregyháza

64.9 M Ft
3 szoba
140 m2
Eladó családi ház
Eladó családi ház

Nyíregyháza

62 M Ft
4 szoba
140 m2

Falusi CSOK ingatlanok

Eladó családi ház
Eladó családi ház

Csemő

36.6 M Ft
1 szoba
48 m2
Eladó családi ház
Eladó családi ház

Kenyeri

39.9 M Ft
3 szoba
94 m2
Eladó családi ház
Eladó családi ház

Újlengyel

110 M Ft
4 szoba
121 m2
Eladó panellakás
Eladó panellakás

Pétfürdő

49.9 M Ft
3 szoba
71 m2
Eladó családi ház
Eladó családi ház

Kemeneshőgyész

8 M Ft
2 szoba
60 m2
Eladó családi ház
Eladó családi ház

Szakmár

12.9 M Ft
3 + 1 szoba
90 m2
Eladó családi ház
Eladó családi ház

Somogyhárságy

186.69 M Ft
5 szoba
250 m2
Eladó családi ház
Eladó családi ház

Szabadbattyán

67.5 M Ft
5 szoba
180 m2