Astora Art House

Eladó családi ház
Nyíregyháza

+ 15 kép 1/18
47 500 000 Ft47.5 M Ft 625 000 Ft/m2
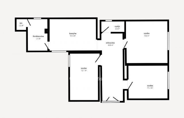
2 + 1 szoba
76 m2
építés éve:1975

Részletes adatok

Állapot: Felújítandó
Telekméret: 3572 m2
Fűtés: Elektromos
Energetikai besorolás: Nem adta meg a hirdető

Az OTP Bank lakáshitel ajánlataFizetett hirdetés

+36 30 722
Harsányi Nikolett
OTPIP Nyíregyháza Hunyadi u.

Érdekel az OTP Bank kedvezményes lakáshitel ajánlata? *

* A kérdésre „Igen” válasz bejelölése esetén, az „Üzenet küldése” gombra kattintva kijelentem, hogy az OTP Bank Nyrt. Adatkezelési tájékoztatójának tartalmát megismertem és tudomásul vettem.

Eladó családi ház leírása

Eladó gazdálkodásra alkalmas családi ház Nyíregyháza közelében - nagy telekkel és melléképületekkel.

Nyíregyháza belvárosától mindössze 10 perc autóútra, nyugodt, csendes környezetben eladó egy 76 nm-es, vegyes falazatú, stabil szerkezetű családi ház, amely 1975-ben épült. Az ingatlan 2,5 szobával, konyhával, fürdőszobával, külön WC-vel, kamrával és nyári konyhával rendelkezik.

A ház jó alapot kínál azok számára, akik szeretnének saját elképzeléseik szerint korszerűsíteni, és egy hangulatos, vidéki otthont vagy kisebb gazdaságot kialakítani. A tágas terek és a praktikus elrendezés számos lehetőséget rejtenek magukban.

A 3572 nm-es telek ideális kertészkedésre, gazdálkodásra vagy akár állattartásra. A melléképületek jól kihasználhatók tárolásra, műhelyként vagy gazdasági célokra. Az ingatlan megközelítése egyszerű, ugyanakkor a környezet csendes, zöldövezeti jellegű, így tökéletes választás azoknak, akik a természet közelségében, mégis a város közelében szeretnének élni.

Ez az ingatlan kiváló lehetőség mindazoknak, akik saját igényeikre szabott, tágas telekkel rendelkező otthont keresnek, ahol nyugalom, szabadság és lehetőség egyszerre adott.

OTP Banki hátterünknek köszönhetően finanszírozási igényekben (pl. Otthon Start Hitelprogram , Babaváró, Falusi CSOK, CSOK Plusz, Lakáshitel, Személyi kölcsön stb.), illetve biztosítások tekintetében is díjmentesen, soron kívüli ügyintézéssel segítem ügyfeleim! Referenciaszám: M310599

Hirdetés feltöltve: 2025. 12. 11. Utoljára módosítva: 2026. 01. 13.

3 szobás családi házak ára Nyíregyházán

Ebből az összehasonlításból megtudhatod, hogyan viszonyul a lakás ára a környékbeli családi házak átlagos árához. Ez nem azt jelenti, hogy ennyivel olcsóbb vagy drágább, mint amennyit a lakás ér, hanem hogy ennyivel tér el a környékbeli átlagtól.

Ennek a m² ára
Nyíregyháza m² ár
625 e Ft
651 e Ft 4%
Ennek az ára
Nyíregyháza átlagár
47.5 M Ft m Ft
75.3 m Ft 37%

Az ingatlan elhelyezkedése

Cím: Nyíregyháza

Eladó családi házak a környékről

Eladó családi ház
Eladó családi ház

Nyíregyháza

75.9 M Ft
6 szoba
240 m2
Eladó családi ház
Eladó családi ház

Nyíregyháza

90.99 M Ft
3 szoba
150 m2
Eladó családi ház
Eladó családi ház

Nyíregyháza

250 M Ft
4 szoba
440 m2
Eladó családi ház
Eladó családi ház

Nyíregyháza

44.5 M Ft
2 szoba
60 m2
Eladó családi ház
Eladó családi ház

Nyíregyháza

90 M Ft
5 szoba
210 m2
Eladó családi ház
Eladó családi ház

Nyírtelek

10.9 M Ft
2 szoba
55 m2
Eladó családi ház
Eladó családi ház

Nyíregyháza

92 M Ft
3 szoba
161 m2
Eladó családi ház
Eladó családi ház

Nyíregyháza

82 M Ft
4 szoba
140 m2
Eladó családi ház
Eladó családi ház

Balsa

38.9 M Ft
6 szoba
120 m2
Eladó családi ház
Eladó családi ház

Nyíregyháza

89.9 M Ft
5 szoba
274 m2
Eladó családi ház
Eladó családi ház

Nyíregyháza

199.9 M Ft
6 szoba
500 m2
Eladó családi ház
Eladó családi ház

Napkor

49.9 M Ft
4 szoba
253 m2
Eladó családi ház
Eladó családi ház

Nyíregyháza

89.9 M Ft
5 szoba
274 m2
Eladó családi ház
Eladó családi ház

Nyírtelek

130 M Ft
3 szoba
159 m2
Eladó családi ház
Eladó családi ház

Nyíregyháza

64.9 M Ft
3 szoba
140 m2
Eladó családi ház
Eladó családi ház

Nyíregyháza

60 M Ft
3 szoba
100 m2
Eladó családi ház
Eladó családi ház

Nyíregyháza

150 M Ft
2 szoba
120 m2
Eladó családi ház
Eladó családi ház

Nyíregyháza

140 M Ft
3 szoba
168 m2
Eladó családi ház
Eladó családi ház

Nyíregyháza

150 M Ft
2 szoba
120 m2
Eladó családi ház
Eladó családi ház

Nyíregyháza

240 M Ft
3 szoba
204 m2
Eladó családi ház
Eladó családi ház

Nyíregyháza

240 M Ft
3 szoba
204 m2
Eladó családi ház
Eladó családi ház

Nyíregyháza

199.9 M Ft
6 szoba
500 m2
Eladó családi ház
Eladó családi ház

Nyíregyháza

62 M Ft
4 szoba
140 m2
Eladó családi ház
Eladó családi ház

Nyíregyháza

91.7 M Ft
4 szoba
142 m2

Falusi CSOK ingatlanok

Eladó családi ház
Eladó családi ház

Szederkény

107.9 M Ft
6 szoba
224 m2
Eladó családi ház
Eladó családi ház

Somogygeszti

38.6 M Ft
3 + 1 szoba
98 m2
Eladó családi ház
Eladó családi ház

Darnózseli

79.9 M Ft
4 szoba
104 m2
Eladó családi ház
Eladó családi ház

Szigetcsép, Szabadság utca

62 M Ft
4 szoba
120 m2
Eladó családi ház
Eladó családi ház

Háromfa, Kossuth

22.4 M Ft
139 m2
Eladó családi ház
Eladó családi ház

Mályi

84.9 M Ft
4 szoba
100 m2
Eladó családi ház
Eladó családi ház

Zengővárkony

28 M Ft
3 szoba
87 m2
Eladó családi ház
Eladó családi ház

Csengőd

42 M Ft
2 szoba
81 m2