Aerogate Homes

Eladó családi ház
Nyíregyháza

+ 5 kép 1/8
71 900 000 Ft71.9 M Ft 698 058 Ft/m2
3 szoba
103 m2
építés éve:2025

Részletes adatok

Telekméret: 1100 m2
Fűtés: Egyéb
Energetikai besorolás: Nem adta meg a hirdető

Az OTP Bank lakáshitel ajánlataFizetett hirdetés

+36 31 771
Huszár Gabriella
OTPIP Nyíregyháza Hunyadi u.

Érdekel az OTP Bank kedvezményes lakáshitel ajánlata? *

* A kérdésre „Igen” válasz bejelölése esetén, az „Üzenet küldése” gombra kattintva kijelentem, hogy az OTP Bank Nyrt. Adatkezelési tájékoztatójának tartalmát megismertem és tudomásul vettem.

Eladó családi ház leírása

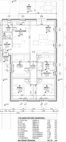
Eladó Nyíregyháza területén egy vadonatúj, modern családi ház, egy 1100 m?-es telken! Az ingatlan hasznos alapterülete 101,3 m?, melyhez 1,6 m? belépő és egy 20 m?-es terasz is tartozik. A tervek rugalmasan módosíthatók, így egyedi igények alapján akár 80-250 m? közötti méretű házat is kialakíthatunk! A ház Porotherm 30-as téglából készült, 15 cm-es polisztirolhab szigeteléssel, a tetőt beton cserép borítja, mely választható színben elérhető. A fafödém szigetelése 30 cm, az aljzatszigetelés pedig 12 cm vastag. A nyílászárók 3 rétegű, melegperemes üvegezésűek, és választható bejárati ajtóval készülnek. A belső ajtók modern dizájnúak, akár 120 ezer Ft/db áron. A ház fűtését hőszivattyú és padlófűtés biztosítja, a fürdőszobában pedig törölközőszárító radiátor található. A villanyszerelés teljes körű, a belső festés igény szerint választható színben, a burkolatok pedig 10.000 Ft/m?-ig választhatók. A ház teljes körű szaniterekkel felszerelt. Külső térkövezés, komplett kerítés és elektromos kapu is biztosított. Az ingatlan kulcsrakészen kerül átadásra, az építési idő pedig maximum 4 hónap. Igény esetén a ház napelemmel vagy több darab klímával is felszerelhető. Ne hagyja ki ezt a fantasztikus lehetőséget! Ha szeretne egy prémium minőségű, energiatakarékos családi házat Nyíregyházán, vegye fel velünk a kapcsolatot és kezdje el az otthonteremtést még ma! Az ingatlan egyeztetett időpontban megtekinthető! Bővebb információért vagy megtekintésért hívjon bizalommal! OTP Banki hátterünknek köszönhetően finanszírozási igényekben (pl. Babaváró, Falusi CSOK, CSOK Plusz, Lakáshitel, Személyi kölcsön stb.), illetve biztosítások tekintetében is díjmentesen, soron kívüli ügyintézéssel segítem ügyfeleim! Referenciaszám: M299997

Hirdetés feltöltve: 2025. 12. 05. Utoljára módosítva: 2026. 01. 13.

3 szobás családi házak ára Nyíregyházán

Ebből az összehasonlításból megtudhatod, hogyan viszonyul a lakás ára a környékbeli családi házak átlagos árához. Ez nem azt jelenti, hogy ennyivel olcsóbb vagy drágább, mint amennyit a lakás ér, hanem hogy ennyivel tér el a környékbeli átlagtól.

Ennek a m² ára
Nyíregyháza m² ár
698 e Ft
651 e Ft -7%
Ennek az ára
Nyíregyháza átlagár
71.9 M Ft m Ft
75.3 m Ft 5%

Az ingatlan elhelyezkedése

Cím: Nyíregyháza

Eladó családi házak a környékről

Eladó családi ház
Eladó családi ház

Nyíregyháza

60 M Ft
3 szoba
100 m2
Eladó családi ház
Eladó családi ház

Napkor

49.9 M Ft
4 szoba
253 m2
Eladó családi ház
Eladó családi ház

Nyíregyháza

90 M Ft
3 szoba
170 m2
Eladó családi ház
Eladó családi ház

Nyíregyháza

89.9 M Ft
5 szoba
274 m2
Eladó családi ház
Eladó családi ház

Nyíregyháza

89.9 M Ft
5 szoba
274 m2
Eladó családi ház
Eladó családi ház

Napkor

115 M Ft
5 szoba
292 m2
Eladó családi ház
Eladó családi ház

Nyíregyháza

68 M Ft
4 szoba
220 m2
Eladó családi ház
Eladó családi ház

Nyíregyháza

150 M Ft
2 szoba
120 m2
Eladó családi ház
Eladó családi ház

Napkor

115 M Ft
5 szoba
292 m2
Eladó családi ház
Eladó családi ház

Balsa

38.9 M Ft
6 szoba
120 m2
Eladó családi ház
Eladó családi ház

Nyíregyháza

91.7 M Ft
4 szoba
142 m2
Eladó családi ház
Eladó családi ház

Nyírtelek

10.9 M Ft
2 szoba
55 m2
Eladó családi ház
Eladó családi ház

Nyíregyháza

90 M Ft
5 szoba
210 m2
Eladó családi ház
Eladó családi ház

Nyíregyháza

90 M Ft
3 szoba
170 m2
Eladó családi ház
Eladó családi ház

Nyíregyháza

92 M Ft
3 szoba
161 m2
Eladó családi ház
Eladó családi ház

Nyíregyháza

159 M Ft
2 szoba
130 m2
Eladó családi ház
Eladó családi ház

Nyíregyháza

82 M Ft
4 szoba
140 m2
Eladó családi ház
Eladó családi ház

Nyíregyháza

199.9 M Ft
6 szoba
500 m2
Eladó családi ház
Eladó családi ház

Nyíregyháza

91.7 M Ft
4 szoba
142 m2
Eladó családi ház
Eladó családi ház

Levelek

29.8 M Ft
2 szoba
80 m2
Eladó családi ház
Eladó családi ház

Nyíregyháza

92 M Ft
3 szoba
161 m2
Eladó családi ház
Eladó családi ház

Nyíregyháza

62 M Ft
4 szoba
140 m2
Eladó családi ház
Eladó családi ház

Nyíregyháza

240 M Ft
3 szoba
204 m2
Eladó családi ház
Eladó családi ház

Nyíregyháza

68 M Ft
4 szoba
220 m2

Falusi CSOK ingatlanok

Eladó családi ház
Eladó családi ház

Rábapaty

99.99 M Ft
5 szoba
132 m2
Eladó családi ház
Eladó családi ház

Mályi

84.9 M Ft
4 szoba
100 m2
Eladó családi ház
Eladó családi ház

Szászvár, Zártkert

3.4 M Ft
1 szoba
58 m2
Eladó családi ház
Eladó családi ház

Kaposgyarmat

695 M Ft
6 szoba
610 m2
Eladó családi ház
Eladó családi ház

Véménd, Rákóczi Ferenc utca

31 M Ft
4 szoba
120 m2
Eladó családi ház
Eladó családi ház

Somogygeszti

38.6 M Ft
3 + 1 szoba
98 m2
Eladó családi ház
Eladó családi ház

Szigetcsép, Szabadság utca

62 M Ft
4 szoba
120 m2
Eladó családi ház
Eladó családi ház

Kesztölc

37.9 M Ft
3 szoba
75 m2