Seven Pearl

Eladó családi ház
Nyíregyháza, földszint

+ 6 kép 1/9
98 500 000 Ft98.5 M Ft 708 633 Ft/m2
3 szoba
139 m2
földszint
építés éve:2026

Részletes adatok

Telekméret: 3200 m2
Fűtés: Gázkazán
Energetikai besorolás: Nem adta meg a hirdető

Az OTP Bank lakáshitel ajánlataFizetett hirdetés

+36 30 308
Gáva Aliz
Favorit Ingatlan iroda

Érdekel az OTP Bank kedvezményes lakáshitel ajánlata? *

* A kérdésre „Igen” válasz bejelölése esetén, az „Üzenet küldése” gombra kattintva kijelentem, hogy az OTP Bank Nyrt. Adatkezelési tájékoztatójának tartalmát megismertem és tudomásul vettem.

Eladó családi ház leírása

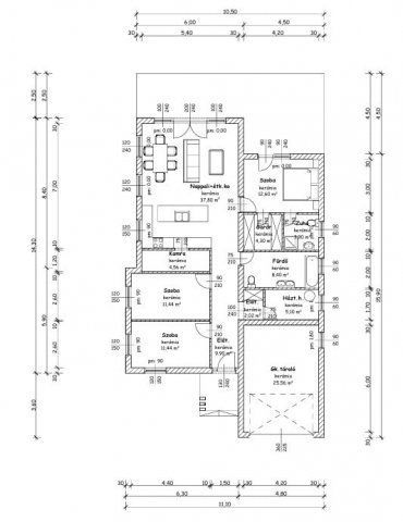
Nyíregyházán- Oroson, eladásra kínálok Új építésű, Nappali + 3 szobás, 139 nm-es, önálló családi házat, 25,5 nm-es garázzsal, 40 nm-es terasszal.Az ingatlan 100 %-ban kulcsrakész állapotban, megbízható kivitelezőtől, referencia munkákkal!Elrendezése:

Nappali–konyha–étkező - 40 nm-es teraszkapcsolattal,
3 külön nyíló szoba, - 1 szobához:  gardrób és zuhanyzós fürdőszoba kapcsolódik,
Fürdőszoba,
Háztartási helyiség,
Kamra,
Előtér,
Garázs - 25,5 nm.

 
Főbb jellemzők:

Tégla falazat (Porotherm 30 ), 15 cm-es külső szigeteléssel,
30 cm-es födémszigeteléssel,
Hőszivattyús padlófűtés,
Alacsony lejtésszögű lemeztető
3 rétegű Műanyag nyílászárók,
3200 nm-es saját telekterülettel.

A vételár tartalmazza a kerítést, az automata garázskaput, valamint térkövezett bejáratot. Az ingatlan tágas és világos terekkel, átgondolt elrendezéssel és igényes kivitelezéssel rendelkezik.
A kivitelező korábbi munkái megtekinthetők – igény esetén referenciaingatlan bemutatása megoldható!
 

A hirdetésben szereplő képek referencia ingatlanról készültek!
Amennyiben felkeltette az érdeklődését, várom hívását!
Az ingatlan azonosítója: 69322Érdeklődni: +36303089895

Hirdetés feltöltve: 2025. 11. 30. Utoljára módosítva: 2025. 11. 30.

3 szobás családi házak ára Nyíregyházán

Ebből az összehasonlításból megtudhatod, hogyan viszonyul a lakás ára a környékbeli családi házak átlagos árához. Ez nem azt jelenti, hogy ennyivel olcsóbb vagy drágább, mint amennyit a lakás ér, hanem hogy ennyivel tér el a környékbeli átlagtól.

Ennek a m² ára
Nyíregyháza m² ár
709 e Ft
634 e Ft -12%
Ennek az ára
Nyíregyháza átlagár
98.5 M Ft m Ft
78.5 m Ft -25%

Az ingatlan elhelyezkedése

Cím: Nyíregyháza, földszint

Eladó családi házak a környékről

Eladó családi ház
Eladó családi ház

Nyíregyháza

199.9 M Ft
6 szoba
500 m2
Eladó családi ház
Eladó családi ház

Nyíregyháza, Oros, Oros

55 M Ft
4 szoba
100 m2
Eladó családi ház
Eladó családi ház

Nyíregyháza

240 M Ft
3 szoba
204 m2
Eladó családi ház
Eladó családi ház

Nyíregyháza

87 M Ft
5 szoba
210 m2
Eladó családi ház
Eladó családi ház

Nyírtelek

68.9 M Ft
12 szoba
440 m2
Eladó családi ház
Eladó családi ház

Nyíregyháza

28 M Ft
2 szoba
75 m2
Eladó családi ház
Eladó családi ház

Nyíregyháza

68 M Ft
4 szoba
220 m2
Eladó családi ház
Eladó családi ház

Nyíregyháza

190 M Ft
4 szoba
230 m2
Eladó családi ház
Eladó családi ház

Nyíregyháza

140 M Ft
3 szoba
168 m2
Eladó családi ház
Eladó családi ház

Nyíregyháza

250 M Ft
4 szoba
440 m2
Eladó családi ház
Eladó családi ház

Nyíregyháza

85 M Ft
3 szoba
110 m2
Eladó családi ház
Eladó családi ház

Nyíregyháza

150 M Ft
5 szoba
180 m2
Eladó családi ház
Eladó családi ház

Nyíregyháza

85 M Ft
3 szoba
110 m2
Eladó családi ház
Eladó családi ház

Nyíregyháza

250 M Ft
4 szoba
440 m2
Eladó családi ház
Eladó családi ház

Nyíregyháza

98 M Ft
4 szoba
125 m2
Eladó családi ház
Eladó családi ház

Nyíregyháza

87 M Ft
5 szoba
210 m2
Eladó családi ház
Eladó családi ház

Nyíregyháza

85 M Ft
3 szoba
170 m2
Eladó családi ház
Eladó családi ház

Nyírtelek

10.9 M Ft
2 szoba
55 m2
Eladó családi ház
Eladó családi ház

Nyíregyháza

44.9 M Ft
1 szoba
51 m2
Eladó családi ház
Eladó családi ház

Nyíregyháza

89.9 M Ft
5 szoba
274 m2
Eladó családi ház
Eladó családi ház

Nyíregyháza

60 M Ft
3 szoba
100 m2
Eladó családi ház
Eladó családi ház

Nyíregyháza

60 M Ft
3 szoba
100 m2
Eladó családi ház
Eladó családi ház

Nyíregyháza

240 M Ft
3 szoba
204 m2
Eladó családi ház
Eladó családi ház

Nyíregyháza

98 M Ft
4 szoba
125 m2

Falusi CSOK ingatlanok

Eladó családi ház
Eladó családi ház

Törtel

18 M Ft
6 szoba
188 m2
Eladó családi ház
Eladó családi ház

Balatonszentgyörgy

61.692 M Ft
4 szoba
126 m2
Eladó családi ház
Eladó családi ház

Onga, 3562 Onga, József Attila utca 26

17.75 M Ft
1 + 1 szoba
174 m2
Eladó családi ház
Eladó családi ház

Magyarszék

48.5 M Ft
3 + 1 szoba
86 m2
Eladó családi ház
Eladó családi ház

Szederkény

107.9 M Ft
6 szoba
224 m2
Eladó családi ház
Eladó családi ház

Gyömöre

45.99 M Ft
2 szoba
118 m2
Eladó családi ház
Eladó családi ház

Újlengyel

110 M Ft
4 szoba
121 m2
Eladó családi ház
Eladó családi ház

Seregélyes

75 M Ft
6 szoba
160 m2