Astora Márvány8

Eladó családi ház
Nyíregyháza

+ 17 kép 1/20
58 000 000 Ft58 M Ft 500 000 Ft/m2
3 + 1 szoba
116 m2
építés éve:1990

Részletes adatok

Állapot: Átlagos
Telekméret: 700 m2
Fűtés: Egyéb
Energetikai besorolás: Nem adta meg a hirdető

Az OTP Bank lakáshitel ajánlataFizetett hirdetés

+36 30 097
Katona Ferenc
OTPIP Nyíregyháza Hunyadi u.

Érdekel az OTP Bank kedvezményes lakáshitel ajánlata? *

* A kérdésre „Igen” válasz bejelölése esetén, az „Üzenet küldése” gombra kattintva kijelentem, hogy az OTP Bank Nyrt. Adatkezelési tájékoztatójának tartalmát megismertem és tudomásul vettem.

Eladó családi ház leírása

Eladó családi ház Nyíregyháza-Rozsrétszőlőben
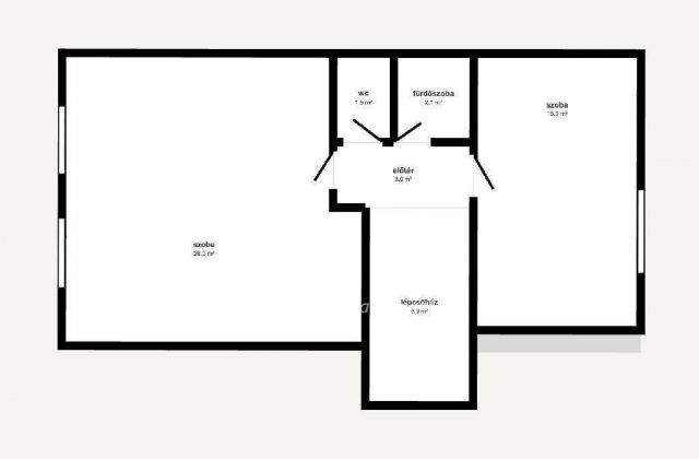
Nyíregyháza-Rozsrétszőlő csendes, rendezett részén eladásra kínálunk egy földszintes, tetőtér-beépítéses, teljesen alápincézett családi házat.
A földszint kb. 70 nm -es, a tetőtér szintén kb. 70 nm alapterületű, ahol két szoba és egy fürdőszoba található. A földszinthez egy 8 nm-es terasz kapcsolódik. A tető időtálló betoncseréppel fedett.
Az ingatlan a ?90-es években épült vázkerámia falazóelemből, az akkori hőtechnikai előírásoknak megfelelően. A víz-, gáz- és villanyvezetékek korszerűek, a meleg vizet elektromos bojler biztosítja.
A fűtés többféleképpen megoldható: gázkazánnal, cserépkályhával vagy elektromos energiával. A tetőn 5 kW-os napelemrendszer működik, amely még 5 évig éves szaldó elszámolású.
A kb. 700 nm-es telek részben parkosított, részben konyhakertként használható, mérete lehetőséget biztosít az épület bővítésére is.
A környék csendes, kertvárosias, jó lakóközösséggel. Nyíregyháza belvárosa autóval 10 percen belül elérhető, rendszeres buszjárat is közlekedik. A közelben iskola, óvoda, bolt és templom található, az M3-as autópálya felhajtója pedig mindössze 5 percnyire van.
A ház több mint 30 éves, ezért részleges felújítást igényel (festés, tapétázás, kerítés- és lábazatjavítás, kertrendezés).
Az ingatlan tehermentes, azonnal birtokba vehető.
OTP Banki háttérrel díjmentes, gyors ügyintézést biztosítunk finanszírozási és biztosítási igények esetén (pl. Otthon Start Hitelprogram, Babaváró, Falusi CSOK, CSOK Plusz, lakáshitel, személyi kölcsön stb.).
Referenciaszám: M313531

Hirdetés feltöltve: 2025. 11. 28. Utoljára módosítva: 2026. 01. 18.

4 szobás családi házak ára Nyíregyházán

Ebből az összehasonlításból megtudhatod, hogyan viszonyul a lakás ára a környékbeli családi házak átlagos árához. Ez nem azt jelenti, hogy ennyivel olcsóbb vagy drágább, mint amennyit a lakás ér, hanem hogy ennyivel tér el a környékbeli átlagtól.

Ennek a m² ára
Nyíregyháza m² ár
500 e Ft
654 e Ft 24%
Ennek az ára
Nyíregyháza átlagár
58 M Ft m Ft
103 m Ft 44%

Az ingatlan elhelyezkedése

Cím: Nyíregyháza

Eladó családi házak a környékről

Eladó családi ház
Eladó családi ház

Nyíregyháza

90.99 M Ft
3 szoba
150 m2
Eladó családi ház
Eladó családi ház

Levelek

29.8 M Ft
2 szoba
80 m2
Eladó családi ház
Eladó családi ház

Nyíregyháza

90 M Ft
3 szoba
170 m2
Eladó családi ház
Eladó családi ház

Nyíregyháza

190 M Ft
4 szoba
230 m2
Eladó családi ház
Eladó családi ház

Nyíregyháza

190 M Ft
4 szoba
230 m2
Eladó családi ház
Eladó családi ház

Nyíregyháza

64.9 M Ft
3 szoba
140 m2
Eladó családi ház
Eladó családi ház

Nyíregyháza

250 M Ft
4 szoba
440 m2
Eladó családi ház
Eladó családi ház

Nyíregyháza

199.9 M Ft
6 szoba
500 m2
Eladó családi ház
Eladó családi ház

Nyíregyháza

92 M Ft
3 szoba
161 m2
Eladó családi ház
Eladó családi ház

Nyíregyháza

150 M Ft
2 szoba
120 m2
Eladó családi ház
Eladó családi ház

Nyíregyháza

250 M Ft
3 szoba
440 m2
Eladó családi ház
Eladó családi ház

Nyíregyháza

250 M Ft
4 szoba
440 m2
Eladó családi ház
Eladó családi ház

Nyíregyháza

159 M Ft
2 szoba
130 m2
Eladó családi ház
Eladó családi ház

Napkor

115 M Ft
5 szoba
292 m2
Eladó családi ház
Eladó családi ház

Nyíregyháza

90 M Ft
3 szoba
170 m2
Eladó családi ház
Eladó családi ház

Nyíregyháza

75.9 M Ft
6 szoba
240 m2
Eladó családi ház
Eladó családi ház

Nyíregyháza

140 M Ft
3 szoba
168 m2
Eladó családi ház
Eladó családi ház

Nyíregyháza

89.9 M Ft
5 szoba
274 m2
Eladó családi ház
Eladó családi ház

Nyíregyháza

62 M Ft
4 szoba
140 m2
Eladó családi ház
Eladó családi ház

Nyíregyháza

62 M Ft
4 szoba
140 m2
Eladó családi ház
Eladó családi ház

Nyíregyháza

98 M Ft
4 szoba
125 m2
Eladó családi ház
Eladó családi ház

Nyíregyháza

140 M Ft
3 szoba
168 m2
Eladó családi ház
Eladó családi ház

Nyíregyháza

98 M Ft
4 szoba
125 m2
Eladó családi ház
Eladó családi ház

Napkor

115 M Ft
5 szoba
292 m2

Falusi CSOK ingatlanok

Eladó családi ház
Eladó családi ház

Törtel

34.9 M Ft
3 szoba
66 m2
Eladó családi ház
Eladó családi ház

Bugac

17 M Ft
3 szoba
80 m2
Eladó családi ház
Eladó családi ház

Szigetcsép, Szabadság utca

62 M Ft
4 szoba
120 m2
Eladó családi ház
Eladó családi ház

Bogács

36.8 M Ft
2 szoba
64 m2
Eladó családi ház
Eladó családi ház

Maráza

29.9 M Ft
3 szoba
96 m2
Eladó családi ház
Eladó családi ház

Balatonkeresztúr, Dózsa György u. 29

145 M Ft
5 szoba
150 m2
Eladó családi ház
Eladó családi ház

Sumony

19 M Ft
4 szoba
120 m2
Eladó családi ház
Eladó családi ház

Fülöpszállás

299 M Ft
14 + 5 szoba
680 m2