Astora Olive Club House

Eladó családi ház
Nyíregyháza

+ 15 kép 1/18
45 000 000 Ft45 M Ft 642 857 Ft/m2
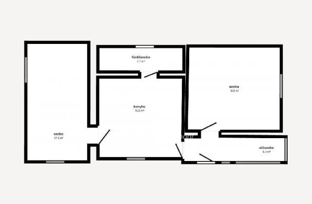
2 szoba
70 m2
építés éve:1970

Részletes adatok

Állapot: Felújított
Telekméret: 766 m2
Fűtés: Elektromos
Energetikai besorolás: Nem adta meg a hirdető

Az OTP Bank lakáshitel ajánlataFizetett hirdetés

+36 70 583
Szanyi Alexandra
OTPIP Nyíregyháza Hunyadi u.

Érdekel az OTP Bank kedvezményes lakáshitel ajánlata? *

* A kérdésre „Igen” válasz bejelölése esetén, az „Üzenet küldése” gombra kattintva kijelentem, hogy az OTP Bank Nyrt. Adatkezelési tájékoztatójának tartalmát megismertem és tudomásul vettem.

Eladó családi ház leírása

Nyírszőlős egyik legkedveltebb utcájában eladó egy teljes körűen felújított, 70 négyzetméteres, 2 szobás családi ház 766 négyzetméteres telken, berendezéssel együtt.
A házat a tulajdonos saját részére újította fel, magas minőségben, ennek során megtörtént a teljes tetőcsere és a villanyvezetékek cseréje is, azonban élethelyzetének változása miatt eladásra kínálja az ingatlant. A fűtést 2 darab hűtő fűtő klíma biztosítja, de az utcában található a gázvezeték, így igény esetén a gázfűtés könnyedén beköthető. Az udvaron a ház mellett jelenleg folyamatban van egy filagória építése, amely a vételár részét képezi.
Az ingatlan azonnal költözhető, tehermentes, rendezett tulajdoni viszonyokkal rendelkezik. Megtekintés előzetes egyeztetéssel lehetséges.
OTP Banki hátterünknek köszönhetően finanszírozási igényekben (pl. Otthon Start Hitelprogram, Babaváró, Falusi CSOK, CSOK Plusz, Lakáshitel, Személyi kölcsön stb.), illetve biztosítások tekintetében is díjmentesen, soron kívüli ügyintézéssel segítem ügyfeleim! Referenciaszám: M316529
Virtuális séta: ,.75&mls=1

Hirdetés feltöltve: 2025. 11. 18. Utoljára módosítva: 2025. 12. 06.

2 szobás családi házak ára Nyíregyházán

Ebből az összehasonlításból megtudhatod, hogyan viszonyul a lakás ára a környékbeli családi házak átlagos árához. Ez nem azt jelenti, hogy ennyivel olcsóbb vagy drágább, mint amennyit a lakás ér, hanem hogy ennyivel tér el a környékbeli átlagtól.

Ennek a m² ára
Nyíregyháza m² ár
643 e Ft
3 e Ft -20,637%
Ennek az ára
Nyíregyháza átlagár
45 M Ft m Ft
0.4 m Ft -9,926%

Az ingatlan elhelyezkedése

Cím: Nyíregyháza

Eladó családi házak a környékről

Eladó családi ház
Eladó családi ház

Nyíregyháza

90 M Ft
3 szoba
170 m2
Eladó családi ház
Eladó családi ház

Nyíregyháza

60 M Ft
3 szoba
100 m2
Eladó családi ház
Eladó családi ház

Nyíregyháza

98 M Ft
4 szoba
125 m2
Eladó családi ház
Eladó családi ház

Nyíregyháza, Oros, Oros

55 M Ft
4 szoba
100 m2
Eladó családi ház
Eladó családi ház

Nyíregyháza

190 M Ft
4 szoba
230 m2
Eladó családi ház
Eladó családi ház

Nyíregyháza

75.9 M Ft
6 szoba
240 m2
Eladó családi ház
Eladó családi ház

Nyíregyháza

90 M Ft
3 szoba
170 m2
Eladó családi ház
Eladó családi ház

Nyíregyháza

190 M Ft
4 szoba
230 m2
Eladó családi ház
Eladó családi ház

Nyíregyháza, Oros, Oros

55 M Ft
4 szoba
100 m2
Eladó családi ház
Eladó családi ház

Nyíregyháza

68 M Ft
4 szoba
220 m2
Eladó családi ház
Eladó családi ház

Nyíregyháza

68 M Ft
4 szoba
220 m2
Eladó családi ház
Eladó családi ház

Nyíregyháza

92.8 M Ft
5 szoba
240 m2
Eladó családi ház
Eladó családi ház

Nyíregyháza

62 M Ft
4 szoba
140 m2
Eladó családi ház
Eladó családi ház

Nyíregyháza

150 M Ft
5 szoba
180 m2
Eladó családi ház
Eladó családi ház

Nyíregyháza

44.9 M Ft
1 szoba
51 m2
Eladó családi ház
Eladó családi ház

Nyírtelek

68.9 M Ft
12 szoba
440 m2
Eladó családi ház
Eladó családi ház

Nyíregyháza

89.9 M Ft
5 szoba
274 m2
Eladó családi ház
Eladó családi ház

Nyíregyháza

240 M Ft
3 szoba
204 m2
Eladó családi ház
Eladó családi ház

Napkor

115 M Ft
5 szoba
292 m2
Eladó családi ház
Eladó családi ház

Nyíregyháza

87 M Ft
5 szoba
210 m2
Eladó családi ház
Eladó családi ház

Nyíregyháza

92 M Ft
3 szoba
161 m2
Eladó családi ház
Eladó családi ház

Nyíregyháza

199.9 M Ft
6 szoba
500 m2
Eladó családi ház
Eladó családi ház

Napkor

49.8 M Ft
4 szoba
253 m2
Eladó családi ház
Eladó családi ház

Nyíregyháza

44.9 M Ft
1 szoba
51 m2

Falusi CSOK ingatlanok

Eladó családi ház
Eladó családi ház

Elek

85.9 M Ft
5 szoba
274 m2
Eladó családi ház
Eladó családi ház

Hosszúpereszteg

35 M Ft
4 szoba
145 m2
Eladó családi ház
Eladó családi ház

Ősi

55 M Ft
3 szoba
74 m2
Eladó családi ház
Eladó családi ház

Tapsony

10 M Ft
2 szoba
57 m2
Eladó családi ház
Eladó családi ház

Szigetújfalu

120 M Ft
291 m2
Eladó családi ház
Eladó családi ház

Pétfürdő

74.9 M Ft
3 szoba
89 m2
Eladó családi ház
Eladó családi ház

Kamut

29 M Ft
3 szoba
100 m2
Eladó családi ház
Eladó családi ház

Abaújszántó

19.99 M Ft
3 szoba
84 m2