Stay Family Park

Eladó családi ház
Nyíregyháza

+ 17 kép 1/20
89 000 000 Ft89 M Ft 445 000 Ft/m2
6 szoba
200 m2
építés éve:1980

Részletes adatok

Telekméret: 1575 m2
Fűtés: Gázkazán
Energetikai besorolás: Nem adta meg a hirdető

Az OTP Bank lakáshitel ajánlataFizetett hirdetés

+36 70 583
Szanyi Alexandra
OTPIP Nyíregyháza Hunyadi u.

Érdekel az OTP Bank kedvezményes lakáshitel ajánlata? *

* A kérdésre „Igen” válasz bejelölése esetén, az „Üzenet küldése” gombra kattintva kijelentem, hogy az OTP Bank Nyrt. Adatkezelési tájékoztatójának tartalmát megismertem és tudomásul vettem.

Eladó családi ház leírása

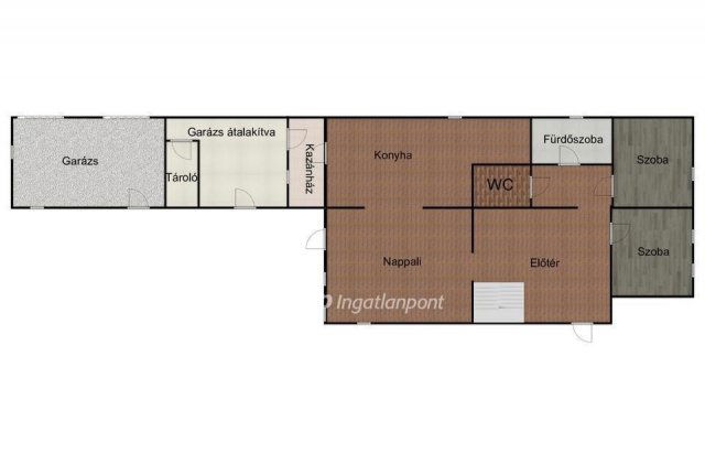
Tágas családi ház Nyíregyháza közelében 6 szoba, 2 szint, hatalmas kert és közösségi tér!

Eladó Butykatelepen, Nyíregyházától néhány percre egy kiváló állapotú, 2 szintes, 200 m2-es családi ház, 1575 m2-es telken. Ez a lehetőség ideális nagyobb családoknak, két generációnak vagy akár otthoni vállalkozásra is!

Főbb jellemzők:

6 kényelmes, világos szoba

2 fürdőszoba + külön WC tökéletes nagycsaládos élethez

2 szintes kialakítás + padlástér

Tágas, gondozott kert, amely kiválóan alkalmas pihenésre, kertészkedésre vagy gyerekek számára

Egyik garázs közösségi térként van kialakítva ideális hobbiszobának, edzőteremnek, irodának vagy baráti összejövetelekhez

Kisebb terasz a kertkapcsolathoz és nyugodt kikapcsolódáshoz

Miért különleges ez az ingatlan?

A ház belső terei jól átgondoltak, a szobák tágasak és világosak. A padlástér további bővítési lehetőséget kínál. A nagy kert ideális akár játszótérnek, akár veteményesnek, de díszkertnek is.

Lokáció:

Butykatelep csendes, zöldövezeti része, autóval gyorsan elérhető Nyíregyháza belvárosa. A környék nyugodt, családbarát, de mégis közel van minden fontos szolgáltatás.

További kérdéseivel vagy megtekintéssel kapcsolatban keressen bizalommal, akár hétvégén is! Kedvezményes kamatozású lakásvásárlási és felújítási hitelek, valamint CSOK és Babaváró ügyintézés az OTP hátterével irodánkban.

Hirdetés feltöltve: 2025. 10. 11. Utoljára módosítva: 2025. 11. 02.

Az ingatlan elhelyezkedése

Cím: Nyíregyháza

Eladó családi házak a környékről

Eladó családi ház
Eladó családi ház

Nyíregyháza

240 M Ft
3 szoba
204 m2
Eladó családi ház
Eladó családi ház

Nyíregyháza

87 M Ft
5 szoba
210 m2
Eladó családi ház
Eladó családi ház

Nyíregyháza

85 M Ft
3 szoba
110 m2
Eladó családi ház
Eladó családi ház

Nyíregyháza

92.8 M Ft
5 szoba
240 m2
Eladó családi ház
Eladó családi ház

Nyíregyháza

46 M Ft
3 + 1 szoba
140 m2
Eladó családi ház
Eladó családi ház

Nyíregyháza

23 M Ft
2 szoba
51 m2
Eladó családi ház
Eladó családi ház

Nyíregyháza

98 M Ft
4 szoba
125 m2
Eladó családi ház
Eladó családi ház

Nyíregyháza

62 M Ft
4 szoba
140 m2
Eladó családi ház
Eladó családi ház

Nyíregyháza

92.8 M Ft
5 szoba
240 m2
Eladó családi ház
Eladó családi ház

Nyíregyháza

60 M Ft
3 szoba
100 m2
Eladó családi ház
Eladó családi ház

Nyíregyháza

23 M Ft
2 szoba
51 m2
Eladó családi ház
Eladó családi ház

Nyíregyháza

240 M Ft
3 szoba
204 m2
Eladó családi ház
Eladó családi ház

Nyíregyháza

250 M Ft
4 szoba
440 m2
Eladó családi ház
Eladó családi ház

Nyíregyháza

75.9 M Ft
6 szoba
240 m2
Eladó családi ház
Eladó családi ház

Nyíregyháza

68 M Ft
4 szoba
220 m2
Eladó családi ház
Eladó családi ház

Nyíregyháza, Oros, Oros

55 M Ft
4 szoba
100 m2
Eladó családi ház
Eladó családi ház

Nyíregyháza

85 M Ft
3 szoba
170 m2
Eladó családi ház
Eladó családi ház

Nyíregyháza

85 M Ft
3 szoba
170 m2
Eladó családi ház
Eladó családi ház

Nyíregyháza

60 M Ft
3 szoba
100 m2
Eladó családi ház
Eladó családi ház

Nyíregyháza

44.9 M Ft
1 szoba
51 m2
Eladó családi ház
Eladó családi ház

Nyíregyháza

41.99 M Ft
2 szoba
60 m2
Eladó családi ház
Eladó családi ház

Nyíregyháza

46 M Ft
3 + 1 szoba
140 m2
Eladó családi ház
Eladó családi ház

Nyíregyháza

79 M Ft
5 szoba
126 m2
Eladó családi ház
Eladó családi ház

Nyírtelek

10.9 M Ft
2 szoba
55 m2

Falusi CSOK ingatlanok

Eladó családi ház
Eladó családi ház

Muhi, Kossuth Lajos utca 5

6 M Ft
3 szoba
60 m2
Eladó családi ház
Eladó családi ház

Zalatárnok

30.9 M Ft
4 szoba
67 m2
Eladó családi ház
Eladó családi ház

Akasztó

13.9 M Ft
3 szoba
103 m2
Eladó családi ház
Eladó családi ház

Tiszaalpár

29 M Ft
4 szoba
132 m2
Eladó családi ház
Eladó családi ház

Jakabszállás

68.4 M Ft
5 szoba
92 m2
Eladó családi ház
Eladó családi ház

Csengőd, Tompa Mihály utca

34 M Ft
2 szoba
81 m2
Eladó családi ház
Eladó családi ház

Varbóc

7.9 M Ft
2 szoba
86 m2
Eladó ikerház
Eladó ikerház

Seregélyes

39.9 M Ft
4 szoba
150 m2