NapForrás 20 - Buda

Eladó családi ház
Nógrádkövesd, földszint

Figyelem!

Ez az ingatlan a 2019.07.01-től induló falusi CSOK által támogatott településen található

+ 16 kép 1/19
24 990 000 Ft24.99 M Ft 265 851 Ft/m2
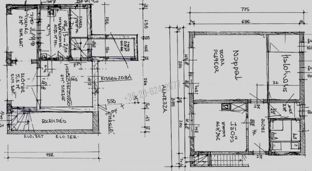
3 szoba
94 m²
földszint
építés éve:1986

Részletes adatok

Telekméret: 1601 m2
Fűtés: Gázkazán
Emelet: földszint
Parkolás: Kocsibeálló
Közmű: Víz, Gáz, Villany, Csatorna
Energetikai besorolás: Nem adta meg a hirdető

Az OTP Bank lakáshitel ajánlataFizetett hirdetés

+36 20 624
Takács Marianna
Megtalál-Lak Ingatlaniroda

Érdekel az OTP Bank kedvezményes lakáshitel ajánlata? *

* A kérdésre „Igen” válasz bejelölése esetén, az „Üzenet küldése” gombra kattintva kijelentem, hogy az OTP Bank Nyrt. Adatkezelési tájékoztatójának tartalmát megismertem és tudomásul vettem.

Eladó családi ház leírása

Eladó családi ház Nógrádkövesden – tágas telekkel, beépíthető tetőtérrel és számtalan lehetőséggel!

Nógrád megye csendes, dombokkal övezett településén, Nógrádkövesd községben kínálok megvételre egy 1601 m²-es telken elhelyezkedő, 94 m² alapterületű, önálló családi házat, amely praktikus elrendezésével és bővítési lehetőségeivel ideális választás lehet mindazok számára, akik nyugodt vidéki környezetben képzelik el otthonukat.

Az ingatlan 1986-ban épült stabil tégla és beton szerkezettel, fa födémmel és pala fedésű tetővel. Az épület két szinten helyezkedik el: az alsó szint 30 m², míg a felső lakótér 64 m², amely kényelmes, jól alakítható életteret biztosít, a tetőtér pedig további beépíthetőségnek ad választási lehetőséget.

A belső terek burkolatai változatosak és gyakorlatiasak: járólap, beton, laminált padló és parketta található a helyiségekben, amelyek így különböző funkciókhoz illeszkedő hangulatot teremtenek. Az ablakokat műanyag redőnyök árnyékolják, amelyek a komfortérzetet és a praktikumot egyaránt növelik. A házhoz egy 15 m²-es terasz is tartozik, amely kellemes helyszíne lehet a reggeli kávéknak vagy a nyugodt esti pihenésnek.

A fűtésről gázcirkó, valamint vegyes tüzelésű kazán gondoskodik, így többféle fűtési megoldás is rendelkezésre áll. A melegvíz ellátását villany és gáz biztosítja. Az ingatlan összközművesített, továbbá éjszakai és nappali árammal, valamint ipari árammal is ellátott, így a mindennapi élethez szükséges infrastruktúra teljes körűen adott.

A telken található egy 20 m²-es melléképület, amely jelenleg műhelyként funkcionál, de igény szerint tárolásra vagy egyéb tevékenységekre is kiválóan használható. A tágas kert számtalan módot kínál: kialakítható benne pihenőkert, veteményes vagy akár kisebb gazdálkodásra alkalmas terület is. A kert vízellátását egy ásott gyűrűs kút is segíti.

A település elhelyezkedése kedvező: Balassagyarmat és Aszód között található, közúton elsősorban a 21-es úton közelíthető meg. A községben a Balassagyarmat–Aszód vasútvonal egyik állomása is működik, amely személy- és teherforgalmat egyaránt bonyolít.

A természet kedvelőinek külön öröm, hogy a település határától mindössze két kilométerre halad a híres Országos Kéktúra útvonala, a környező dombos, részben erdős táj pedig számos kirándulási és túrázási opciót kínál. A község kulturális értékei közé tartozik a római katolikus templom, valamint a történelmi hangulatot idéző Barcza-kúria is.

Ez az ingatlan kiváló választás mindazok számára, akik egy stabil szerkezetű, bővíthető családi házat keresnek, amelyet saját elképzeléseik szerint formálhatnak tovább – mindezt egy nyugodt, természetközeli környezetben.
Egy hely, ahol a nyugalom és a lehetőségek találkoznak – alakítsa saját otthonává Nógrádkövesden.

Irányár: 24,99 M Ft

Az alábbi szolgáltatásokkal állok rendelkezésére ingatlanvásárlásban, eladásban:
- Ingatlanközvetítés
- Értékmeghatározás, értékbecslés
- Hirdetés profi alaprajzzal
- Szerződéskötés megszervezése
- Földhivatali ügyintézés
- Jogi háttér biztosítása és tanácsadás
- Energetikai ügyintézés

Hitelügyintézés: független hiteltanácsadó díjmentesen segít kiválasztani a legmegfelelőbb hitelkonstrukciót.

Ingatlan megtekintése során, e-mail cím megadásával, országos rendszerből ingyenes ajánlatküldés!

Elérhetőségeim:
06-20-624-2677
megtalallakingatlan@gmail.hu
www.megtalallakingatlaniroda.hu

Az ingatlan előre egyeztetett időpontban megtekinthető, amennyiben felkeltette az érdeklődését, várom megtisztelő hívását!

Hirdetés feltöltve: 2026. 03. 13. Utoljára módosítva: 2026. 03. 16.

Az ingatlan elhelyezkedése

Cím: Nógrádkövesd, földszint

Kiadó ingatlanok, albérletek a környékről

Veszprém
Kiadó üzlethelyiség

Veszprém

156 E Ft / hó
1 szoba
40 m²
Veszprém, Jutasi úti lakótelep, Március 15
Kiadó panellakás, albérlet

Veszprém

220 E Ft / hó
1 + 1 szoba
42 m²
Balatonvilágos, Május 1 utca
Kiadó családi ház, albérlet

Balatonvilágos

190 E Ft / hó
3 szoba
90 m²
Veszprém
Kiadó családi ház, albérlet

Veszprém

220 E Ft / hó
2 szoba
76 m²
Balatonfüred
Kiadó családi ház, albérlet

Balatonfüred

750 E Ft / hó
2 + 1 szoba
105 m²
Balatonalmádi
Kiadó téglalakás, albérlet

Balatonalmádi

350 E Ft / hó
3 szoba
113 m²
Pápa
Kiadó panellakás, albérlet

Pápa

120 E Ft / hó
1 + 2 szoba
68 m²
Veszprém
Kiadó családi ház, albérlet

Veszprém

290 E Ft / hó
3 szoba
60 m²
Veszprém
Kiadó téglalakás, albérlet

Veszprém

230 E Ft / hó
3 szoba
62 m²
Veszprém
Kiadó családi ház, albérlet

Veszprém

290 E Ft / hó
3 szoba
60 m²
Ajka, Sugár
Kiadó téglalakás, albérlet

Ajka

100 E Ft / hó
1 szoba
70 m²
Veszprém
Kiadó téglalakás, albérlet

Veszprém

200 E Ft / hó
2 + 1 szoba
54 m²
Veszprém
Kiadó téglalakás, albérlet

Veszprém

295 E Ft / hó
2 szoba
42 m²
Balatonkenese
Kiadó téglalakás, albérlet

Balatonkenese

350 E Ft / hó
3 szoba
71 m²
Veszprém
Kiadó téglalakás, albérlet

Veszprém

250 E Ft / hó
2 szoba
54 m²
Tihany
Kiadó családi ház, albérlet

Tihany

450 E Ft / hó
5 szoba
130 m²
Veszprém
Kiadó családi ház, albérlet

Veszprém

400 E Ft / hó
5 szoba
250 m²
Balatonvilágos
Kiadó nyaraló

Balatonvilágos

450 E Ft / hó
1 + 2 szoba
40 m²
Veszprém
Kiadó családi ház, albérlet

Veszprém

120 E Ft / hó
1 szoba
25 m²
Veszprém
Kiadó téglalakás, albérlet

Veszprém

250 E Ft / hó
1 + 3 szoba
78 m²
Balatonfüred
Kiadó családi ház, albérlet

Balatonfüred

750 E Ft / hó
2 + 1 szoba
105 m²
Veszprém
Kiadó ipari ingatlan

Veszprém

80 E Ft / hó
50 m²
Veszprém
Kiadó téglalakás, albérlet

Veszprém

350 E Ft / hó
5 szoba
160 m²
Veszprém
Kiadó téglalakás, albérlet

Veszprém

170 E Ft / hó
2 szoba
46 m²

Falusi CSOK ingatlanok

Szob
Eladó sorház

Szob

16 M Ft
2 szoba
45 m²
Halimba
Eladó családi ház

Halimba

59.9 M Ft
6 szoba
182 m²
Nyáregyháza
Eladó családi ház

Nyáregyháza

114.99 M Ft
7 szoba
267 m²
Szigetcsép
Eladó családi ház

Szigetcsép

110 M Ft
3 szoba
137 m²
Tóalmás
Eladó családi ház

Tóalmás

31.5 M Ft
2 szoba
43 m²
Pálfa
Eladó családi ház

Pálfa

22 M Ft
3 szoba
98 m²
Csurgó
Eladó téglalakás

Csurgó

12.5 M Ft
2 szoba
54 m²
Balatonakali
Eladó ikerház

Balatonakali

560 M Ft
4 szoba
140 m²

Falusi CSOK ingatlanok

Berzence, Mátyás utca
Eladó családi ház

Berzence

26.8 M Ft
3 szoba
94 m²
Sávoly, Rákóczi Ferenc utca 76
Eladó családi ház

Sávoly

12.94 M Ft
2 + 1 szoba
88 m²
Gyöngyössolymos
Eladó családi ház

Gyöngyössolymos

57.99 M Ft
4 szoba
160 m²
Cserépfalu
Eladó családi ház

Cserépfalu

58 M Ft
6 szoba
184 m²
Kenyeri
Eladó családi ház

Kenyeri

39.9 M Ft
3 szoba
94 m²
Halimba
Eladó családi ház

Halimba

59.9 M Ft
6 szoba
182 m²
Verseg
Eladó családi ház

Verseg

38 M Ft
3 szoba
83 m²
Nagyréde
Eladó családi ház

Nagyréde

69.5 M Ft
4 szoba
110 m²