Eladó családi ház
Nagyréde 
Figyelem!
Ez az ingatlan a 2019.07.01-től induló falusi CSOK által támogatott településen található
Részletes adatok
Az OTP Bank lakáshitel ajánlataFizetett hirdetés
Induló törlesztőrészlet
101 262 Ft /hóTörlesztőrészlet a 13. hónaptól
129 106 Ft /hóInduló törlesztőrészlet
135 016 Ft /hóTörlesztőrészlet a 13. hónaptól
172 142 Ft /hóA tájékoztatás nem teljes körű és nem minősül ajánlattételnek. Az OTP Évnyerő Lakáshitelei 1 éves türelmi idős kölcsönök, amellyel az első 12 hónapban alacsonyabb a havi törlesztőrészlet. A tőke törlesztését a 13. hónaptól kell megkezdeni.
Eladó családi ház leírása
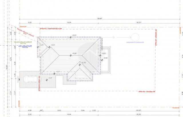
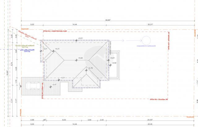
Gyöngyöshalászon, a fejlődő Haladás utcában eladásra kínálok egy nettó 93 m²-es, modern családi házat, amely 3 szobával és egy tágas nappalival biztosít kényelmes életteret. 3 db önálló családiház épül egymás mellett külön telkeken, 2 db 93m2 ( 59.9m Ft) és 1db 120m2 ( 69.9m Ft )
Minőségi építési megoldások, energiatakarékos kialakítás
 Falazat: Porotherm P30N+F tégla, betonkoszorúval és fa födémszerkezettel
 Szigetelés:
 Lábazat: 10 cm lépésálló polisztirol
 Homlokzat: 10 cm grafitos hőszigetelés
 Födém: 25 cm ásványgyapot
 Nyílászárók: 3 rétegű üvegezésű, 6 légkamrás műanyag ablakok
 Fűtés: Levegő-víz hőszivattyús rendszer – alacsony fenntartási költségek, fenntartható megoldás
Személyre szabható belső tér
A belső kialakítás igény szerint választható burkolatokkal és szaniterekkel készül:
 Hidegburkolat: 4.000 Ft/m²
 Melegburkolat: 4.000 Ft/m²
 Beltéri ajtók: 30.000 Ft/db
 Fürdőkád: 40.000 Ft
 Csaptelepek: 15.000 Ft/db
Magasabb árkategóriájú termékek választására is van lehetőség!
Tökéletes választás minden korosztály számára
 Modern kialakítás és energiatakarékos technológiák
 Családosok, fiatalok és idősebbek számára egyaránt ideális otthon
 A zárt lakópark exkluzív környezetet biztosít
 Kiváló közlekedési lehetőségek
 Az építtető korábbi projektjei megtekinthetők referenciaként!
 Ne maradjon le erről a különleges lehetőségről!
Érdeklődjön most, és találja meg álmai otthonát!
Hirdetés feltöltve: 2025. 10. 31. Utoljára módosítva: 2025. 10. 31.
Az ingatlan elhelyezkedése
Cím: Nagyréde
 
 
 
 
 
 
 
 
 
 
 
 
 
 
 
 
 
 
 
 
 
 
 
 
 
 
 
 
 
 
 
 
 
 
 
 
 
 
 
 
 
 
