Astora Art House

Eladó családi ház
Nagykőrös

+ 14 kép 1/17
33 000 000 Ft33 M Ft 330 000 Ft/m2
3 + 1 szoba
100 m²
építés éve:1970

Részletes adatok

Telekméret: 459 m2
Fűtés: Gázkonvektor
Energetikai besorolás: Nem adta meg a hirdető

Az OTP Bank lakáshitel ajánlataFizetett hirdetés

+36 20 348
Botka József
referens

Érdekel az OTP Bank kedvezményes lakáshitel ajánlata? *

* A kérdésre „Igen” válasz bejelölése esetén, az „Üzenet küldése” gombra kattintva kijelentem, hogy az OTP Bank Nyrt. Adatkezelési tájékoztatójának tartalmát megismertem és tudomásul vettem.

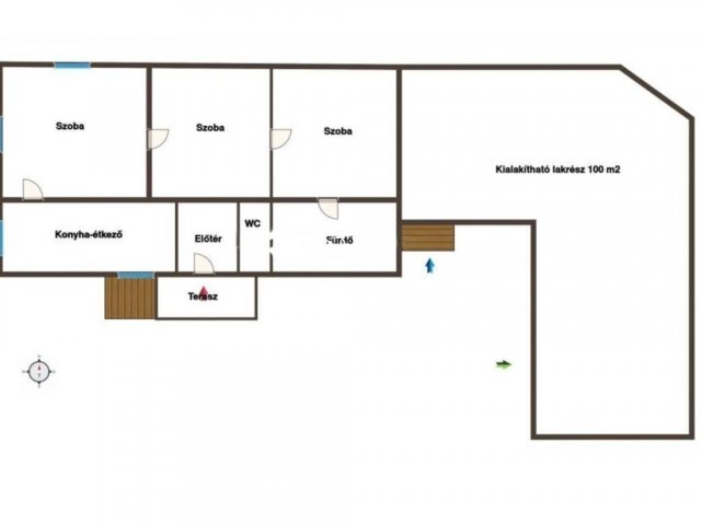
Eladó családi ház leírása

Polgári stílusú családi ház eladó - Budapesttől kb. 1 órára, Pest vármegyében!

Budapesttől mintegy 80 km-re, jó elhelyezkedéssel kínálok megvételre egy összesen kb. 180 nm-es, polgári stílusú családi házat, amely egy 459 nm-es saroktelken helyezkedik el, és két utcáról is megközelíthető.
Az ingatlan a piac közelében található, így frekventált elhelyezkedése miatt akár vállalkozás számára is kiváló lehetőség.
Az épület masszív tégla falazatú és száraz szerkezetű, a tető a közelmúltban teljes cserén esett át, cserépfedéssel.
A ház egyik felében jelenleg egy kb. 100 nm-es, 3 szobás lakrész található, amelyhez pince is tartozik, míg az épület másik része felújításra vár, így az új tulajdonos saját elképzelései szerint alakíthatja ki.
Az ingatlan adottságai lehetővé teszik akár két külön lakrész kialakítását is.
A kedvező négyzetméter ár, a központ közeli elhelyezkedés, valamint a jó megközelíthetőség miatt az ingatlan befektetésnek, többgenerációs otthonnak vagy vállalkozás számára is remek választás lehet.
Az ingatlan készpénzes vevőt vár.

További információért vagy megtekintés egyeztetéséhez keress bizalommal!

Hirdetés feltöltve: 2026. 04. 09. Utoljára módosítva: 2026. 04. 26.

4 szobás családi házak ára Nagykőrösön

Ebből az összehasonlításból megtudhatod, hogyan viszonyul a lakás ára a környékbeli családi házak átlagos árához. Ez nem azt jelenti, hogy ennyivel olcsóbb vagy drágább, mint amennyit a lakás ér, hanem hogy ennyivel tér el a környékbeli átlagtól.

Ennek a m² ára
Nagykőrös m² ár
330 e Ft
403 e Ft 18%
Ennek az ára
Nagykőrös átlagár
33 M Ft m Ft
42.8 m Ft 23%

Az ingatlan elhelyezkedése

Cím: Nagykőrös

Eladó családi házak a környékről

Nagykőrös
Eladó családi ház

Nagykőrös

18.5 M Ft
3 szoba
35 m²
Dunakeszi
Eladó családi ház

Dunakeszi

250 M Ft
4 szoba
180 m²
Tápiószele
Eladó családi ház

Tápiószele

37.9 M Ft
4 szoba
141 m²
Tápiószentmárton
Eladó családi ház

Tápiószentmárton

48 M Ft
5 szoba
180 m²
Tápiószőlős
Eladó családi ház

Tápiószőlős

34.9 M Ft
5 szoba
210 m²
Nagykőrös
Eladó családi ház

Nagykőrös

38.8 M Ft
3 szoba
180 m²
Tápiógyörgye
Eladó családi ház

Tápiógyörgye

19.9 M Ft
3 szoba
65 m²
Remeteszőlős
Eladó családi ház

Remeteszőlős

399.9 M Ft
5 + 2 szoba
260 m²
Zebegény
Eladó családi ház

Zebegény

69.9 M Ft
6 szoba
245 m²
Nagykőrös
Eladó családi ház

Nagykőrös

349.99 M Ft
5 szoba
170 m²
Pécel, Reményik Sándor utca
Eladó családi ház

Pécel

296 M Ft
6 szoba
396 m²
Érd, Érdliget - Kutyavár, Érd-liget
Eladó családi ház

Érd

230 M Ft
7 szoba
280 m²
Tápiószele
Eladó családi ház

Tápiószele

18.9 M Ft
4 szoba
68 m²
Nagykőrös
Eladó családi ház

Nagykőrös

35.99 M Ft
7 szoba
196 m²
Tápiószentmárton
Eladó családi ház

Tápiószentmárton

16.5 M Ft
3 szoba
50 m²
Tápiószele
Eladó családi ház

Tápiószele

32.9 M Ft
4 szoba
200 m²
Nagykőrös
Eladó családi ház

Nagykőrös

60 M Ft
5 szoba
240 m²
Nagykőrös
Eladó családi ház

Nagykőrös

54.9 M Ft
3 szoba
95 m²
Nagykőrös
Eladó családi ház

Nagykőrös

25.5 M Ft
3 szoba
100 m²
Nagykőrös
Eladó családi ház

Nagykőrös

99 M Ft
5 szoba
200 m²
Nagykőrös
Eladó családi ház

Nagykőrös

99 M Ft
5 szoba
200 m²
Nagykőrös, Temetőhegy dűlő
Eladó családi ház

Nagykőrös

7.4 M Ft
4 szoba
55 m²
Tápiószele
Eladó családi ház

Tápiószele

11.9 M Ft
3 szoba
62 m²
Tápiószentmárton
Eladó családi ház

Tápiószentmárton

7.9 M Ft
2 + 1 szoba
86 m²

Falusi CSOK ingatlanok

Tápiószőlős
Eladó családi ház

Tápiószőlős

29.8 M Ft
3 szoba
75 m²
Devecser
Eladó családi ház

Devecser

39.9 M Ft
3 szoba
75 m²
Kislippó
Eladó családi ház

Kislippó

17.99 M Ft
3 szoba
100 m²
Tök
Eladó családi ház

Tök

20 M Ft
2 szoba
47 m²
Mád
Eladó családi ház

Mád

48 M Ft
3 szoba
181 m²
Balatonakali
Eladó ikerház

Balatonakali

560 M Ft
4 szoba
140 m²
Békésszentandrás
Eladó családi ház

Békésszentandrás

550 M Ft
3 szoba
418 m²
Hegyeshalom, Margaréta utca 12
Eladó téglalakás

Hegyeshalom

46.91 M Ft
2 szoba
43 m²