NapForrás 20 - Buda

Eladó családi ház
Nagykőrös

+ 14 kép 1/17
33 000 000 Ft33 M Ft 330 000 Ft/m2
3 + 1 szoba
100 m²
építés éve:1970

Részletes adatok

Telekméret: 459 m2
Fűtés: Gázkonvektor
Energetikai besorolás: Nem adta meg a hirdető

Az OTP Bank lakáshitel ajánlataFizetett hirdetés

+36 70 459
Varga Zoltán
referens

Érdekel az OTP Bank kedvezményes lakáshitel ajánlata? *

* A kérdésre „Igen” válasz bejelölése esetén, az „Üzenet küldése” gombra kattintva kijelentem, hogy az OTP Bank Nyrt. Adatkezelési tájékoztatójának tartalmát megismertem és tudomásul vettem.

Eladó családi ház leírása

Polgári stílusú családi ház eladó - Budapesttől kb. 1 órára, Pest vármegyében!

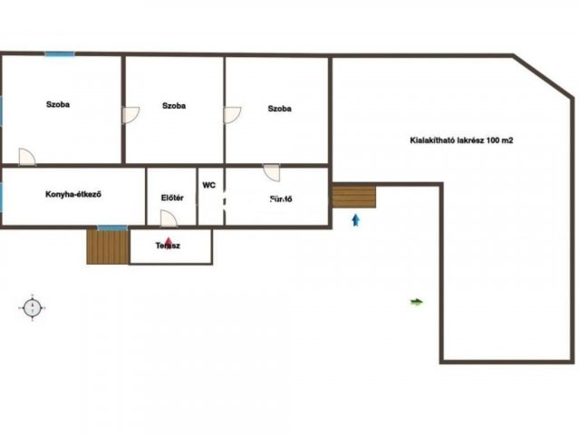
Budapesttől mintegy 80 km-re, jó elhelyezkedéssel kínálok megvételre egy összesen kb. 180 nm-es, polgári stílusú családi házat, amely egy 459 nm-es saroktelken helyezkedik el, és két utcáról is megközelíthető.
Az ingatlan a piac közelében található, így frekventált elhelyezkedése miatt akár vállalkozás számára is kiváló lehetőség.
Az épület masszív tégla falazatú és száraz szerkezetű, a tető a közelmúltban teljes cserén esett át, cserépfedéssel.
A ház egyik felében jelenleg egy kb. 100 nm-es, 3 szobás lakrész található, amelyhez pince is tartozik, míg az épület másik része felújításra vár, így az új tulajdonos saját elképzelései szerint alakíthatja ki.
Az ingatlan adottságai lehetővé teszik akár két külön lakrész kialakítását is.
A kedvező négyzetméter ár, a központ közeli elhelyezkedés, valamint a jó megközelíthetőség miatt az ingatlan befektetésnek, többgenerációs otthonnak vagy vállalkozás számára is remek választás lehet.
Az ingatlan készpénzes vevőt vár.

További információért vagy megtekintés egyeztetéséhez keress bizalommal!

Hirdetés feltöltve: 2026. 04. 01. Utoljára módosítva: 2026. 04. 02.

4 szobás családi házak ára Nagykőrösön

Ebből az összehasonlításból megtudhatod, hogyan viszonyul a lakás ára a környékbeli családi házak átlagos árához. Ez nem azt jelenti, hogy ennyivel olcsóbb vagy drágább, mint amennyit a lakás ér, hanem hogy ennyivel tér el a környékbeli átlagtól.

Ennek a m² ára
Nagykőrös m² ár
330 e Ft
417 e Ft 21%
Ennek az ára
Nagykőrös átlagár
33 M Ft m Ft
45.6 m Ft 28%

Az ingatlan elhelyezkedése

Cím: Nagykőrös

Eladó családi házak a környékről

Tápiószőlős
Eladó családi ház

Tápiószőlős

34.9 M Ft
5 szoba
210 m²
Tápiószele
Eladó családi ház

Tápiószele

11.9 M Ft
3 szoba
62 m²
Nagykőrös
Eladó családi ház

Nagykőrös

54.9 M Ft
3 szoba
95 m²
Budakeszi
Eladó családi ház

Budakeszi

130 M Ft
5 szoba
30 m²
Nagykőrös
Eladó családi ház

Nagykőrös

99 M Ft
5 szoba
200 m²
Nagykőrös
Eladó családi ház

Nagykőrös

149 M Ft
20 szoba
655 m²
Nagykőrös, Balla Gergely utca
Eladó családi ház

Nagykőrös

35 M Ft
3 szoba
72 m²
Nagykőrös
Eladó családi ház

Nagykőrös

99 M Ft
5 szoba
200 m²
Érd, Érdliget - Kutyavár, Érd-liget
Eladó családi ház

Érd

230 M Ft
7 szoba
280 m²
Nagykőrös
Eladó családi ház

Nagykőrös

35 M Ft
3 szoba
72 m²
Nagykőrös
Eladó családi ház

Nagykőrös

39.9 M Ft
3 szoba
300 m²
Nagykőrös
Eladó családi ház

Nagykőrös

99 M Ft
5 szoba
200 m²
Nagykőrös
Eladó családi ház

Nagykőrös

24 M Ft
4 szoba
120 m²
Nagykáta
Eladó családi ház

Nagykáta

130 M Ft
3 szoba
203 m²
Őrbottyán
Eladó családi ház

Őrbottyán

154 M Ft
4 + 1 szoba
115 m²
Nagykőrös
Eladó családi ház

Nagykőrös

24.5 M Ft
2 szoba
62 m²
Kerepes
Eladó családi ház

Kerepes

81.99 M Ft
5 szoba
102 m²
Tápiószele
Eladó családi ház

Tápiószele

32.9 M Ft
4 szoba
200 m²
Tápiószentmárton
Eladó családi ház

Tápiószentmárton

7.9 M Ft
2 + 1 szoba
86 m²
Nagykőrös
Eladó családi ház

Nagykőrös

51.5 M Ft
4 szoba
103 m²
Nagykőrös
Eladó családi ház

Nagykőrös

99 M Ft
5 szoba
200 m²
Zebegény
Eladó családi ház

Zebegény

69.9 M Ft
6 szoba
245 m²
Érd
Eladó családi ház

Érd

164.9 M Ft
5 szoba
192 m²
Tápiószele
Eladó családi ház

Tápiószele

45 M Ft
6 szoba
360 m²

Falusi CSOK ingatlanok

Eplény
Eladó családi ház

Eplény

99.99 M Ft
4 + 2 szoba
160 m²
Szentmártonkáta
Eladó családi ház

Szentmártonkáta

51.9 M Ft
5 szoba
150 m²
Zsámbok
Eladó családi ház

Zsámbok

30 M Ft
2 szoba
80 m²
Nagykarácsony
Eladó családi ház

Nagykarácsony

34.9 M Ft
3 szoba
112 m²
Érsekcsanád
Eladó családi ház

Érsekcsanád

33 M Ft
3 szoba
75 m²
Tápióság
Eladó családi ház

Tápióság

71.5 M Ft
4 szoba
72 m²
Tápióbicske
Eladó ikerház

Tápióbicske

93.5 M Ft
7 szoba
136 m²
Szabadbattyán
Eladó családi ház

Szabadbattyán

147.99 M Ft
5 szoba
255 m²