Aerogate Homes

Eladó családi ház
Nagykőrös

+ 14 kép 1/17
33 000 000 Ft33 M Ft 330 000 Ft/m2
3 + 1 szoba
100 m²
építés éve:1970

Részletes adatok

Állapot: Átlagos
Telekméret: 459 m2
Fűtés: Gázkonvektor
Energetikai besorolás: Nem adta meg a hirdető
Zenga Premier

Friss hirdetések, amiket nem találsz meg más ingatlankereső portálon.

Fedezd fel elsőként a Zenga Premier címkés eladó ingatlanokat!

További részletek a zenga.hu-n

Az OTP Bank lakáshitel ajánlataFizetett hirdetés

+36 20 348
Botka József
Szolnok Szapáry utca 23 - OTP Ingatlanpont Iroda

Érdekel az OTP Bank kedvezményes lakáshitel ajánlata? *

* A kérdésre „Igen” válasz bejelölése esetén, az „Üzenet küldése” gombra kattintva kijelentem, hogy az OTP Bank Nyrt. Adatkezelési tájékoztatójának tartalmát megismertem és tudomásul vettem.

Eladó családi ház leírása

Polgári stílusú családi ház eladó - Budapesttől kb. 1 órára, Pest vármegyében!

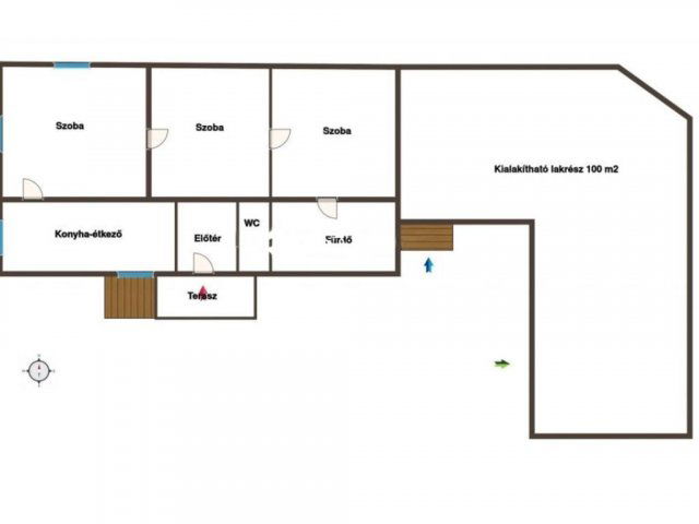
Budapesttől mintegy 80 km-re, jó elhelyezkedéssel kínálok megvételre egy összesen kb. 180 nm-es, polgári stílusú családi házat, amely egy 459 nm-es saroktelken helyezkedik el, és két utcáról is megközelíthető.
Az ingatlan a piac közelében található, így frekventált elhelyezkedése miatt akár vállalkozás számára is kiváló lehetőség.
Az épület masszív tégla falazatú és száraz szerkezetű, a tető a közelmúltban teljes cserén esett át, cserépfedéssel.
A ház egyik felében jelenleg egy kb. 100 nm-es, 3 szobás lakrész található, amelyhez pince is tartozik, míg az épület másik része felújításra vár, így az új tulajdonos saját elképzelései szerint alakíthatja ki.
Az ingatlan adottságai lehetővé teszik akár két külön lakrész kialakítását is.
A kedvező négyzetméter ár, a központ közeli elhelyezkedés, valamint a jó megközelíthetőség miatt az ingatlan befektetésnek, többgenerációs otthonnak vagy vállalkozás számára is remek választás lehet.
Az ingatlan készpénzes vevőt vár.

További információért vagy megtekintés egyeztetéséhez keress bizalommal!

Hirdetés feltöltve: 2026. 03. 14.

4 szobás családi házak ára Nagykőrösön

Ebből az összehasonlításból megtudhatod, hogyan viszonyul a lakás ára a környékbeli családi házak átlagos árához. Ez nem azt jelenti, hogy ennyivel olcsóbb vagy drágább, mint amennyit a lakás ér, hanem hogy ennyivel tér el a környékbeli átlagtól.

Ennek a m² ára
Nagykőrös m² ár
330 e Ft
413 e Ft 20%
Ennek az ára
Nagykőrös átlagár
33 M Ft m Ft
47.8 m Ft 31%

Az ingatlan elhelyezkedése

Cím: Nagykőrös

Eladó családi házak a környékről

Budakeszi, Budakeszi kertváros
Eladó családi ház

Budakeszi

229 M Ft
10 szoba
450 m²
Nagykőrös
Eladó családi ház

Nagykőrös

29.9 M Ft
4 szoba
142 m²
Nagykőrös
Eladó családi ház

Nagykőrös

79.9 M Ft
5 szoba
140 m²
Nagykőrös
Eladó családi ház

Nagykőrös

349.99 M Ft
5 szoba
170 m²
Nagykőrös
Eladó családi ház

Nagykőrös

60 M Ft
5 szoba
240 m²
Nagykőrös
Eladó családi ház

Nagykőrös

18.5 M Ft
3 szoba
35 m²
Tápiószőlős
Eladó családi ház

Tápiószőlős

34.9 M Ft
5 szoba
210 m²
Budakeszi, Makkosmária
Eladó családi ház

Budakeszi

100 M Ft
1 szoba
10 m²
Tápiószele
Eladó családi ház

Tápiószele

32.9 M Ft
4 szoba
200 m²
Tápiószentmárton
Eladó családi ház

Tápiószentmárton

16.5 M Ft
3 szoba
50 m²
Érd, Érdliget - Kutyavár, Érd-liget
Eladó családi ház

Érd

230 M Ft
7 szoba
280 m²
Tápiógyörgye
Eladó családi ház

Tápiógyörgye

19.9 M Ft
3 szoba
65 m²
Tápiószele
Eladó családi ház

Tápiószele

18.9 M Ft
4 szoba
68 m²
Nagykőrös
Eladó családi ház

Nagykőrös

51.5 M Ft
4 szoba
103 m²
Tápiószentmárton
Eladó családi ház

Tápiószentmárton

7.9 M Ft
2 + 1 szoba
86 m²
Nagykőrös
Eladó családi ház

Nagykőrös

34.9 M Ft
5 szoba
120 m²
Nagykőrös
Eladó családi ház

Nagykőrös

24 M Ft
4 szoba
120 m²
Tápiószentmárton
Eladó családi ház

Tápiószentmárton

48 M Ft
5 szoba
180 m²
Nagykőrös, Balla Gergely utca
Eladó családi ház

Nagykőrös

35 M Ft
3 szoba
72 m²
Budakeszi, Budakeszi kertváros
Eladó családi ház

Budakeszi

140 M Ft
2 szoba
55 m²
Nagykőrös
Eladó családi ház

Nagykőrös

44.9 M Ft
8 szoba
230 m²
Tápiószele
Eladó családi ház

Tápiószele

45 M Ft
6 szoba
360 m²
Kerepes
Eladó családi ház

Kerepes

81.99 M Ft
5 szoba
102 m²
Nagykőrös
Eladó családi ház

Nagykőrös

54.9 M Ft
3 szoba
95 m²

Falusi CSOK ingatlanok

Zagyvarékas
Eladó családi ház

Zagyvarékas

42.5 M Ft
3 szoba
140 m²
Nemesvid
Eladó családi ház

Nemesvid

35 M Ft
3 szoba
103 m²
Adony
Eladó családi ház

Adony

84.9 M Ft
3 szoba
106 m²
Törtel
Eladó családi ház

Törtel

36.4 M Ft
3 szoba
114 m²
Nagyszentjános
Eladó téglalakás

Nagyszentjános

74.9 M Ft
4 szoba
117 m²
Nagyharsány
Eladó családi ház

Nagyharsány

31.99 M Ft
3 szoba
107 m²
Felsőlajos
Eladó családi ház

Felsőlajos

100 M Ft
4 szoba
140 m²
Tiszasziget, Sziget lakópark
Eladó sorház

Tiszasziget

33.9 M Ft
2 szoba
48 m²