Eladó családi ház
Nagykőrös

+ 5 kép 1/8
64 250 000 Ft64.25 M Ft 690 860 Ft/m2
4 szoba
93 m2
építés éve:2025

Részletes adatok

Telekméret: 501 m2
Fűtés: Egyéb
Energetikai besorolás: Nem adta meg a hirdető

Az OTP Bank lakáshitel ajánlataFizetett hirdetés

+36 70 374
Koltainé Szentpéteri Emőke
referens

Érdekel az OTP Bank kedvezményes lakáshitel ajánlata? *

* A kérdésre „Igen” válasz bejelölése esetén, az „Üzenet küldése” gombra kattintva kijelentem, hogy az OTP Bank Nyrt. Adatkezelési tájékoztatójának tartalmát megismertem és tudomásul vettem.

Eladó családi ház leírása

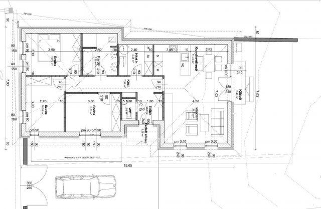
Pest vármegye, Nagykőrös kertvárosi részén 2026. év végén átadásra kerülő 93,5 m2 hasznos nettó alapterületű új tégla építésű családi ház 501 m2 nagyságú telken eladó. A lakóépület a Belváros szélén, csendes aszfaltozott utcában, rendezett családi házak szomszédságában épül fel. A lakóházba fedett előtéren keresztül juthatunk be, melyben egy nappali, egy konyha-étkező, három szoba, egy fürdőszoba-WC helyiség, egy külön nyíló WC-helyiség, egy közlekedő, egy háztartási helyiség és egy előszoba kap helyet. A ház téglából készül, 15 cm-es homlokzati szigeteléssel, hőszigetelt lépésálló födémmel, vörös cserépfedéssel. A külső műanyag nyílászárók 3 rétegű üveggel készülnek, a belsők jó minőségű dekor ajtók lesznek. A szobák laminált padló-, a többi helyiség járólap borítást kap. Az ingatlan vizes helyiségei minőségi fal- és aljzat burkolatot, a belső falak és a mennyezet magas kidolgozottságú fehér festést kapnak (hidegburkolatok 10.000 Ft/nm-ig, melegburkolatok 8.000 Ft/nm-ig választhatók). A telek összközműves: a villany-, a városi víz-, a gáz-ellátás és a szennyvíz-elvezetés telken belül kiépítettek. A ház hűtéséhez a klíma, valamint a nyílászárókon az elektromos redőny előkészítése kiépítésre kerül. Az otthon melegét hőszivattyú biztosítja, padlófűtéses hőleadással. A házban a gépészeti kiállások (mosógép, szárítógép, főzőlap, mosogatógép, stb.), a teljes elektromos kiépítés (lámpapontok, aljzatok, kapcsolók, internetpontok) és a napelemes rendszer előkészítése megtörténik. A gépjármű beálló kialakítása az utcáról udvarba és az utcafronti járda kialakítása szintén benne van az árban. Az ár a telket is tartalmazza.
Az ingatlan elhelyezkedése kiváló, a közelben többféle bevásárlási lehetőség, egészségügyi intézmény, gyógyszertár, bank, posta, kormányhivatal néhány száz méteres körzeten belül elérhető. A hirdetés tájékoztató jellegű, az ingatlanról pontos adatokat a megtekintést követően a tulajdonos által elmondottak alapján tudunk garantálni.
A vásárlás finanszírozásában az OTP kedvezőbb kamatozású hitelkonstrukcióival és egyéb banki termékek kínálatával tudunk segíteni, díjmentesen, sorban állás nélkül! Az adásvételi szerződés lebonyolításához korrekt ügyvédi közreműködést tudunk ajánlani. Amennyiben felkeltettem érdeklődését, hívjon bizalommal! Eladó ingatlanokat keresünk meglévő és külföldi partnereink számára!

Hirdetés feltöltve: 2025. 10. 14. Utoljára módosítva: 2025. 10. 14.

4 szobás családi házak ára Nagykőrösön

Ebből az összehasonlításból megtudhatod, hogyan viszonyul a lakás ára a környékbeli családi házak átlagos árához. Ez nem azt jelenti, hogy ennyivel olcsóbb vagy drágább, mint amennyit a lakás ér, hanem hogy ennyivel tér el a környékbeli átlagtól.

Ennek a m² ára
Nagykőrös m² ár
691 e Ft
444 e Ft -56%
Ennek az ára
Nagykőrös átlagár
64.25 M Ft m Ft
50.4 m Ft -28%

Az ingatlan elhelyezkedése

Cím: Nagykőrös

Eladó családi házak a környékről

Eladó családi ház
Eladó családi ház

Nagykőrös

50.99 M Ft
5 szoba
91 m2
Eladó családi ház
Eladó családi ház

Nagykőrös

349.99 M Ft
5 szoba
170 m2
Eladó családi ház
Eladó családi ház

Nagykőrös, Balla Gergely utca

32 M Ft
3 szoba
72 m2
Eladó családi ház
Eladó családi ház

Nagykőrös

89.095 M Ft
5 szoba
173 m2
Eladó családi ház
Eladó családi ház

Nagykőrös

32 M Ft
3 szoba
72 m2
Eladó családi ház
Eladó családi ház

Nagykőrös

160 M Ft
20 szoba
655 m2
Eladó családi ház
Eladó családi ház

Budakeszi, Budakeszi kertváros

229 M Ft
10 szoba
450 m2
Eladó családi ház
Eladó családi ház

Nagykőrös

24 M Ft
4 szoba
120 m2
Eladó családi ház
Eladó családi ház

Budakeszi, Budakeszi kertváros

140 M Ft
2 szoba
55 m2
Eladó családi ház
Eladó családi ház

Remeteszőlős

399.9 M Ft
5 + 2 szoba
260 m2
Eladó családi ház
Eladó családi ház

Leányfalu

237 M Ft
9 szoba
800 m2
Eladó családi ház
Eladó családi ház

Érd

382 M Ft
6 szoba
420 m2
Eladó családi ház
Eladó családi ház

Kerepes

81.99 M Ft
5 szoba
102 m2
Eladó családi ház
Eladó családi ház

Szigetszentmiklós, Városközpont, Tököli út közeli utca

120 M Ft
7 szoba
525 m2
Eladó családi ház
Eladó családi ház

Nagykőrös

39.9 M Ft
3 szoba
300 m2
Eladó családi ház
Eladó családi ház

Dunavarsány

46.9 M Ft
3 + 2 szoba
130 m2
Eladó családi ház
Eladó családi ház

Gyál, Gyál út

169.9 M Ft
2 szoba
90 m2
Eladó családi ház
Eladó családi ház

Budaörs, Odvshegy utca

268.9 M Ft
5 szoba
235 m2
Eladó családi ház
Eladó családi ház

Nagykőrös

465.05 M Ft
1 szoba
850 m2
Eladó családi ház
Eladó családi ház

Sződ, Rátóti utca

149.99 M Ft
11 szoba
270 m2
Eladó családi ház
Eladó családi ház

Nagykőrös

99 M Ft
5 szoba
200 m2
Eladó családi ház
Eladó családi ház

Nagykőrös

83.99 M Ft
5 szoba
300 m2
Eladó családi ház
Eladó családi ház

Nagykőrös

9.9 M Ft
1 + 1 szoba
70 m2
Eladó családi ház
Eladó családi ház

Nagykőrös

60 M Ft
5 szoba
240 m2

Falusi CSOK ingatlanok

Eladó családi ház
Eladó családi ház

Mernye

24 M Ft
3 szoba
105 m2
Eladó ikerház
Eladó ikerház

Adony

35 M Ft
3 szoba
102 m2
Eladó családi ház
Eladó családi ház

Ceglédbercel

63 M Ft
3 szoba
70 m2
Eladó családi ház
Eladó családi ház

Mikepércs

59.99 M Ft
4 szoba
81 m2
Eladó családi ház
Eladó családi ház

Hernádnémeti

19.9 M Ft
2 szoba
62 m2
Eladó családi ház
Eladó családi ház

Badacsonytomaj

199.8 M Ft
3 szoba
166 m2
Eladó családi ház
Eladó családi ház

Ugod

53.8 M Ft
3 szoba
137 m2
Eladó családi ház
Eladó családi ház

Tök

96.2 M Ft
4 szoba
104 m2