River Life

Eladó családi ház
Nagykanizsa

+ 17 kép 1/20
154 900 000 Ft154.9 M Ft 397 179 Ft/m2
8 szoba
390 m2
építés éve:1990

Részletes adatok

Állapot: Felújított
Telekméret: 607 m2
Fűtés: Gázkazán
Energetikai besorolás: Nem adta meg a hirdető

Az OTP Bank lakáshitel ajánlataFizetett hirdetés

+36 70 467
Rimai Loretta
Otthon Centrum - Nagykanizsa - Fő út

Érdekel az OTP Bank kedvezményes lakáshitel ajánlata? *

* A kérdésre „Igen” válasz bejelölése esetén, az „Üzenet küldése” gombra kattintva kijelentem, hogy az OTP Bank Nyrt. Adatkezelési tájékoztatójának tartalmát megismertem és tudomásul vettem.

Eladó családi ház leírása

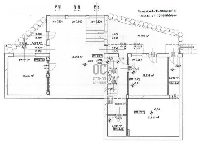
Nagykanizsa belvárosában kínálom megvételre az alábbi társasházzá alakított családi házat, amelyben jelenleg irodák és üzlethelyiség garázzsal van kialakítva.

Ingatlan jellemzői:
- 607 m2-es telken helyezkedik el, ahol belső zárt udvar található térkő burkolással.
- 8 szoba méretű helyiség van jelenleg létrehozva, amelyek iroda funkciót töltenek be, 2 db erkély, egy terasz, garázs, tárolók, vizesblokkok, közlekedők és egy üzlethelyiség.
- Társasházzá alakítás során 6 külön helyrajzi számon, 4 különálló lakás, tároló, garázs és közös helyiségek lettek megtervezve.
- A képek között található fekete-fehér alaprajzok a jelenlegi, a színesek a lehetséges, kialakítható tereket mutatják.
- A legnagyobb lakás 252 m2-es, a következő 57,7 m2-es, a harmadik 44,3 m2-es, a negyedik, legkisebb pedig 29,1 m2.
- Ezeken kívül egy közlekedő, raktár, terasz lett leválasztva, 33,2 m2 nagyságban, illetve egy garázs, ami 23,6 m2.
- A közös helyiségek mérete 22,5 m2.
- Jelenleg 390 m2 van használatban, de a lehetséges, megtervezett bővítéssel a tetőtérben, ez 463 m2-re növelhető.
- A vizesblokkok a mostani használatnak megfelelően WC-kézmosó helyiségeket jelentenek.
- Az ingatlanban minden közmű rendelkezésre áll.
- A villany és gázórákból 2-2, a vízórákból 3 db van jelenleg. Az üzlethelyiség és az irodák külön mérésen vannak.
- Fűtése 2 db gázkazánról üzemel.
- Hűtéséről klímaberendezések gondoskodnak.
- Az épület kívül, belül kiváló állapotban van, teljesen felújított.
- Beton alapokon, tégla építésű, beton födémmel, tetőtéri beépítési lehetőséggel.
- Tető héjazata cserép fedésű.
- A ház víz szigetelést és külső hőszigetelést kapott.
- A zárt udvarban több autó számára a parkolás biztosított.

Irodánk teljes körű szolgáltatást nyújt kereső ügyfeleinek.
Szakszerű tanácsadással, ingyenes CSOK és hitelügyintézéssel, energetikai tanúsítvány elkészítésével és kedvező díjszabású ügyvéddel nyújtunk segítséget!

Hirdetés feltöltve: 2026. 02. 05.

Az ingatlan elhelyezkedése

Cím: Nagykanizsa

Eladó családi házak a környékről

Eladó családi ház
Eladó családi ház

Nagykanizsa

105 M Ft
11 szoba
466 m2
Eladó családi ház
Eladó családi ház

Hévíz

225 M Ft
11 + 1 szoba
317 m2
Eladó családi ház
Eladó családi ház

Hévíz, Park

169 M Ft
5 szoba
220 m2
Eladó családi ház
Eladó családi ház

Szentliszló

29.9 M Ft
2 + 2 szoba
170 m2
Eladó családi ház
Eladó családi ház

Nagykanizsa

110 M Ft
1 szoba
147 m2
Eladó családi ház
Eladó családi ház

Nagykanizsa

26 M Ft
3137 m²
50 m2
Eladó családi ház
Eladó családi ház

Letenye

28.5 M Ft
2 szoba
70 m2
Eladó családi ház
Eladó családi ház

Nagykanizsa

17 M Ft
3 szoba
69 m2
Eladó családi ház
Eladó családi ház

Nagykanizsa

89.99 M Ft
11 szoba
599 m2
Eladó családi ház
Eladó családi ház

Nagykanizsa

11.5 M Ft
3 szoba
62 m2
Eladó családi ház
Eladó családi ház

Nagykanizsa

37.5 M Ft
2 szoba
60 m2
Eladó családi ház
Eladó családi ház

Balatongyörök

89.8 M Ft
5 szoba
140 m2
Eladó családi ház
Eladó családi ház

Nagykanizsa

7.5 M Ft
1 szoba
51 m2
Eladó családi ház
Eladó családi ház

Nagykanizsa

299 M Ft
1813 m²
1800 m2
Eladó családi ház
Eladó családi ház

Hévíz

169 M Ft
5 + 1 szoba
240 m2
Eladó családi ház
Eladó családi ház

Nagykanizsa, Bajcsy-Zsilinszky út

34 M Ft
2 + 1 szoba
62 m2
Eladó családi ház
Eladó családi ház

Zalacsány

120 M Ft
5 + 1 szoba
220 m2
Eladó családi ház
Eladó családi ház

Nagykanizsa

11.5 M Ft
1 szoba
180 m2
Eladó családi ház
Eladó családi ház

Cserszegtomaj

175 M Ft
3 szoba
140 m2
Eladó családi ház
Eladó családi ház

Nagykanizsa

299 M Ft
7 szoba
1800 m2
Eladó családi ház
Eladó családi ház

Nagykanizsa, Teleki utca

60 M Ft
6 szoba
429 m2
Eladó családi ház
Eladó családi ház

Vindornyafok

38.9 M Ft
3 szoba
120 m2
Eladó családi ház
Eladó családi ház

Zalaszentgrót

49.9 M Ft
2 szoba
70 m2
Eladó családi ház
Eladó családi ház

Nagykanizsa

59.9 M Ft
6 szoba
148 m2

Falusi CSOK ingatlanok

Eladó családi ház
Eladó családi ház

Recsk

24.5 M Ft
2 szoba
100 m2
Eladó családi ház
Eladó családi ház

Söpte

94.9 M Ft
4 szoba
94 m2
Eladó családi ház
Eladó családi ház

Mikepércs

72.7 M Ft
2 + 1 szoba
68 m2
Eladó téglalakás
Eladó téglalakás

Herend

63 M Ft
3 szoba
69 m2
Eladó családi ház
Eladó családi ház

Bélapátfalva

29 M Ft
2 szoba
55 m2
Eladó családi ház
Eladó családi ház

Balatonszepezd

299 M Ft
5 szoba
220 m2
Eladó családi ház
Eladó családi ház

Porva

74.6 M Ft
3 szoba
115 m2
Eladó ikerház
Eladó ikerház

Balatonakali

370 M Ft
4 szoba
140 m2