Eladó családi ház
Nagykálló

+ 6 kép 1/9
50 000 000 Ft50 M Ft 500 000 Ft/m2
3 szoba
100 m2
építés éve:1975

Részletes adatok

Állapot: Újszerű
Telekméret: 888 m2
Fűtés: Gázkonvektor
Közmű: Víz, Gáz, Villany, Csatorna
Energetikai besorolás: Nem adta meg a hirdető

Az OTP Bank lakáshitel ajánlataFizetett hirdetés

+36 30 508
Nagy Ildikó Andrea
Nyíregyháza Dózsa György út 32-34 - OTP Ingatlanpont Iroda

Érdekel az OTP Bank kedvezményes lakáshitel ajánlata? *

* A kérdésre „Igen” válasz bejelölése esetén, az „Üzenet küldése” gombra kattintva kijelentem, hogy az OTP Bank Nyrt. Adatkezelési tájékoztatójának tartalmát megismertem és tudomásul vettem.

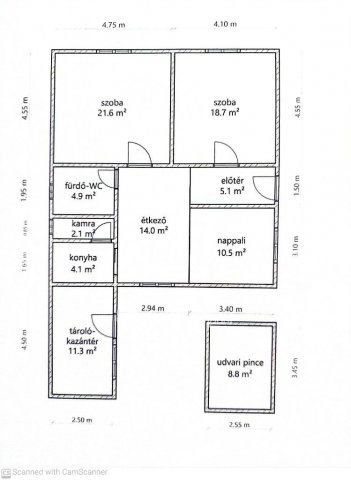
Eladó családi ház leírása

Eladó teljesen felújított családi ház Nagykállóban!

Nagykálló csendes, rendezett részén eladásra kínálunk egy 100 nm-es, kívül-belül teljes körűen felújított családi házat.

Az ingatlan helyiségei:

2 különnyíló szoba

amerikai konyhás nappali

modern fürdőszoba zuhanyzófülkével

mosókonyha

előtér

Felújítási munkálatok:

- teljes villany- és vízvezeték-hálózat csere
- új nyílászárók
- új burkolatok: szobákban laminált parketta, egyéb helyiségekben járólap
- teljesen felújított, modern fürdőszoba
- minden helyiség azonnal költözhető állapotban
A ház előtt egy fedett, 12 nm nagyságú terasz van.
A ház mellett teljesen különálló épületben egy szoba, konyha és fürdőszoba teljesen felújítva található.
Ez a ház tökéletes választás azok számára, akik egy gondozásmentes, korszerű otthont keresnek nyugodt környezetben.
Akár két generáció együttélésére is alkalmas lehet, de mégis külön.

Amennyiben az ingatlan megvásárlásához Otthon Start Hitelt, CSOK Pluszt, Babaváró támogatást, illetve hitelt szeretne igénybe venni, sorban állás nélkül, ingyenes pénzügyi tanácsadással és teljes körű ügyintézéssel is segítjük Önt!

Hirdetés feltöltve: 2025. 10. 02. Utoljára módosítva: 2025. 10. 02.

3 szobás családi házak ára Nagykállóban

Ebből az összehasonlításból megtudhatod, hogyan viszonyul a lakás ára a környékbeli családi házak átlagos árához. Ez nem azt jelenti, hogy ennyivel olcsóbb vagy drágább, mint amennyit a lakás ér, hanem hogy ennyivel tér el a környékbeli átlagtól.

Ennek a m² ára
Nagykálló m² ár
500 e Ft
346 e Ft -44%
Ennek az ára
Nagykálló átlagár
50 M Ft m Ft
39.9 m Ft -25%

Az ingatlan elhelyezkedése

Cím: Nagykálló

Eladó családi házak a környékről

Eladó családi ház
Eladó családi ház

Nyíregyháza

199.9 M Ft
6 szoba
500 m2
Eladó családi ház
Eladó családi ház

Nagykálló

28.9 M Ft
3 szoba
120 m2
Eladó családi ház
Eladó családi ház

Napkor

49.8 M Ft
4 szoba
253 m2
Eladó családi ház
Eladó családi ház

Nyírtelek

68.9 M Ft
12 szoba
440 m2
Eladó családi ház
Eladó családi ház

Nyíregyháza

44.9 M Ft
1 szoba
51 m2
Eladó családi ház
Eladó családi ház

Nagykálló

68.5 M Ft
4 szoba
155 m2
Eladó családi ház
Eladó családi ház

Nagykálló

45 M Ft
4 + 1 szoba
180 m2
Eladó családi ház
Eladó családi ház

Nagykálló

62 M Ft
2 + 1 szoba
150 m2
Eladó családi ház
Eladó családi ház

Nagykálló

28.9 M Ft
3 szoba
120 m2
Eladó családi ház
Eladó családi ház

Nyíregyháza

190 M Ft
4 szoba
230 m2
Eladó családi ház
Eladó családi ház

Napkor, Kinizsi

2.94 M Ft
3 szoba
70 m2
Eladó családi ház
Eladó családi ház

Nyíregyháza, Oros, Oros

55 M Ft
4 szoba
100 m2
Eladó családi ház
Eladó családi ház

Nyíregyháza

92 M Ft
3 szoba
161 m2
Eladó családi ház
Eladó családi ház

Nagykálló

45 M Ft
4 + 1 szoba
140 m2
Eladó családi ház
Eladó családi ház

Nyíregyháza

180 M Ft
3 szoba
204 m2
Eladó családi ház
Eladó családi ház

Nyíregyháza

87 M Ft
5 szoba
210 m2
Eladó családi ház
Eladó családi ház

Nyíregyháza

60 M Ft
3 szoba
100 m2
Eladó családi ház
Eladó családi ház

Újfehértó

22.9 M Ft
2 szoba
60 m2
Eladó családi ház
Eladó családi ház

Nyíregyháza

46 M Ft
3 + 1 szoba
140 m2
Eladó családi ház
Eladó családi ház

Nyíregyháza

85 M Ft
3 szoba
170 m2
Eladó családi ház
Eladó családi ház

Nagykálló, Ibolya út

23.9 M Ft
3 szoba
75 m2
Eladó családi ház
Eladó családi ház

Nagykálló

28.9 M Ft
3 szoba
120 m2
Eladó családi ház
Eladó családi ház

Nagykálló

30 M Ft
2 szoba
70 m2
Eladó családi ház
Eladó családi ház

Nagykálló

15 M Ft
2 szoba
65 m2

Falusi CSOK ingatlanok

Eladó családi ház
Eladó családi ház

Ceglédbercel

63 M Ft
3 szoba
70 m2
Eladó téglalakás
Eladó téglalakás

Balatonszemes, Ady Endre u

76.9 M Ft
1 + 1 szoba
46 m2
Eladó családi ház
Eladó családi ház

Hegyeshalom

85 M Ft
4 + 1 szoba
123 m2
Eladó családi ház
Eladó családi ház

Iváncsa

73.9 M Ft
1 + 3 szoba
97 m2
Eladó családi ház
Eladó családi ház

Buzsák

16.9 M Ft
4 szoba
100 m2
Eladó téglalakás
Eladó téglalakás

Balatonszemes

127.9 M Ft
3 szoba
63 m2
Eladó családi ház
Eladó családi ház

Balatonkeresztúr, Dózsa György u. 29

145 M Ft
5 szoba
150 m2
Eladó családi ház
Eladó családi ház

Nagyszénás, Zrínyi

8.5 M Ft
3 szoba
94 m2