NapForrás 20 - Buda

Eladó családi ház
Monok

Figyelem!

Ez az ingatlan a 2019.07.01-től induló falusi CSOK által támogatott településen található

+ 17 kép 1/20
19 990 000 Ft19.99 M Ft 66 633 Ft/m2
5 szoba
300 m²
építés éve:1940

Részletes adatok

Állapot: Felújítandó
Telekméret: 1849 m2
Fűtés: Egyéb
Energetikai besorolás: Nem adta meg a hirdető

Az OTP Bank lakáshitel ajánlataFizetett hirdetés

+36 30 709
Oroszné Ferencsák Mária
referens

Érdekel az OTP Bank kedvezményes lakáshitel ajánlata? *

* A kérdésre „Igen” válasz bejelölése esetén, az „Üzenet küldése” gombra kattintva kijelentem, hogy az OTP Bank Nyrt. Adatkezelési tájékoztatójának tartalmát megismertem és tudomásul vettem.

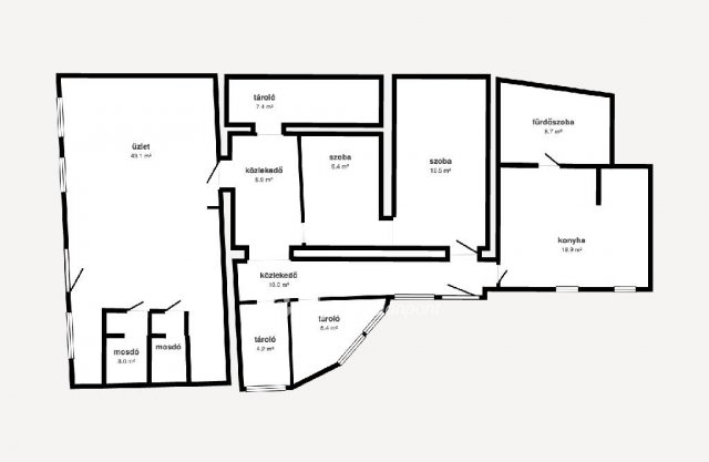
Eladó családi ház leírása

Monok főutcáján, volt üzlethelyiség, mögötte lakóépület eladó, 1849 m2 telken, kb: 100 m2-es üzlethelységnek kialakítva, amely felújítandó, ez néz közvetlenül az utcára. Mögötte egy 150 m2-es lakóépület, amelyben a nyílászárókat pótolni kell mert az előző tulajdonos elvitte, hatalmas terasz tartozik hozzá, fűtést ki kell alakítani. A kettő épület egyben hasznosítható, inkább vállalkozásra ajánlom, de több generációs családi házzá is alakítható. Tehermentes az épület. Monokon minden megtalálható amely a mindennapi élethez szükséges. Szerencs város 10 km -re található ahol több iskola, orvosi rendelők, bevásárló központ is található.
OTP Banki hátterünknek köszönhetően finanszírozási igényekben (pl. Otthon Start Hitelprogram, Babaváró, Falusi CSOK, CSOK Plusz, Lakáshitel, Személyi kölcsön stb.), illetve biztosítások tekintetében is díjmentesen, soron kívüli ügyintézéssel segítem ügyfeleim!
Érdeklődés esetén hivatkozzon az M327602 referenciaszámra! Jöjjön nézzük meg együtt!

Hirdetés feltöltve: 2026. 04. 30. Utoljára módosítva: 2026. 05. 10.

Az ingatlan elhelyezkedése

Cím: Monok

Eladó ingatlanok a környékről

Alsózsolca
Eladó családi ház

Alsózsolca

56.9 M Ft
6 szoba
170 m²
Miskolc
Eladó panellakás

Miskolc

38.499 M Ft
3 szoba
73 m²
Monok
Eladó családi ház

Monok

13.99 M Ft
3 szoba
90 m²
Mezőkövesd
Eladó családi ház

Mezőkövesd

39.9 M Ft
2 szoba
106 m²
Ózd
Eladó családi ház

Ózd

25.99 M Ft
4 szoba
198 m²
Miskolc
Eladó panellakás

Miskolc

34.5 M Ft
2 szoba
55 m²
Monok
Eladó családi ház

Monok

29.9 M Ft
3 + 1 szoba
150 m²
Sajószentpéter, Borsvezér
Eladó családi ház

Sajószentpéter

49.5 M Ft
6 szoba
220 m²
Léh
Eladó családi ház

Léh

23.99 M Ft
2 + 1 szoba
100 m²
Miskolc
Eladó családi ház

Miskolc

24.99 M Ft
3 + 1 szoba
100 m²
Monok, Ady Endre utca 5
Eladó családi ház

Monok

7.5 M Ft
1 + 1 szoba
110 m²
Mezőcsát
Eladó családi ház

Mezőcsát

11 M Ft
2 szoba
61 m²
Szikszó
Eladó családi ház

Szikszó

89.9 M Ft
3 szoba
100 m²
Ózd
Eladó családi ház

Ózd

11.5 M Ft
2 + 4 szoba
100 m²
Tiszalúc
Eladó családi ház

Tiszalúc

19.9 M Ft
4 szoba
180 m²
Gönc, Kossuth Lajos utca
Eladó családi ház

Gönc

26 M Ft
2 + 1 szoba
130 m²
Kazincbarcika
Eladó panellakás

Kazincbarcika

22.7 M Ft
1 + 1 szoba
35 m²
Miskolc
Eladó családi ház

Miskolc

25.9 M Ft
4 szoba
148 m²
Miskolc
Eladó panellakás

Miskolc

36.9 M Ft
2 szoba
51 m²
Miskolc
Eladó panellakás

Miskolc

31 M Ft
2 szoba
52 m²
Miskolc
Eladó panellakás

Miskolc

29.9 M Ft
3 szoba
54 m²
Onga
Eladó telek

Onga

6.5 M Ft
720 m²
0 m²
Dédestapolcsány, Petőfi Sándor utca
Eladó családi ház

Dédestapolcsány

14.9 M Ft
2 szoba
64 m²
Miskolc
Eladó téglalakás

Miskolc

29.9 M Ft
1 szoba
32 m²

Falusi CSOK ingatlanok

Sződ
Eladó családi ház

Sződ

116 M Ft
5 szoba
136 m²
Tápiógyörgye
Eladó családi ház

Tápiógyörgye

22.5 M Ft
3 + 1 szoba
83 m²
Halimba
Eladó családi ház

Halimba

59.9 M Ft
6 szoba
182 m²
Iváncsa
Eladó családi ház

Iváncsa

93.5 M Ft
5 szoba
283 m²
Dunaegyháza
Eladó családi ház

Dunaegyháza

29.49 M Ft
3 szoba
70 m²
Parád
Eladó családi ház

Parád

140 M Ft
4 szoba
200 m²
Felsőlajos
Eladó családi ház

Felsőlajos

100 M Ft
4 szoba
140 m²
Ceglédbercel
Eladó családi ház

Ceglédbercel

67 M Ft
3 szoba
97 m²

Falusi CSOK ingatlanok

Tápiószőlős
Eladó családi ház

Tápiószőlős

39.9 M Ft
4 szoba
120 m²
Szentkirályszabadja
Eladó ikerház

Szentkirályszabadja

99 M Ft
4 szoba
92 m²
Seregélyes
Eladó családi ház

Seregélyes

71.4 M Ft
3 szoba
120 m²
Tihany
Eladó családi ház

Tihany

149 M Ft
5 szoba
270 m²
Felsőlajos
Eladó családi ház

Felsőlajos

100 M Ft
4 szoba
140 m²
Tihany
Eladó családi ház

Tihany

375 M Ft
6 szoba
208 m²
Törtel
Eladó családi ház

Törtel

31 M Ft
3 szoba
66 m²
Lovasberény
Eladó sorház

Lovasberény

78 M Ft
4 + 1 szoba
124 m²