Astora Olive Club House

Eladó családi ház
Mogyoród

+ 2 kép 1/5
91 900 000 Ft91.9 M Ft 1 044 318 Ft/m2
4 szoba
88 m²
építés éve:2026

Részletes adatok

Telekméret: 461 m2
Fűtés: Egyéb
Parkolás: Kocsibeálló
Energetikai besorolás: A

Az OTP Bank lakáshitel ajánlataFizetett hirdetés

+36 20 979
Varga István
referens

Érdekel az OTP Bank kedvezményes lakáshitel ajánlata? *

* A kérdésre „Igen” válasz bejelölése esetén, az „Üzenet küldése” gombra kattintva kijelentem, hogy az OTP Bank Nyrt. Adatkezelési tájékoztatójának tartalmát megismertem és tudomásul vettem.

Eladó családi ház leírása

ÚJ ÉPÍTÉSŰ, ÖNÁLLÓ CSALÁDI HÁZ ELADÓ MOGYORÓD CSENDES, DOMBOLDALI RÉSZÉN!

MODERN MŰSZAKI TARTALOM, HŐSZIVATTYÚS FŰTÉS, PADLÓFŰTÉS, KLÍMA ÉS GYORS KAPCSOLAT BUDAPESTTEL.

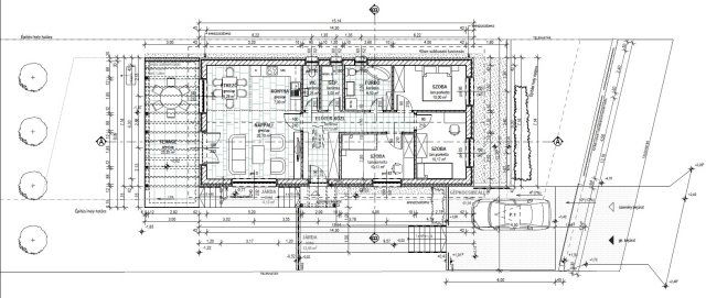
Megvételre kínálok Pest vármegyei Mogyoródon 461 nm-es telken, egy délnyugati fekvésű, nettó 88,17 nm-es, bruttó 113,52 nm-es, 3 szobás + amerikai konyhával ellátott, új építésű önálló családi házat.

Első osztályú anyagokból épülő, kulcsrakész családi ház, extra hőszigeteléssel és hőszivattyús fűtéssel. A ház Phorotherm téglából készül, 15 cm homlokzati és 30 cm födémszigeteléssel, betoncserép tetővel és háromrétegű üvegezésű, színes műanyag nyílászárókkal.

Padlófűtés, fürdőben törölközőszárítós radiátor, valamint nappaliban hűtő-fűtő klíma kerül beépítésre.

A burkolatok, szaniterek és belső ajtók meghatározott értékhatárig választhatók.

A ház riasztó előkészítéssel, kaputelefonnal, elektromos kiállásokkal, napelem- és autótöltő csatlakozási lehetőséggel készül. A telekhez kerítés, térkövezett terasz és beálló, valamint alap tereprendezés tartozik.

A vételár nem tartalmazza a lámpatesteket, függönyöket és a kertépítést.

Az ingatlant 2026 III. negyedévében kezdik el építeni.

​Településen belüli elhelyezkedés:

​Az ingatlan Mogyoród észak-keleti, domboldali részén fekszik. Ez a terület az utóbbi években jelentős fejlődésen ment keresztül, a korábban zártkerti vagy üdülőövezeti besorolású telkek nagy részét mára modern családi házakkal építették be. A környék csendes, kertvárosias jellegű, átmenő forgalomtól mentes.

​Közlekedési kapcsolatok:

​Autós közlekedés: Az M3-as autópálya és az M31-es gyorsút csomópontja néhány perc alatt elérhető, így Budapest központja forgalomtól függően 20-25 perc, a városhatár pedig 10-15 perc alatt megközelíthető.
Gödöllő városa szintén rövid idő alatt elérhető.

Tömegközlekedés: A településen áthaladó H8-as HÉV vonala közvetlen összeköttetést biztosít az Örs vezér terével. A legközelebbi állomás gépjárművel körülbelül 5-6 perc alatt érhető el, ahol P+R parkoló segíti az ingázókat.

​Helyi járatok: A Volánbusz helyközi járatai a település központját érintik, ahonnan csatlakozás biztosított Budapest vagy Gödöllő irányába.

Szolgáltatások és intézmények:

​A település központjában minden alapvető szolgáltatás megtalálható:

​Oktatás és nevelés: Bölcsőde, óvoda és általános iskola üzemel a faluban.

​Egészségügy: Háziorvosi rendelő és gyógyszertár biztosított a lakosok számára.

​Bevásárlás: A közelben helyi élelmiszerüzletek és pékség találhatók, míg a nagyobb bevásárlóközpontok (Fót, Dunakeszi, Gödöllő) autóval 10-15 perces távolságra vannak.

​Szabadidő és környezet:

​A környék kiemelkedő természeti adottságokkal rendelkezik, a közeli dombok kirándulásra és szabadtéri sportolásra alkalmasak. A település közvetlen közelében található a Hungaroring és az Aqua park, amelyek további kikapcsolódási lehetőségeket kínálnak.

INGYENES hitel tanácsadás! CSOK Ügy intézés!
BANKFÜGGETLEN hitelcentrumunk minden elérhető bank és hitelintézet ajánlatát versenyezteti az Ön kedvéért, ráadásul DÍJMENTESEN.
Önnek nincs más dolga, mint elbeszélgetni munkatársunkkal, aki a hallott információk alapján versenyre hívja a bankokat, hogy Ön hosszú távon is a legjobb konstrukciót kaphassa. A legjobb ajánlatokból végül Ön választhatja ki a nyertest.
Munkatársaink sokéves szakmai tapasztalattal várják Önt, előre egyeztetve akár a normál munkaidő után is.

Amennyiben hirdetésem felkeltette érdeklődését, várom hívását, akár hétvégén is! V.I. ...TOVÁBBI, TÖBBEZRES INGATLAN KÍNÁLAT: www.gdn-ingatlan.hu - GDN azonosító: 393335

Hirdetés feltöltve: 2026. 03. 06. Utoljára módosítva: 2026. 03. 06.

4 szobás családi házak ára Mogyoródon

Ebből az összehasonlításból megtudhatod, hogyan viszonyul a lakás ára a környékbeli családi házak átlagos árához. Ez nem azt jelenti, hogy ennyivel olcsóbb vagy drágább, mint amennyit a lakás ér, hanem hogy ennyivel tér el a környékbeli átlagtól.

Ennek a m² ára
Mogyoród m² ár
1044 e Ft
1021 e Ft -2%
Ennek az ára
Mogyoród átlagár
91.9 M Ft m Ft
141.5 m Ft 35%

Az ingatlan elhelyezkedése

Cím: Mogyoród

Eladó családi házak a környékről

Mogyoród
Eladó családi ház

Mogyoród

136.5 M Ft
10 szoba
228 m²
Dunakeszi
Eladó családi ház

Dunakeszi

250 M Ft
4 szoba
180 m²
Mogyoród
Eladó családi ház

Mogyoród

178 M Ft
5 szoba
260 m²
Tápiószentmárton
Eladó családi ház

Tápiószentmárton

48 M Ft
5 szoba
180 m²
Budakeszi, Budakeszi kertváros
Eladó családi ház

Budakeszi

229 M Ft
10 szoba
450 m²
Mogyoród
Eladó családi ház

Mogyoród

225 M Ft
5 szoba
226 m²
Tápiószele
Eladó családi ház

Tápiószele

32.9 M Ft
4 szoba
200 m²
Mogyoród
Eladó családi ház

Mogyoród

270 M Ft
10 szoba
275 m²
Mogyoród
Eladó családi ház

Mogyoród

170 M Ft
5 szoba
180 m²
Mogyoród
Eladó családi ház

Mogyoród

275 M Ft
5 szoba
229 m²
Tápiógyörgye
Eladó családi ház

Tápiógyörgye

19.9 M Ft
3 szoba
65 m²
Remeteszőlős
Eladó családi ház

Remeteszőlős

399.9 M Ft
5 + 2 szoba
260 m²
Mogyoród
Eladó családi ház

Mogyoród

270 M Ft
10 szoba
275 m²
Tápiószele
Eladó családi ház

Tápiószele

18.9 M Ft
4 szoba
68 m²
Érd, Érdliget - Kutyavár, Érd-liget
Eladó családi ház

Érd

230 M Ft
7 szoba
280 m²
Nagykáta
Eladó családi ház

Nagykáta

130 M Ft
3 szoba
203 m²
Mogyoród
Eladó családi ház

Mogyoród

249 M Ft
5 szoba
220 m²
Budakeszi
Eladó családi ház

Budakeszi

130 M Ft
5 szoba
30 m²
Tápiószele
Eladó családi ház

Tápiószele

45 M Ft
6 szoba
360 m²
Budakeszi, Makkosmária
Eladó családi ház

Budakeszi

100 M Ft
1 szoba
10 m²
Mogyoród
Eladó családi ház

Mogyoród

279 M Ft
5 szoba
225 m²
Mogyoród
Eladó családi ház

Mogyoród

136.5 M Ft
10 szoba
228 m²
Mogyoród, Virág utca
Eladó családi ház

Mogyoród

370 M Ft
9 szoba
554 m²
Mogyoród
Eladó családi ház

Mogyoród

225 M Ft
5 szoba
226 m²

Falusi CSOK ingatlanok

Recsk
Eladó családi ház

Recsk

59 M Ft
2 szoba
70 m²
Kaposgyarmat
Eladó családi ház

Kaposgyarmat

695 M Ft
6 szoba
610 m²
Kadarkút, Körmendi utca
Eladó családi ház

Kadarkút

21 M Ft
3 szoba
82 m²
Pannonhalma
Eladó családi ház

Pannonhalma

130 M Ft
5 szoba
142 m²
Jakabszállás
Eladó családi ház

Jakabszállás

105 M Ft
6 szoba
180 m²
Tök
Eladó családi ház

Tök

119.2 M Ft
4 szoba
128 m²
Tatárszentgyörgy
Eladó családi ház

Tatárszentgyörgy

67 M Ft
4 szoba
92 m²
Vásárosdombó
Eladó ikerház

Vásárosdombó

21.7 M Ft
3 szoba
98 m²