Pesti Házak

Eladó családi ház
Mocsa, földszint

Figyelem!

Ez az ingatlan a 2019.07.01-től induló falusi CSOK által támogatott településen található

+ 16 kép 1/19
49 900 000 Ft49.9 M Ft 616 049 Ft/m2
4 szoba
81 m2
földszint
építés éve:1980

Részletes adatok

Telekméret: 748 m2
Fűtés: Gázkazán
Energetikai besorolás: Nem adta meg a hirdető

Az OTP Bank lakáshitel ajánlataFizetett hirdetés

+36 30 622
Nagy Edit
Dot-Ing 2001 Ingatlanirodák Kft.

Érdekel az OTP Bank kedvezményes lakáshitel ajánlata? *

* A kérdésre „Igen” válasz bejelölése esetén, az „Üzenet küldése” gombra kattintva kijelentem, hogy az OTP Bank Nyrt. Adatkezelési tájékoztatójának tartalmát megismertem és tudomásul vettem.

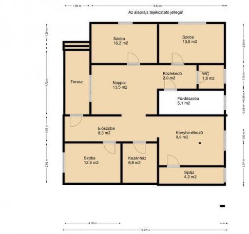
Eladó családi ház leírása

SZÉP ÁLLAPOTÚ CSALÁDI HÁZ ELADÓ MOCSA CSENDES RÉSZÉN!

3 szoba + nappali | 748 m² telek | kiváló szerkezet | beépíthető tetőtér

A DOT-ING ingatlan- és hiteliroda eladásra kínál Mocsa belterületén, lakóházas, nyugodt környezetben, egy 81 m²-es, földszintes, tégla építésű családi házat, amelyhez tégla melléképületek és gondozott udvar is tartozik.

A ház jellemzői:

748 m²-es összközműves telek

1980-ban épült, kiváló statikai állapot

Beton sávalap, tégla falazat, vasbeton födém

Újraépített tető: új lécezés, fóliázás, új cserép

Beépíthető tetőtér

10 cm homlokzati szigetelés

Műanyag nyílászárók

Központi fűtés (gáz + vegyes tüzelésű kazán)

Fúrt kút, amely a fürdő és WC vízellátását is biztosítja

Belső elrendezés:

Előtérből nyíló tágas nappali és étkezős konyha

3 külön nyíló szoba – ideális gyermekes családoknak

Fürdő: épített zuhanyzós, teljesen felújított

Külön WC

Új burkolatok, új beltéri ajtók mindenhol

Melléképületek & Udvar:

Tégla melléképületek (tárolásra kiváló)

Rendezett, füvesített kert

Kiváló elhelyezkedés – minden fontos hely gyalog elérhető:

Iskola, óvoda, bölcsőde, bolt, cukrászda, buszmegálló csak 2 utcányira

Ideális választás azoknak, akik:

Csendes, falusias, biztonságos környezetre vágynak

Kiváló állapotú, költözhető házat keresnek

Befektetési lehetőséget is látnak a beépíthető tetőtérben

Ne döntsön másik ingatlan mellett, míg ezt nem látta!

Megtekintés előzetes egyeztetés alapján kizárólag irodánkon keresztül:
Nagy Edit – 06 30 6 226 317

Hirdetés feltöltve: 2025. 06. 06. Utoljára módosítva: 2025. 11. 25.

Az ingatlan elhelyezkedése

Cím: Mocsa, földszint

Eladó ingatlanok a környékről

Eladó családi ház
Eladó családi ház

Pilismarót

33 M Ft
3 szoba
86 m2
Eladó családi ház
Eladó családi ház

Tatabánya

180 M Ft
8 szoba
510 m2
Eladó nyaraló
Eladó nyaraló

Gyermely

9.5 M Ft
2 szoba
22 m2
Eladó családi ház
Eladó családi ház

Bábolna

90.3 M Ft
5 szoba
100 m2
Eladó családi ház
Eladó családi ház

Mocsa

13.99 M Ft
3 szoba
58 m2
Eladó téglalakás
Eladó téglalakás

Dorog

79.9 M Ft
3 szoba
85 m2
Eladó családi ház
Eladó családi ház

Mocsa

78 M Ft
4 + 2 szoba
178 m2
Eladó családi ház
Eladó családi ház

Dad

67 M Ft
4 szoba
136 m2
Eladó családi ház
Eladó családi ház

Esztergom, Visegrádi út

98 M Ft
3 szoba
92 m2
Eladó családi ház
Eladó családi ház

Mocsa

460 M Ft
24 + 2 szoba
484 m2
Eladó családi ház
Eladó családi ház

Tata

83 M Ft
5 szoba
200 m2
Eladó téglalakás
Eladó téglalakás

Tatabánya, Kertváros, A épület Alkotmány utca 1/A

51.729 M Ft
2 szoba
47 m2
Eladó családi ház
Eladó családi ház

Komárom

38.595 M Ft
1 + 1 szoba
43 m2
Eladó családi ház
Eladó családi ház

Kesztölc

129.9 M Ft
8 szoba
210 m2
Eladó téglalakás
Eladó téglalakás

Tatabánya, Kertváros, A épület Alkotmány utca 1/A

80.501 M Ft
3 szoba
63 m2
Eladó családi ház
Eladó családi ház

Esztergom, Visegrádi út 69

179.99 M Ft
6 szoba
187 m2
Eladó téglalakás
Eladó téglalakás

Komárom

68.5 M Ft
2 + 2 szoba
94 m2
Eladó téglalakás
Eladó téglalakás

Tatabánya

47.9 M Ft
2 szoba
56 m2
Eladó téglalakás
Eladó téglalakás

Tatabánya

32.5 M Ft
1 + 1 szoba
33 m2
Eladó családi ház
Eladó családi ház

Vértesszőlős

15.99 M Ft
2 szoba
80 m2
Eladó családi ház
Eladó családi ház

Tatabánya, Bánhida, Károlyi Mihály utca

36 M Ft
3 + 1 szoba
95 m2
Eladó családi ház
Eladó családi ház

Szomor, Ady Endre utca

105 M Ft
4 szoba
295 m2
Eladó családi ház
Eladó családi ház

Komárom

135 M Ft
7 + 2 szoba
254 m2
Eladó telek
Eladó telek

Tatabánya, Sárberek, András út

9.5 M Ft
1081 m²
1081 m2

Falusi CSOK ingatlanok

Eladó családi ház
Eladó családi ház

Tabdi

95 M Ft
45 szoba
1490 m2
Eladó családi ház
Eladó családi ház

Mezőfalva

39 M Ft
3 szoba
77 m2
Eladó családi ház
Eladó családi ház

Abaújszántó

19.99 M Ft
3 szoba
84 m2
Eladó családi ház
Eladó családi ház

Mórichida

44.9 M Ft
3 szoba
89 m2
Eladó családi ház
Eladó családi ház

Akasztó

25 M Ft
2 szoba
82 m2
Eladó családi ház
Eladó családi ház

Újlengyel

108 M Ft
3 szoba
80 m2
Eladó családi ház
Eladó családi ház

Révfülöp

160 M Ft
8 szoba
180 m2
Eladó családi ház
Eladó családi ház

Hernádnémeti

18.9 M Ft
2 szoba
62 m2

Falusi CSOK ingatlanok

Eladó családi ház
Eladó családi ház

Szigetcsép

110 M Ft
3 szoba
137 m2
Eladó családi ház
Eladó családi ház

Sellye

43 M Ft
5 szoba
150 m2
Eladó családi ház
Eladó családi ház

Helesfa

17.999 M Ft
2 szoba
74 m2
Eladó családi ház
Eladó családi ház

Tésenfa, Kossuth utca 23/a

5.55 M Ft
1 + 1 szoba
109 m2
Eladó családi ház
Eladó családi ház

Hernádnémeti

18.9 M Ft
2 szoba
62 m2
Eladó családi ház
Eladó családi ház

Elek

89.9 M Ft
5 szoba
274 m2
Eladó családi ház
Eladó családi ház

Madaras

5.9 M Ft
3 szoba
90 m2
Eladó családi ház
Eladó családi ház

Söpte

94.9 M Ft
4 szoba
94 m2