Avico

Eladó családi ház
Miskolc

+ 11 kép 1/14
34 990 000 Ft34.99 M Ft 336 442 Ft/m2
6 szoba
104 m2
építés éve:1995

Részletes adatok

Telekméret: 320 m2
Fűtés: Házközponti
Energetikai besorolás: Nem adta meg a hirdető

Az OTP Bank lakáshitel ajánlataFizetett hirdetés

+36 70 467
Buda Béla
Openhouse Miskolc

Érdekel az OTP Bank kedvezményes lakáshitel ajánlata? *

* A kérdésre „Igen” válasz bejelölése esetén, az „Üzenet küldése” gombra kattintva kijelentem, hogy az OTP Bank Nyrt. Adatkezelési tájékoztatójának tartalmát megismertem és tudomásul vettem.

Eladó családi ház leírása

Az Openhouse Miskolc Szentpáli utcai Ingatlaniroda kínálatában eladó a #176828 hivatkozási számú miskolci családi ház.

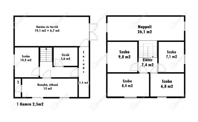
Az eladó miskolci családi ház jellemzői:
- tágas családi ház Miskolc egyik kedvelt kertvárosi részén a Bábonyibérc városrészen!
- 104 m2-es, eltolt szintes családi ház 320 m2-es telken
- 1995-ben épült, szilikát és Poroterm falazattal, tégla belső falakkal, stabil tetőszerkezettel és cserépfedéssel
- 5 szobás elrendezésének köszönhetően ideális lehet nagyobb családnak vagy több generációnak is
- a ház összkomfortos, fűtését vegyes tüzelésű kazán biztosítja radiátorokon keresztül
- a földszinten található a tágas garázs, kazánház
- a földszinten a bejárat, illetve egy hálószoba, konyha, kamra, WC, előszoba, közlekedő
- félemeleten a tágas nappali
- az emeleten 4 szoba
- kiváló elhelyezkedése révén néhány perc sétára található buszmegálló, élelmiszerboltok, gyógyszertár, így minden fontosabb szolgáltatás könnyen elérhető, közvetlen közelben állatorvos
Ez a ház remek lehetőséget kínál, ha Miskolc egyik csendes, nyugodt környezetében, mégis jó infrastruktúrával ellátott környéken szeretne otthonra találni!

Ha felkeltette érdeklődését ez az eladó miskolci családi ház, vagy bármely más családi ház és bővebb információt szeretne, keressen bizalommal.Hivatkozási szám: #176828

Az Openhouse Miskolc Szentpáli utcai Ingatlaniroda tagjaként várom Önt az országos hálózatunk teljes kínálatával.

A családi ház vásárláshoz hitelt igényelne? Ingyenes hitelközvetítéssel segít Önnek bankfüggetlen hitelszakértőnk.

További szolgáltatásainkkal (pl. értékbecslés, energetikai tanúsítvány, jogi háttér) is segítjük Önt a vásárlásban.
Az otthon érték. Az ingatlan üzlet.

irányár: 34990000 Ft
Érd.: Buda Béla, +36704677281, e-mail: bela.buda@oh.hu, www.miskolc.oh.hu

Referencia szám: 176828

Hirdetés feltöltve: 2025. 11. 07. Utoljára módosítva: 2025. 11. 07.

Az ingatlan elhelyezkedése

Cím: Miskolc

Eladó családi házak a környékről

Eladó családi ház
Eladó családi ház

Ózd

13 M Ft
5 szoba
150 m2
Eladó családi ház
Eladó családi ház

Kisgyőr, Rákóczi

59.9 M Ft
3 szoba
100 m2
Eladó családi ház
Eladó családi ház

Miskolc

69.9 M Ft
7 + 1 szoba
268 m2
Eladó családi ház
Eladó családi ház

Miskolc

25.9 M Ft
4 szoba
148 m2
Eladó családi ház
Eladó családi ház

Miskolc

69 M Ft
3 szoba
100 m2
Eladó családi ház
Eladó családi ház

Nemesbikk, Kossuth utca 3

4.5 M Ft
2 szoba
80 m2
Eladó családi ház
Eladó családi ház

Ózd

25.99 M Ft
4 szoba
198 m2
Eladó családi ház
Eladó családi ház

Miskolc

89.999 M Ft
4 szoba
128 m2
Eladó családi ház
Eladó családi ház

Miskolc, Avasalja, Bulgárföld

99.9 M Ft
5 + 1 szoba
300 m2
Eladó családi ház
Eladó családi ház

Miskolc

38.8 M Ft
2 szoba
80 m2
Eladó családi ház
Eladó családi ház

Miskolc

69.9 M Ft
6 szoba
200 m2
Eladó családi ház
Eladó családi ház

Taktaszada, Thököly utca

37 M Ft
4 + 1 szoba
190 m2
Eladó családi ház
Eladó családi ház

Miskolc

122 M Ft
6 + 1 szoba
200 m2
Eladó családi ház
Eladó családi ház

Miskolc

25.9 M Ft
4 szoba
148 m2
Eladó családi ház
Eladó családi ház

Ózd

15 M Ft
7 szoba
225 m2
Eladó családi ház
Eladó családi ház

Miskolc

149 M Ft
10 szoba
414 m2
Eladó családi ház
Eladó családi ház

Tiszalúc, Alkotmány utca

16.9 M Ft
4 szoba
137 m2
Eladó családi ház
Eladó családi ház

Szikszó

89.9 M Ft
3 szoba
100 m2
Eladó családi ház
Eladó családi ház

Miskolc

149 M Ft
4 szoba
463 m2
Eladó családi ház
Eladó családi ház

Miskolc, Miskolc-Tapolca

93.9 M Ft
11 szoba
320 m2
Eladó családi ház
Eladó családi ház

Miskolc, Vargahegy, Margaréta utca

14.5 M Ft
1 szoba
42 m2
Eladó családi ház
Eladó családi ház

Ózd, Ózd falu, 48-as út

39.9 M Ft
3 + 1 szoba
300 m2
Eladó családi ház
Eladó családi ház

Miskolc

44.9 M Ft
3 + 1 szoba
120 m2
Eladó családi ház
Eladó családi ház

Miskolc

39.9 M Ft
5 szoba
151 m2

Falusi CSOK ingatlanok

Eladó családi ház
Eladó családi ház

Erdősmecske

32 M Ft
3 szoba
115 m2
Eladó családi ház
Eladó családi ház

Onga

46.8 M Ft
4 szoba
103 m2
Eladó családi ház
Eladó családi ház

Tápióság

12.9 M Ft
1 szoba
50 m2
Eladó családi ház
Eladó családi ház

Kemence, Fő utca

25 M Ft
3 szoba
91 m2
Eladó családi ház
Eladó családi ház

Törtel

14 M Ft
3 + 2 szoba
55 m2
Eladó családi ház
Eladó családi ház

Újléta

18.5 M Ft
2 szoba
63 m2
Eladó családi ház
Eladó családi ház

Lesencetomaj

67.9 M Ft
3 szoba
90 m2
Eladó téglalakás
Eladó téglalakás

Fertőszentmiklós

74.9 M Ft
2 szoba
75 m2