City Pearl

Eladó családi ház
Mikepércs

Figyelem!

Ez az ingatlan a 2019.07.01-től induló falusi CSOK által támogatott településen található

+ 10 kép 1/13
87 000 000 Ft87 M Ft 537 037 Ft/m2
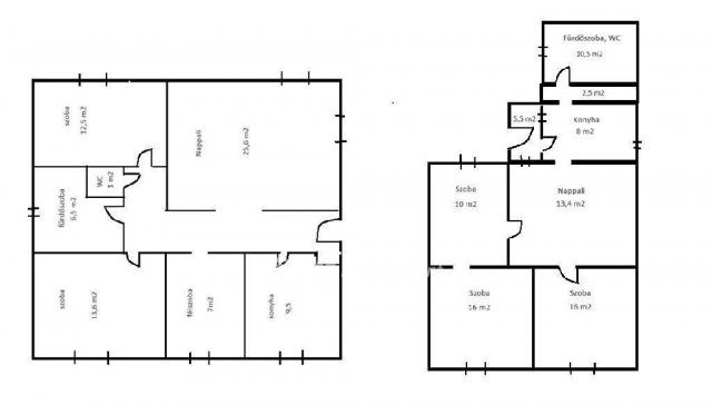
6 + 1 szoba
162 m2
építés éve:1986

Részletes adatok

Állapot: Átlagos
Telekméret: 746 m2
Fűtés: Gázkazán
Energetikai besorolás: Nem adta meg a hirdető

Az OTP Bank lakáshitel ajánlataFizetett hirdetés

+36 30 419
Balla László
OTP Ingatlanpont

Érdekel az OTP Bank kedvezményes lakáshitel ajánlata? *

* A kérdésre „Igen” válasz bejelölése esetén, az „Üzenet küldése” gombra kattintva kijelentem, hogy az OTP Bank Nyrt. Adatkezelési tájékoztatójának tartalmát megismertem és tudomásul vettem.

Eladó családi ház leírása

Mikepércs központi részén eladó egy sarki telken található, 2 családi ház.
Az egyik újabb építésű, beton alapra épült tégla falazattal, cserép tetővel, gáz kazános fűtéssel. Itt 2+1 fél szoba , illetve nagy nappali és konyha fürdőszoba található.
A másik ház az korábban épült, vegyes falazattal, pala fedéssel, itt szinten 2+1 szoba, nappali, konyha és fürdőszoba található. Szintén gázfűtéssel rendelkezik, illetve egy tárolásra alkalmas melléképülethez kapcsolódik.
Tetszés szerint modernizálható de nagyon sok lehetőség van benne. Elhelyezkedésének köszönhetően kiválóan alkalmas 2 generációs család számára is, vagy akár vállalkozásra is kimondottan jó adottságokkal rendelkezik. Minden szükséges létesítmény, boltok, orvosi rendelő, busz állomás, gyógyszertár, posta, 5 perc alatt sétálva is elérhető.
További információért hívjon bizalommal akár hétvégén is. Megtekintésre telefonos egyeztetés alapján van lehetőség.
Kedvezményes kamatozású lakásvásárlási és felújítási hitelek az OTP hátterével irodánkban, valamint teljeskörű adásvétellel kapcsolatos ügyintézés.
Érd.Balla László +36 30 419 5022

Referencia szám: M285426

Hirdetés feltöltve: 2025. 09. 30. Utoljára módosítva: 2025. 12. 16.

Az ingatlan elhelyezkedése

Cím: Mikepércs

Eladó családi házak a környékről

Eladó családi ház
Eladó családi ház

Debrecen

248 M Ft
5 szoba
260 m2
Eladó családi ház
Eladó családi ház

Hajdúszoboszló

49.9 M Ft
5 szoba
160 m2
Eladó családi ház
Eladó családi ház

Mikepércs

59 M Ft
2 szoba
80 m2
Eladó családi ház
Eladó családi ház

Hajdúszoboszló

99 M Ft
5 + 1 szoba
160 m2
Eladó családi ház
Eladó családi ház

Mikepércs

56 M Ft
3 + 1 szoba
87 m2
Eladó családi ház
Eladó családi ház

Mikepércs

59.99 M Ft
4 szoba
80 m2
Eladó családi ház
Eladó családi ház

Mikepércs

59 M Ft
2 szoba
80 m2
Eladó családi ház
Eladó családi ház

Debrecen

13.9 M Ft
2 szoba
56 m2
Eladó családi ház
Eladó családi ház

Debrecen

245 M Ft
5 + 1 szoba
275 m2
Eladó családi ház
Eladó családi ház

Debrecen

85 M Ft
4 szoba
100 m2
Eladó családi ház
Eladó családi ház

Debrecen

105 M Ft
3 szoba
120 m2
Eladó családi ház
Eladó családi ház

Mikepércs

87 M Ft
6 + 1 szoba
162 m2
Eladó családi ház
Eladó családi ház

Hajdúdorog, Templom utca

95 M Ft
9 szoba
270 m2
Eladó családi ház
Eladó családi ház

Hajdúböszörmény

99 M Ft
2 + 1 szoba
142 m2
Eladó családi ház
Eladó családi ház

Derecske

24.9 M Ft
2 szoba
67 m2
Eladó családi ház
Eladó családi ház

Debrecen, Lencztelep, Szeged utca

129.9 M Ft
7 szoba
240 m2
Eladó családi ház
Eladó családi ház

Mikepércs

45 M Ft
2 szoba
80 m2
Eladó családi ház
Eladó családi ház

Mikepércs

24.9 M Ft
3 szoba
60 m2
Eladó családi ház
Eladó családi ház

Szentpéterszeg

47 M Ft
3 szoba
92 m2
Eladó családi ház
Eladó családi ház

Mikepércs

128.9 M Ft
4 szoba
134 m2
Eladó családi ház
Eladó családi ház

Mikepércs

111 M Ft
4 szoba
122 m2
Eladó családi ház
Eladó családi ház

Mikepércs

34.9 M Ft
2 + 1 szoba
78 m2
Eladó családi ház
Eladó családi ház

Mikepércs

219 M Ft
5 szoba
160 m2
Eladó családi ház
Eladó családi ház

Mikepércs

59.99 M Ft
4 szoba
81 m2

Falusi CSOK ingatlanok

Eladó családi ház
Eladó családi ház

Tapsony

23.8 M Ft
3 szoba
130 m2
Eladó családi ház
Eladó családi ház

Palkonya

137 M Ft
6 szoba
160 m2
Eladó családi ház
Eladó családi ház

Dáka

69.125 M Ft
5 szoba
135 m2
Eladó családi ház
Eladó családi ház

Enese

78.9 M Ft
4 szoba
90 m2
Eladó családi ház
Eladó családi ház

Újlengyel

108 M Ft
3 szoba
80 m2
Eladó családi ház
Eladó családi ház

Sellye

43 M Ft
5 szoba
150 m2
Eladó családi ház
Eladó családi ház

Vitnyéd, Petőfi Sándor utca 3

16.71 M Ft
1 + 1 szoba
99 m2
Eladó családi ház
Eladó családi ház

Káptalanfa

32.8 M Ft
3 szoba
90 m2

Falusi CSOK ingatlanok

Eladó családi ház
Eladó családi ház

Zalalövő

34.99 M Ft
3 szoba
110 m2
Eladó családi ház
Eladó családi ház

Törtel

32 M Ft
2 szoba
67 m2
Eladó családi ház
Eladó családi ház

Sajószöged

41.5 M Ft
3 szoba
138 m2
Eladó családi ház
Eladó családi ház

Tápiógyörgye

32 M Ft
3 szoba
86 m2
Eladó családi ház
Eladó családi ház

Tápióság

30 M Ft
3 szoba
67 m2
Eladó családi ház
Eladó családi ház

Ipolyvece

18.9 M Ft
3 + 1 szoba
91 m2
Eladó családi ház
Eladó családi ház

Tésenfa, Kossuth utca 23/a

5.55 M Ft
1 + 1 szoba
109 m2
Eladó téglalakás
Eladó téglalakás

Balatonszemes

125.2 M Ft
2 szoba
50 m2