Metrodom

Eladó családi ház
Mezőkövesd

+ 12 kép 1/15
27 000 000 Ft27 M Ft 355 263 Ft/m2
1 + 1 szoba
76 m²
építés éve:1900

Részletes adatok

Telekméret: 322 m2
Fűtés: Gázkonvektor
Energetikai besorolás: Nem adta meg a hirdető

Az OTP Bank lakáshitel ajánlataFizetett hirdetés

+36 20 361
Spéth Gábor György
OTP Ingatlanpont Miskolc Szemere

Érdekel az OTP Bank kedvezményes lakáshitel ajánlata? *

* A kérdésre „Igen” válasz bejelölése esetén, az „Üzenet küldése” gombra kattintva kijelentem, hogy az OTP Bank Nyrt. Adatkezelési tájékoztatójának tartalmát megismertem és tudomásul vettem.

Eladó családi ház leírása

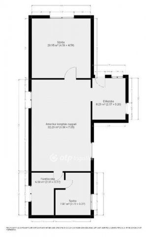
Mezőkövesden kínálok megvételre egy 76 négyzetméteres családi házat, amely a méretéhez képest kifejezetten tágas belső terekkel rendelkezik.

Az ingatlan egyik legnagyobb előnye a 32 négyzetméteres, amerikai konyhás nappali, amely világos, jól használható életteret biztosít a mindennapokhoz. A ház egy szobával és egy félszobával rendelkezik, így ideális választás lehet egy kisebb család vagy pár számára.

A villamos és vízhálózat felújításra került, az ingatlan belső falai újravakolásra kerültek, jelenleg már csak a végső színezés van hátra. A nyílászárók műanyag kivitelűek. A burkolás félkész állapotban van, így az új tulajdonos még saját ízlése szerint fejezheti be.

Összességében egy jó állapotú, azonnal költözhető családi házról van szó, amely kisebb befejező munkák után teljes értékű otthonná válik.

OTP Banki hátterünknek köszönhetően finanszírozási igényekben (pl. Otthon Start Program, Babaváró, Falusi CSOK, CSOK Plusz, Lakáshitel, Személyi kölcsön stb.), illetve biztosítások tekintetében is díjmentesen, soron kívüli ügyintézéssel segítem ügyfeleim! Referenciaszám: M321415

Hirdetés feltöltve: 2026. 03. 05. Utoljára módosítva: 2026. 04. 01.

2 szobás családi házak ára Mezőkövesden

Ebből az összehasonlításból megtudhatod, hogyan viszonyul a lakás ára a környékbeli családi házak átlagos árához. Ez nem azt jelenti, hogy ennyivel olcsóbb vagy drágább, mint amennyit a lakás ér, hanem hogy ennyivel tér el a környékbeli átlagtól.

Ennek a m² ára
Mezőkövesd m² ár
355 e Ft
336 e Ft -6%
Ennek az ára
Mezőkövesd átlagár
27 M Ft m Ft
23.1 m Ft -17%

Az ingatlan elhelyezkedése

Cím: Mezőkövesd

Eladó családi házak a környékről

Tarcal
Eladó családi ház

Tarcal

21.9 M Ft
3 szoba
90 m²
Mezőkövesd
Eladó családi ház

Mezőkövesd

67.5 M Ft
3 szoba
130 m²
Mezőkövesd
Eladó családi ház

Mezőkövesd

20.5 M Ft
2 szoba
50 m²
Ózd
Eladó családi ház

Ózd

25.99 M Ft
4 szoba
198 m²
Mezőkövesd
Eladó családi ház

Mezőkövesd

20.5 M Ft
2 szoba
50 m²
Ózd
Eladó családi ház

Ózd

15 M Ft
7 szoba
225 m²
Tiszalúc, Alkotmány utca
Eladó családi ház

Tiszalúc

16.9 M Ft
4 szoba
137 m²
Mezőkövesd
Eladó családi ház

Mezőkövesd

20.5 M Ft
2 szoba
50 m²
Gönc
Eladó családi ház

Gönc

20.5 M Ft
2 szoba
80 m²
Mezőkövesd
Eladó családi ház

Mezőkövesd

79 M Ft
3 + 2 szoba
130 m²
Taktaszada, Thököly utca
Eladó családi ház

Taktaszada

37 M Ft
4 + 1 szoba
190 m²
Mezőkövesd
Eladó családi ház

Mezőkövesd

20.5 M Ft
2 szoba
50 m²
Ózd
Eladó családi ház

Ózd

26.5 M Ft
3 szoba
100 m²
Mezőkövesd
Eladó családi ház

Mezőkövesd

34.99 M Ft
2 + 1 szoba
91 m²
Szikszó
Eladó családi ház

Szikszó

89.9 M Ft
3 szoba
100 m²
Sajószentpéter, Borsvezér
Eladó családi ház

Sajószentpéter

49.5 M Ft
6 szoba
220 m²
Mezőkövesd
Eladó családi ház

Mezőkövesd

15.99 M Ft
2 szoba
60 m²
Mezőkövesd
Eladó családi ház

Mezőkövesd

34.99 M Ft
2 + 1 szoba
91 m²
Mezőkövesd
Eladó családi ház

Mezőkövesd

34.99 M Ft
2 + 1 szoba
91 m²
Miskolc
Eladó családi ház

Miskolc

149 M Ft
4 szoba
463 m²
Ózd
Eladó családi ház

Ózd

7.9 M Ft
3 szoba
125 m²
Mezőkövesd
Eladó családi ház

Mezőkövesd

59 M Ft
5 szoba
212 m²
Gönc, Kossuth Lajos utca
Eladó családi ház

Gönc

26 M Ft
2 + 1 szoba
130 m²
Mezőkövesd
Eladó családi ház

Mezőkövesd

34.99 M Ft
2 + 1 szoba
91 m²

Falusi CSOK ingatlanok

Gönyű
Eladó családi ház

Gönyű

111.951 M Ft
5 szoba
105 m²
Lázi
Eladó családi ház

Lázi

25.9 M Ft
2 szoba
85 m²
Ádánd
Eladó családi ház

Ádánd

53.5 M Ft
6 szoba
180 m²
Tápiógyörgye
Eladó családi ház

Tápiógyörgye

29.49 M Ft
2 szoba
60 m²
Perkáta
Eladó családi ház

Perkáta

38.95 M Ft
1 + 2 szoba
72 m²
Szigetcsép
Eladó családi ház

Szigetcsép

158.9 M Ft
5 szoba
176 m²
Seregélyes
Eladó családi ház

Seregélyes

75 M Ft
6 szoba
160 m²
Gyóró
Eladó családi ház

Gyóró

24.9 M Ft
2 szoba
100 m²