Avico Greentop

Eladó családi ház
Mezőcsát

+ 16 kép 1/19
26 500 000 Ft26.5 M Ft 196 296 Ft/m2
4 szoba
135 m²
építés éve:1970

Részletes adatok

Telekméret: 454 m2
Fűtés: Gázkazán
Komfort: Összkomfortos
Energetikai besorolás: Nem adta meg a hirdető

Az OTP Bank lakáshitel ajánlataFizetett hirdetés

+36 70 322
Piskóti Tibor Lajos
OTP Ingatlanpont Miskolc Szemere

Érdekel az OTP Bank kedvezményes lakáshitel ajánlata? *

* A kérdésre „Igen” válasz bejelölése esetén, az „Üzenet küldése” gombra kattintva kijelentem, hogy az OTP Bank Nyrt. Adatkezelési tájékoztatójának tartalmát megismertem és tudomásul vettem.

Eladó családi ház leírása

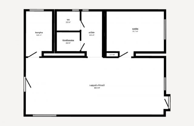
Mezőcsát központi részén kínálok megvételre egy 135 nm-es, kétszintes családi házat, amely kiváló lehetőséget nyújt akár kétgenerációs együttélésre vagy nagyobb család számára is. Az ingatlan alsó szintje teljes körű belső modernizáláson esett át, ahol egy alacsonyabb belmagasságú, de hangulatos és jól kihasználható térben található egy szoba, valamint egy egybenyitott nappali-étkező és egy praktikus konyhafülke, a fűtés korszerű gáz cirkó rendszerrel és radiátorokkal megoldott, a villamos hálózat pedig szintén felújításra került, így műszaki szempontból biztonságos és költséghatékony otthont biztosít. A felső szinten három külön nyíló szoba, fürdőszoba és WC került kialakításra, valamint egy további konyha is helyet kapott, ami lehetővé teszi az önálló életterek kialakítását, így az ingatlan ideális választás lehet több generáció számára vagy akár befektetési célra is. A ház egy 454 nm-es telken helyezkedik el, külső állapota átlagos, kisebb felújítással tovább növelhető az értéke, miközben az utca rendezett és jó környezetet biztosít a mindennapokhoz. Az ingatlan jó állapotú, belső terei élhetőek és azonnal használatba vehetők, ugyanakkor a kialakításának köszönhetően rengeteg lehetőséget rejt magában, legyen szó családi otthonról vagy több lakrész kialakításáról. OTP Banki hátterünknek köszönhetően finanszírozási igényekben (pl. Otthon Start Hitelprogram , Babaváró, Falusi CSOK, CSOK Plusz, Lakáshitel, Személyi kölcsön stb.), illetve biztosítások tekintetében is díjmentesen, soron kívüli ügyintézéssel segítem ügyfeleim!Referenciaszám: M325869

Az energetikai tanúsítvány készítése folyamatban van, amint rendelkezésre áll, úgy azzal a hirdetés frissítésre kerül.

Referencia szám: M325869

Hirdetés feltöltve: 2026. 04. 28. Utoljára módosítva: 2026. 05. 18.

4 szobás családi házak ára Mezőcsáton

Ebből az összehasonlításból megtudhatod, hogyan viszonyul a lakás ára a környékbeli családi házak átlagos árához. Ez nem azt jelenti, hogy ennyivel olcsóbb vagy drágább, mint amennyit a lakás ér, hanem hogy ennyivel tér el a környékbeli átlagtól.

Ennek a m² ára
Mezőcsát m² ár
196 e Ft
199 e Ft 1%
Ennek az ára
Mezőcsát átlagár
26.5 M Ft m Ft
28 m Ft 5%

Az ingatlan elhelyezkedése

Cím: Mezőcsát

Eladó ingatlanok a környékről

Mezőcsát
Eladó családi ház

Mezőcsát

11 M Ft
2 szoba
61 m²
Mezőcsát
Eladó családi ház

Mezőcsát

13.9 M Ft
2 szoba
50 m²
Miskolc
Eladó családi ház

Miskolc

149 M Ft
4 szoba
463 m²
Miskolc, Martin kertváros
Eladó családi ház

Miskolc

89.999 M Ft
4 szoba
128 m²
Mezőcsát
Eladó családi ház

Mezőcsát

13.8 M Ft
3 szoba
68 m²
Sajószentpéter, Petőfi Sándor utca
Eladó családi ház

Sajószentpéter

10.9 M Ft
3 szoba
54 m²
Ózd
Eladó családi ház

Ózd

25.99 M Ft
4 szoba
198 m²
Gönc
Eladó családi ház

Gönc

20.5 M Ft
2 szoba
80 m²
Mezőcsát
Eladó családi ház

Mezőcsát

42.9 M Ft
3 + 1 szoba
200 m²
Mezőcsát
Eladó családi ház

Mezőcsát

19 M Ft
3 + 1 szoba
108 m²
Léh
Eladó családi ház

Léh

23.99 M Ft
2 + 1 szoba
100 m²
Mezőcsát
Eladó családi ház

Mezőcsát

19.9 M Ft
3 szoba
90 m²
Tiszalúc
Eladó családi ház

Tiszalúc

19.9 M Ft
4 szoba
180 m²
Ózd
Eladó családi ház

Ózd

7.3 M Ft
3 szoba
125 m²
Mezőcsát
Eladó családi ház

Mezőcsát

13.9 M Ft
2 szoba
50 m²
Mezőcsát
Eladó családi ház

Mezőcsát

11 M Ft
2 szoba
61 m²
Gönc, Kossuth Lajos utca
Eladó családi ház

Gönc

26 M Ft
2 + 1 szoba
130 m²
Putnok
Eladó családi ház

Putnok

11 M Ft
3 szoba
79 m²
Komlóska
Eladó családi ház

Komlóska

55.9 M Ft
7 szoba
247 m²
Mezőcsát
Eladó családi ház

Mezőcsát

13.8 M Ft
3 szoba
68 m²
Sajószentpéter, Borsvezér
Eladó családi ház

Sajószentpéter

49.5 M Ft
6 szoba
220 m²
Mezőcsát
Eladó családi ház

Mezőcsát

19.9 M Ft
3 szoba
90 m²
Mezőcsát
Eladó családi ház

Mezőcsát

15.8 M Ft
3 szoba
85 m²
Miskolc
Eladó családi ház

Miskolc

25.9 M Ft
4 szoba
148 m²

Falusi CSOK ingatlanok

Kemecse
Eladó családi ház

Kemecse

25 M Ft
4 szoba
93 m²
Csárdaszállás
Eladó családi ház

Csárdaszállás

11.99 M Ft
3 + 2 szoba
100 m²
Hegyeshalom, Margaréta utca 12
Eladó téglalakás

Hegyeshalom

50.09 M Ft
2 szoba
43 m²
Balatonszemes
Eladó téglalakás

Balatonszemes

91.5 M Ft
2 szoba
0 m²
Lajoskomárom
Eladó családi ház

Lajoskomárom

22.9 M Ft
2 szoba
66 m²
Onga
Eladó családi ház

Onga

46.99 M Ft
3 szoba
120 m²
Balinka, Petőfi S. utca 27
Eladó családi ház

Balinka

12.65 M Ft
1 + 2 szoba
79 m²
Balatonszemes
Eladó téglalakás

Balatonszemes

125.2 M Ft
2 szoba
50 m²