NapForrás 20 - Buda

Eladó családi ház
Mezőcsát

+ 16 kép 1/19
26 500 000 Ft26.5 M Ft 196 296 Ft/m2
4 szoba
135 m²
építés éve:1970

Részletes adatok

Állapot: Átlagos
Telekméret: 454 m2
Fűtés: Gázkazán
Közmű: Víz, Villany, Csatorna
Energetikai besorolás: Nem adta meg a hirdető
Zenga Premier

Friss hirdetések, amiket nem találsz meg más ingatlankereső portálon.

Fedezd fel elsőként a Zenga Premier címkés eladó ingatlanokat!

További részletek a zenga.hu-n

Az OTP Bank lakáshitel ajánlataFizetett hirdetés

+36 70 742
Gyöngyösi Szabolcs
referens

Érdekel az OTP Bank kedvezményes lakáshitel ajánlata? *

* A kérdésre „Igen” válasz bejelölése esetén, az „Üzenet küldése” gombra kattintva kijelentem, hogy az OTP Bank Nyrt. Adatkezelési tájékoztatójának tartalmát megismertem és tudomásul vettem.

Eladó családi ház leírása

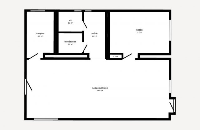
Mezőcsát központi részén kínálok megvételre egy 135 nm-es, kétszintes családi házat, amely kiváló lehetőséget nyújt akár kétgenerációs együttélésre vagy nagyobb család számára is. Az ingatlan alsó szintje teljes körű belső modernizáláson esett át, ahol egy alacsonyabb belmagasságú, de hangulatos és jól kihasználható térben található egy szoba, valamint egy egybenyitott nappali-étkező és egy praktikus konyhafülke, a fűtés korszerű gáz cirkó rendszerrel és radiátorokkal megoldott, a villamos hálózat pedig szintén felújításra került, így műszaki szempontból biztonságos és költséghatékony otthont biztosít. A felső szinten három külön nyíló szoba, fürdőszoba és WC került kialakításra, valamint egy további konyha is helyet kapott, ami lehetővé teszi az önálló életterek kialakítását, így az ingatlan ideális választás lehet több generáció számára vagy akár befektetési célra is. A ház egy 454 nm-es telken helyezkedik el, külső állapota átlagos, kisebb felújítással tovább növelhető az értéke, miközben az utca rendezett és jó környezetet biztosít a mindennapokhoz. Az ingatlan jó állapotú, belső terei élhetőek és azonnal használatba vehetők, ugyanakkor a kialakításának köszönhetően rengeteg lehetőséget rejt magában, legyen szó családi otthonról vagy több lakrész kialakításáról. OTP Banki hátterünknek köszönhetően finanszírozási igényekben (pl. Otthon Start Hitelprogram , Babaváró, Falusi CSOK, CSOK Plusz, Lakáshitel, Személyi kölcsön stb.), illetve biztosítások tekintetében is díjmentesen, soron kívüli ügyintézéssel segítem ügyfeleim!Referenciaszám: M325869

Hirdetés feltöltve: 2026. 04. 07. Utoljára módosítva: 2026. 04. 07.

4 szobás családi házak ára Mezőcsáton

Ebből az összehasonlításból megtudhatod, hogyan viszonyul a lakás ára a környékbeli családi házak átlagos árához. Ez nem azt jelenti, hogy ennyivel olcsóbb vagy drágább, mint amennyit a lakás ér, hanem hogy ennyivel tér el a környékbeli átlagtól.

Ennek a m² ára
Mezőcsát m² ár
196 e Ft
199 e Ft 1%
Ennek az ára
Mezőcsát átlagár
26.5 M Ft m Ft
28 m Ft 5%

Az ingatlan elhelyezkedése

Cím: Mezőcsát

Eladó ingatlanok a környékről

Gönc, Kossuth Lajos utca
Eladó családi ház

Gönc

26 M Ft
2 + 1 szoba
130 m²
Ózd
Eladó családi ház

Ózd

15 M Ft
7 szoba
225 m²
Mezőcsát
Eladó családi ház

Mezőcsát

13.8 M Ft
3 szoba
68 m²
Tiszalúc, Alkotmány utca
Eladó családi ház

Tiszalúc

16.9 M Ft
4 szoba
137 m²
Miskolc
Eladó családi ház

Miskolc

54.99 M Ft
4 szoba
103 m²
Felsőzsolca
Eladó családi ház

Felsőzsolca

34.9 M Ft
3 + 1 szoba
115 m²
Ózd
Eladó családi ház

Ózd

13 M Ft
5 szoba
150 m²
Mezőcsát
Eladó családi ház

Mezőcsát

22 M Ft
4 szoba
144 m²
Miskolc
Eladó családi ház

Miskolc

149 M Ft
4 szoba
463 m²
Mezőcsát
Eladó családi ház

Mezőcsát

42.9 M Ft
3 + 1 szoba
200 m²
Léh
Eladó családi ház

Léh

23.99 M Ft
2 + 1 szoba
100 m²
Miskolc
Eladó téglalakás

Miskolc

31.8 M Ft
2 szoba
57 m²
Mezőcsát
Eladó családi ház

Mezőcsát

22 M Ft
4 szoba
144 m²
Rudabánya
Eladó családi ház

Rudabánya

19.9 M Ft
5 szoba
140 m²
Edelény
Eladó családi ház

Edelény

31.5 M Ft
2 szoba
75 m²
Komlóska
Eladó családi ház

Komlóska

55.9 M Ft
7 szoba
247 m²
Szikszó
Eladó családi ház

Szikszó

89.9 M Ft
3 szoba
100 m²
Mezőcsát
Eladó családi ház

Mezőcsát

13.9 M Ft
2 szoba
50 m²
Ózd
Eladó családi ház

Ózd

25.99 M Ft
4 szoba
198 m²
Mezőcsát
Eladó családi ház

Mezőcsát

42.9 M Ft
3 + 1 szoba
200 m²
Mezőcsát
Eladó családi ház

Mezőcsát

19 M Ft
3 + 1 szoba
108 m²
Tarcal
Eladó családi ház

Tarcal

21.9 M Ft
3 szoba
90 m²
Mezőcsát, József Attila utca
Eladó családi ház

Mezőcsát

13.8 M Ft
3 szoba
68 m²
Mezőcsát
Eladó családi ház

Mezőcsát

16 M Ft
2 + 1 szoba
91 m²

Falusi CSOK ingatlanok

Kocsér
Eladó családi ház

Kocsér

27.9 M Ft
4 szoba
108 m²
Ceglédbercel
Eladó családi ház

Ceglédbercel

79.9 M Ft
5 szoba
140 m²
Somogycsicsó
Eladó családi ház

Somogycsicsó

15.99 M Ft
4 szoba
98 m²
Vértesboglár
Eladó családi ház

Vértesboglár

56.9 M Ft
4 szoba
154 m²
Tápióbicske
Eladó ikerház

Tápióbicske

93.5 M Ft
7 szoba
136 m²
Balatonszemes
Eladó téglalakás

Balatonszemes

123.3 M Ft
2 szoba
70 m²
Balatonberény
Eladó családi ház

Balatonberény

85 M Ft
4 szoba
155 m²
Szentmártonkáta
Eladó családi ház

Szentmártonkáta

51.9 M Ft
5 szoba
150 m²