NapForrás 20 - Buda

Eladó családi ház
Mesterszállás

Figyelem!

Ez az ingatlan a 2019.07.01-től induló falusi CSOK által támogatott településen található

+ 17 kép 1/20
4 500 000 Ft4.5 M Ft 67 164 Ft/m2
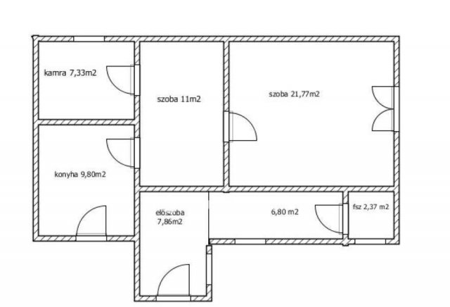
1 + 1 szoba
67 m²
építés éve:1950

Részletes adatok

Állapot: Felújítandó
Telekméret: 1356 m2
Fűtés: Egyéb
Energetikai besorolás: Nem adta meg a hirdető

Az OTP Bank lakáshitel ajánlataFizetett hirdetés

Hitelösszeg 10 millió Ft
Futamidő 20 év
Induló törlesztőrészlet 67 508 Ft
Törlesztőrészlet a 13. hónaptól 86 071 Ft
THM 8,6 %

A tájékoztatás nem teljes körű és nem minősül ajánlattételnek. Az OTP Évnyerő Lakáshitelei 1 éves türelmi idős kölcsönök, amellyel az első 12 hónapban alacsonyabb a havi törlesztőrészlet. A tőke törlesztését a 13. hónaptól kell megkezdeni.

    Részletes kalkuláció
    +36 70 779
    Ferencziné Jordán Györgyi
    referens

    Érdekel az OTP Bank kedvezményes lakáshitel ajánlata? *

    * A kérdésre „Igen” válasz bejelölése esetén, az „Üzenet küldése” gombra kattintva kijelentem, hogy az OTP Bank Nyrt. Adatkezelési tájékoztatójának tartalmát megismertem és tudomásul vettem.

    Eladó családi ház leírása

    Eladásra kínálunk Jász-Nagykun-Szolnok Vármegyében Mesterszálláson egy kis kertes házat, amely 1356m2-es telken helyezkedik el. Az ingatlant jelenleg méhész raktárként használják, de a költözés folyamatban van. A ház 67m2-es, melyben egy fürdőszoba és egy mellékhelyiség lett kialakítva. Az ingatlan teljes felújítást igényel.

    A vásárlás finanszírozásában az OTP kedvező hitelkonstrukcióival, Csok és a támogatott hitel lehetőségével, vagy akár a babaváró hitel ilyen célra történő felhasználásával tud segíteni. Használja ki a lehetőséget, hogy kedvezőbb kamatozású OTP Bank hitelhez juthat, ha az OTP Ingatlanpont kínálatából vásárol. Ingatlant kereső ügyfeleink részére szolgáltatásaink és az ingatlanvásárlással, ingatlan felújítással kapcsolatos hitel ügyintézése ingyenes. Amennyiben felkeltettem érdeklődését kérem hívjon bizalommal.

    Hirdetés feltöltve: 2026. 04. 08. Utoljára módosítva: 2026. 04. 27.

    Az ingatlan elhelyezkedése

    Cím: Mesterszállás

    Eladó ingatlanok a környékről

    Kisújszállás
    Eladó családi ház

    Kisújszállás

    119 M Ft
    6 szoba
    464 m²
    Szolnok
    Eladó családi ház

    Szolnok

    120 M Ft
    3 + 4 szoba
    296 m²
    Jászladány, Fekete Pál utca
    Eladó családi ház

    Jászladány

    8 M Ft
    2 szoba
    53 m²
    Szolnok
    Eladó családi ház

    Szolnok

    57.5 M Ft
    3 + 1 szoba
    90 m²
    Újszász
    Eladó családi ház

    Újszász

    37.99 M Ft
    3 + 1 szoba
    79 m²
    Jászfényszaru
    Eladó családi ház

    Jászfényszaru

    55 M Ft
    4 szoba
    140 m²
    Szolnok
    Eladó nyaraló

    Szolnok

    19.8 M Ft
    1 + 1 szoba
    28 m²
    Jászjákóhalma
    Eladó családi ház

    Jászjákóhalma

    25 M Ft
    4 + 1 szoba
    200 m²
    Szolnok
    Eladó családi ház

    Szolnok

    169 M Ft
    2 + 2 szoba
    194 m²
    Kengyel
    Eladó családi ház

    Kengyel

    22.2 M Ft
    3 szoba
    111 m²
    Martfű
    Eladó téglalakás

    Martfű

    26.5 M Ft
    2 szoba
    53 m²
    Tiszaföldvár
    Eladó családi ház

    Tiszaföldvár

    35.9 M Ft
    3 szoba
    75 m²
    Mesterszállás
    Eladó családi ház

    Mesterszállás

    13 M Ft
    3 szoba
    141 m²
    Szolnok
    Eladó nyaraló

    Szolnok

    6.9 M Ft
    1 szoba
    35 m²
    Abádszalók
    Eladó családi ház

    Abádszalók

    18 M Ft
    4 szoba
    110 m²
    Jászberény
    Eladó családi ház

    Jászberény

    42.5 M Ft
    4 szoba
    159 m²
    Kőtelek
    Eladó családi ház

    Kőtelek

    11.9 M Ft
    2 szoba
    65 m²
    Abádszalók
    Eladó családi ház

    Abádszalók

    18 M Ft
    4 szoba
    110 m²
    Jászberény, Tőtevény tanya
    Eladó családi ház

    Jászberény

    99.9 M Ft
    6 szoba
    229 m²
    Törökszentmiklós
    Eladó családi ház

    Törökszentmiklós

    26.5 M Ft
    2 szoba
    63 m²
    Szolnok
    Eladó téglalakás

    Szolnok

    26.99 M Ft
    1 + 1 szoba
    42 m²
    Szelevény
    Eladó családi ház

    Szelevény

    18 M Ft
    3 szoba
    79 m²
    Jászberény
    Eladó családi ház

    Jászberény

    20 M Ft
    2 szoba
    72 m²
    Mezőtúr
    Eladó családi ház

    Mezőtúr

    25 M Ft
    3 szoba
    141 m²

    Falusi CSOK ingatlanok

    Csány, Központi elhelyezkedés
    Eladó családi ház

    Csány

    48.5 M Ft
    3 szoba
    97 m²
    Kéthely
    Eladó családi ház

    Kéthely

    97 M Ft
    3 szoba
    109 m²
    Balatonkeresztúr
    Eladó családi ház

    Balatonkeresztúr

    89 M Ft
    3 szoba
    63 m²
    Dunavecse
    Eladó családi ház

    Dunavecse

    49 M Ft
    3 szoba
    93 m²
    Nagyszénás, Bajcsy-Zsilinszky utca 60
    Eladó családi ház

    Nagyszénás

    11.7 M Ft
    1 + 1 szoba
    128 m²
    Szigliget, Soponyai út
    Eladó ikerház

    Szigliget

    429 M Ft
    7 + 2 szoba
    212 m²
    Kaposszerdahely, Rákóczi Ferenc utca
    Eladó családi ház

    Kaposszerdahely

    19.9 M Ft
    2 szoba
    75 m²
    Mikebuda
    Eladó családi ház

    Mikebuda

    45.9 M Ft
    7 szoba
    120 m²

    Falusi CSOK ingatlanok

    Jobbágyi
    Eladó családi ház

    Jobbágyi

    399 M Ft
    6 + 1 szoba
    200 m²
    Devecser
    Eladó családi ház

    Devecser

    36.9 M Ft
    3 szoba
    75 m²
    Szűr
    Eladó családi ház

    Szűr

    12 M Ft
    3 szoba
    68 m²
    Hegyeshalom, Margaréta utca 12
    Eladó téglalakás

    Hegyeshalom

    46.91 M Ft
    2 szoba
    43 m²
    Németkér
    Eladó családi ház

    Németkér

    149.9 M Ft
    2 szoba
    540 m²
    Balatonszárszó
    Eladó családi ház

    Balatonszárszó

    30 M Ft
    3 szoba
    45 m²
    Balatonkeresztúr, Kanizsai utca
    Eladó ikerház

    Balatonkeresztúr

    32.9 M Ft
    3 szoba
    30 m²
    Balatonszemes, Ady Endre u
    Eladó téglalakás

    Balatonszemes

    78.9 M Ft
    2 szoba
    46 m²