Metrodom

Eladó családi ház
Mátraderecske

Figyelem!

Ez az ingatlan a 2019.07.01-től induló falusi CSOK által támogatott településen található

+ 11 kép 1/14
13 500 000 Ft13.5 M Ft 245 455 Ft/m2
2 szoba
55 m2

Részletes adatok

Állapot: Felújítandó
Telekméret: 291 m2
Fűtés: Gázkonvektor
Parkolás: Kocsibeálló
Közmű: Víz, Gáz, Villany, Csatorna
Energetikai besorolás: Nem adta meg a hirdető

Az OTP Bank lakáshitel ajánlataFizetett hirdetés

+36 30 498
Tóthhouse
Tóthhouse

Érdekel az OTP Bank kedvezményes lakáshitel ajánlata? *

* A kérdésre „Igen” válasz bejelölése esetén, az „Üzenet küldése” gombra kattintva kijelentem, hogy az OTP Bank Nyrt. Adatkezelési tájékoztatójának tartalmát megismertem és tudomásul vettem.

Eladó családi ház leírása

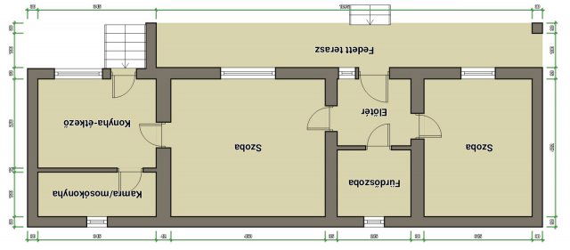
Mátraderecske központjában 55 nm-es, 2 szobás, részben korszerűsített, fagerendás mennyezetű, vegyes (vályog és tégla) falazatú családi ház eladó. Az épületben 2 szoba, előtér, konyha-étkező, fürdőszoba és kamra/mosókonyha található. A fűtést gázkonvektorok biztosítják.

Az elmúlt évek során a villany- és vízvezetéket cserélték.

Az összközműves telek 291 nm, udvari beállós, ásott kút van rajta.

A település központi része néhány perc sétán belül elérhető, ahol buszmegálló, bolt, bölcsőde, óvoda, iskola, orvosi rendelő és gyógyszertár is van.

Az ingatlan fiatal pároknak, családoknak, több generáció számára, illetve a Mofetta miatt vendégháznak vagy nyaralónak egyaránt alkalmas!

Hirdetés feltöltve: 2025. 12. 11. Utoljára módosítva: 2025. 12. 11.

2 szobás családi házak ára Mátraderecskén

Ebből az összehasonlításból megtudhatod, hogyan viszonyul a lakás ára a környékbeli családi házak átlagos árához. Ez nem azt jelenti, hogy ennyivel olcsóbb vagy drágább, mint amennyit a lakás ér, hanem hogy ennyivel tér el a környékbeli átlagtól.

Ennek a m² ára
Mátraderecske m² ár
245 e Ft
242 e Ft -2%
Ennek az ára
Mátraderecske átlagár
13.5 M Ft m Ft
24.9 m Ft 46%

Az ingatlan elhelyezkedése

Cím: Mátraderecske

Eladó családi házak a környékről

Eladó családi ház
Eladó családi ház

Mátraderecske

54 M Ft
4 szoba
80 m2
Eladó családi ház
Eladó családi ház

Mátraderecske

14 M Ft
1 + 1 szoba
47 m2
Eladó családi ház
Eladó családi ház

Mátraderecske

14.8 M Ft
3 szoba
90 m2
Eladó családi ház
Eladó családi ház

Mátraderecske

24.9 M Ft
5 szoba
128 m2
Eladó családi ház
Eladó családi ház

Andornaktálya

42.5 M Ft
3 szoba
115 m2
Eladó családi ház
Eladó családi ház

Mátraszentimre

250 M Ft
8 szoba
300 m2
Eladó családi ház
Eladó családi ház

Szilvásvárad

92 M Ft
4 + 1 szoba
220 m2
Eladó családi ház
Eladó családi ház

Mátraderecske

8.5 M Ft
2 szoba
37 m2
Eladó családi ház
Eladó családi ház

Bükkszék

44.9 M Ft
3 + 2 szoba
114 m2
Eladó családi ház
Eladó családi ház

Mátraderecske

29.99 M Ft
6 szoba
191 m2
Eladó családi ház
Eladó családi ház

Mátraderecske

9.9 M Ft
2 szoba
52 m2
Eladó családi ház
Eladó családi ház

Ostoros

94.5 M Ft
3 szoba
96 m2
Eladó családi ház
Eladó családi ház

Andornaktálya

28.5 M Ft
2 szoba
60 m2
Eladó családi ház
Eladó családi ház

Egerbakta

36.5 M Ft
5 szoba
120 m2
Eladó családi ház
Eladó családi ház

Ostoros

94.5 M Ft
3 szoba
96 m2
Eladó családi ház
Eladó családi ház

Mátraderecske

14.8 M Ft
3 szoba
90 m2
Eladó családi ház
Eladó családi ház

Karácsond

29.5 M Ft
3 szoba
112 m2
Eladó családi ház
Eladó családi ház

Mátraderecske

18.9 M Ft
2 szoba
64 m2
Eladó családi ház
Eladó családi ház

Recsk

21 M Ft
4 szoba
220 m2
Eladó családi ház
Eladó családi ház

Mátraderecske

29.99 M Ft
6 szoba
191 m2
Eladó családi ház
Eladó családi ház

Mátraderecske

85 M Ft
180 m2
Eladó családi ház
Eladó családi ház

Mátraderecske

9.8 M Ft
2 szoba
70 m2
Eladó családi ház
Eladó családi ház

Bükkszék

78.9 M Ft
2 + 1 szoba
160 m2
Eladó családi ház
Eladó családi ház

Mátraderecske

6.9 M Ft
2 szoba
60 m2

Falusi CSOK ingatlanok

Eladó családi ház
Eladó családi ház

Rábapaty

110 M Ft
5 szoba
132 m2
Eladó családi ház
Eladó családi ház

Szabadbattyán

30 M Ft
4 szoba
75 m2
Eladó családi ház
Eladó családi ház

Besnyő

149 M Ft
6 szoba
285 m2
Eladó családi ház
Eladó családi ház

Rédics

49.9 M Ft
3 szoba
107 m2
Eladó családi ház
Eladó családi ház

Pétfürdő

74.9 M Ft
3 szoba
89 m2
Eladó családi ház
Eladó családi ház

Dunavecse, Móricz Zsigmond utca

34 M Ft
2 szoba
95 m2
Eladó családi ház
Eladó családi ház

Újszilvás

39.5 M Ft
3 szoba
62 m2
Eladó családi ház
Eladó családi ház

Szentkirályszabadja

119.9 M Ft
6 szoba
185 m2

Falusi CSOK ingatlanok

Eladó téglalakás
Eladó téglalakás

Nagyszentjános

61.9 M Ft
4 szoba
68 m2
Eladó téglalakás
Eladó téglalakás

Balatonszemes

91.5 M Ft
2 szoba
60 m2
Eladó családi ház
Eladó családi ház

Törtel

13.5 M Ft
5 szoba
74 m2
Eladó családi ház
Eladó családi ház

Balatonszárszó

56.5 M Ft
3 szoba
60 m2
Eladó családi ház
Eladó családi ház

Örkény

49.5 M Ft
5 szoba
100 m2
Eladó családi ház
Eladó családi ház

Ádánd

69.9 M Ft
6 szoba
251 m2
Eladó családi ház
Eladó családi ház

Székkutas

25.9 M Ft
4 szoba
107 m2
Eladó családi ház
Eladó családi ház

Bajánsenye

34.9 M Ft
5 szoba
130 m2