Seven Pearl

Eladó családi ház
Máriakálnok

+ 6 kép 1/9
74 900 000 Ft74.9 M Ft 832 222 Ft/m2
4 + 1 szoba
90 m2
építés éve:2025

Részletes adatok

Telekméret: 315 m2
Fűtés: Geotermikus
Közmű: Víz, Gáz, Villany, Csatorna
Energetikai besorolás: Nem adta meg a hirdető

Az OTP Bank lakáshitel ajánlataFizetett hirdetés

+36 70 621
Menich Julianna Erzsébet
Mosonmagyaróvár Lucsony utca 20 - OTP Ingatlanpont Iroda

Érdekel az OTP Bank kedvezményes lakáshitel ajánlata? *

* A kérdésre „Igen” válasz bejelölése esetén, az „Üzenet küldése” gombra kattintva kijelentem, hogy az OTP Bank Nyrt. Adatkezelési tájékoztatójának tartalmát megismertem és tudomásul vettem.

Eladó családi ház leírása

Újépítésű, A++ energiabesorolású családi ház eladó - modern technológia termálvíz használattal, alacsony rezsi, kiváló lokáció!

Mosonmagyaróvár közvetlen határában van, de közigazgatásilag Máriakálnokhoz tartozik.

3%-os Otthon Start Program igényelhető!
CSOK igényelhető!
2026. májusi átadás - geotermikus vagy hőszivattyú, padlófűtés!

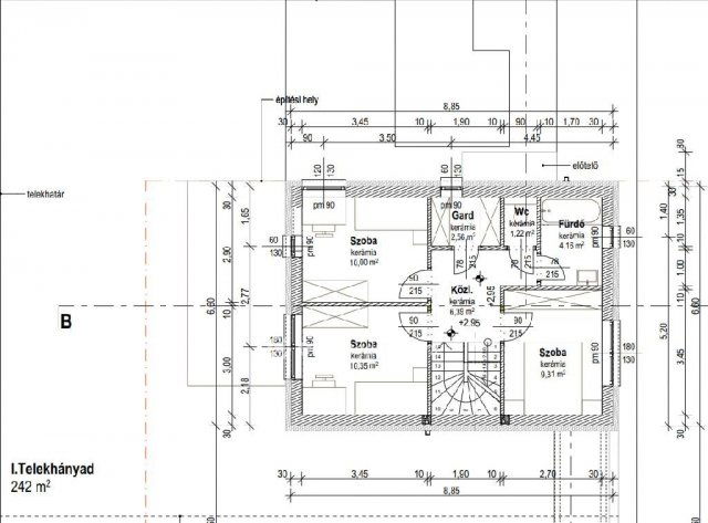
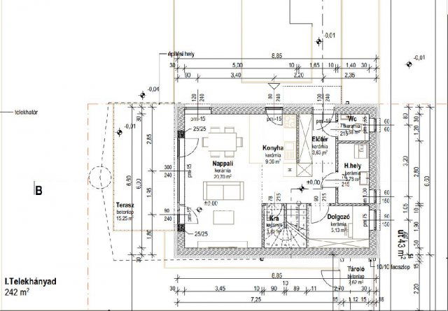
Hasznos alapterület: 90 nm | 4 + 1 szoba.
Telekterület: 315 nm.
Kétszintes, újépítésű családi ház.
Energetikai besorolás: A++.
Fűtés: geotermikus vagy hőszivattyú + padlófűtés, melegvíz ellátással.

Győr-Moson-Sopron megye egyik dinamikusan fejlődő, kedvelt környékén kínálok eladásra egy 2025-ben épülő, prémium műszaki tartalommal rendelkező, energiatakarékos családi házat.
A modern technológiáknak és a geotermikus fűtésnek köszönhetően minimális rezsiköltség, kimagasló komfort és hosszú távú értékállóság jellemzi az ingatlant.

Főbb jellemzők:
90 nm nettó alapterület.
315 nm saját telek.
4+1 szoba - ideális nagyobb családoknak vagy otthoni irodához.
Új építésű, modern, minőségi kivitelezés.
Geotermikus hűtés-fűtés vagy hőszivattyús rendszer.
Padlófűtés a teljes ingatlanban.
Geotermikus termálvíz vagy Hőszivattyú biztosítja a melegvizet is.
A++ energiaosztály - kiemelkedően alacsony fenntartási költségek.
Kétszintes modern elrendezés.

Geotermikus fűtés:
Az ingatlan különlegessége a Villapark saját, 300 méter mélyről feltörő, természetes ásványvíz minőségű termálvize, amely nemcsak a padlófűtést, hanem a teljes melegvíz-ellátást is biztosítja. Környezetbarát, fenntartható, és a legmagasabb kényelmi szintet nyújta - kompromisszumok nélkül.

Elhelyezkedés:
A fejlesztés csendes, rendezett környezetben valósul meg, kiváló közlekedéssel és minden szükséges szolgáltatás közelségével. A környék ideális családoknak, határ közeli munkavállalóknak és azoknak, akik természetközeli életre vágynak, ez által értékálló, korszerű otthont keresnek.

Az OTP Ingatlanpont előnyei:
CSOK és 3%-os OTTHON START PROGRAM igénybe vehető.
Teljes körű ügyintézés.
Kedvezményes OTP Banki hitel- és támogatási lehetőségek.
Gyors, rugalmas ügyintézés.
Megbízható ügyvédi háttér.

Ne maradjon le erről a kiemelkedő lehetőségről!
Hívjon bizalommal időpont egyeztetésért vagy további információért - akár hétvégén is rendelkezésre állok.

Referenciaszám: M317920

Hirdetés feltöltve: 2025. 11. 26. Utoljára módosítva: 2025. 11. 26.

Az ingatlan elhelyezkedése

Cím: Máriakálnok

Eladó családi házak a környékről

Eladó családi ház
Eladó családi ház

Máriakálnok

118 M Ft
5 szoba
120 m2
Eladó családi ház
Eladó családi ház

Máriakálnok

74.9 M Ft
3 + 1 szoba
91 m2
Eladó családi ház
Eladó családi ház

Máriakálnok

57.5 M Ft
3 szoba
70 m2
Eladó családi ház
Eladó családi ház

Győrújbarát

135.9 M Ft
4 szoba
148 m2
Eladó családi ház
Eladó családi ház

Máriakálnok

118 M Ft
5 szoba
120 m2
Eladó családi ház
Eladó családi ház

Máriakálnok

79.9 M Ft
4 szoba
98 m2
Eladó családi ház
Eladó családi ház

Máriakálnok

73.85 M Ft
5 szoba
90 m2
Eladó családi ház
Eladó családi ház

Máriakálnok

85 M Ft
3 szoba
128 m2
Eladó családi ház
Eladó családi ház

Máriakálnok

73.85 M Ft
5 szoba
90 m2
Eladó családi ház
Eladó családi ház

Sopron

189.9 M Ft
8 szoba
280 m2
Eladó családi ház
Eladó családi ház

Máriakálnok

71.5 M Ft
3 szoba
90 m2
Eladó családi ház
Eladó családi ház

Győrság

93.45 M Ft
4 szoba
96 m2
Eladó családi ház
Eladó családi ház

Máriakálnok

111.9 M Ft
7 szoba
270 m2
Eladó családi ház
Eladó családi ház

Győrújbarát

154.5 M Ft
4 szoba
230 m2
Eladó családi ház
Eladó családi ház

Győrszemere

90.588 M Ft
5 szoba
95 m2
Eladó családi ház
Eladó családi ház

Fertőszéplak

99 M Ft
4 szoba
98 m2
Eladó családi ház
Eladó családi ház

Nagycenk

64.8 M Ft
3 + 1 szoba
76 m2
Eladó családi ház
Eladó családi ház

Zsira

110.9 M Ft
8 szoba
200 m2
Eladó családi ház
Eladó családi ház

Sopron

130 M Ft
3 szoba
140 m2
Eladó családi ház
Eladó családi ház

Sopron

170 M Ft
4 szoba
122 m2
Eladó családi ház
Eladó családi ház

Jánossomorja

611.212 M Ft
12 szoba
405 m2
Eladó családi ház
Eladó családi ház

Enese

64.664 M Ft
3 szoba
75 m2
Eladó családi ház
Eladó családi ház

Nagycenk

80.6 M Ft
4 szoba
106 m2
Eladó családi ház
Eladó családi ház

Máriakálnok

185 M Ft
1440 m²
201 m2

Falusi CSOK ingatlanok

Eladó családi ház
Eladó családi ház

Vajszló

18 M Ft
2 szoba
91 m2
Eladó családi ház
Eladó családi ház

Porva

74.6 M Ft
3 szoba
115 m2
Eladó családi ház
Eladó családi ház

Balatonfenyves

430 M Ft
4 szoba
274 m2
Eladó családi ház
Eladó családi ház

Bucsa

23 M Ft
3 szoba
90 m2
Eladó családi ház
Eladó családi ház

Szakmár

12.9 M Ft
3 + 1 szoba
90 m2
Eladó családi ház
Eladó családi ház

Szulok, Béke utca

31.9 M Ft
3 szoba
125 m2
Eladó családi ház
Eladó családi ház

Magyarszék

48.5 M Ft
3 + 1 szoba
86 m2
Eladó családi ház
Eladó családi ház

Nagybörzsöny

79.9 M Ft
4 szoba
149 m2