Astora Art House

Eladó családi ház
Mád

Figyelem!

Ez az ingatlan a 2019.07.01-től induló falusi CSOK által támogatott településen található

+ 17 kép 1/20
53 000 000 Ft53 M Ft 158 683 Ft/m2
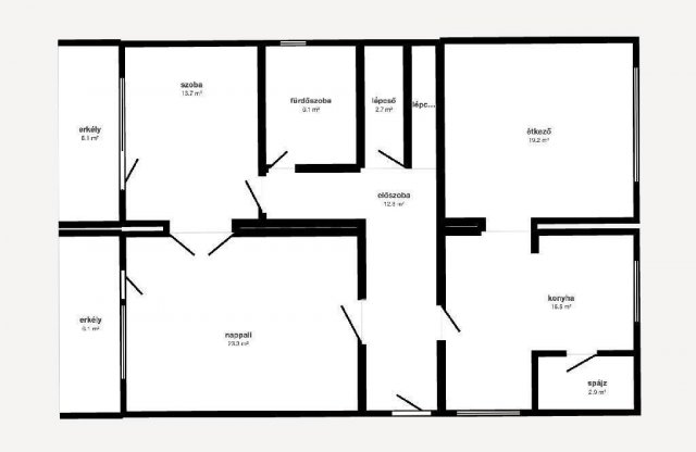
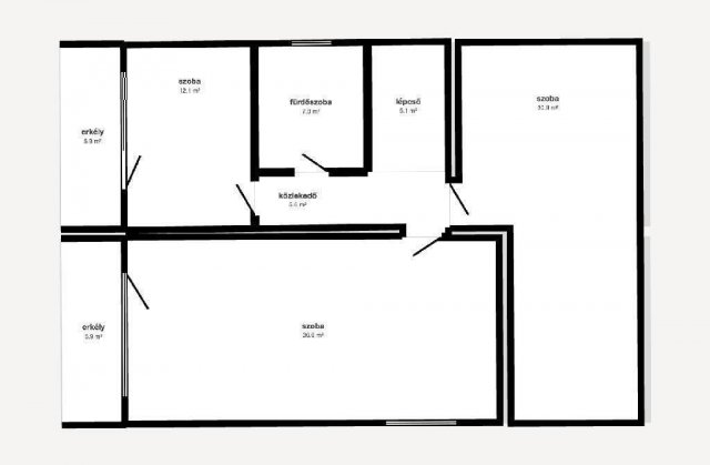
4 + 2 szoba
334 m²
építés éve:1986

Részletes adatok

Állapot: Átlagos
Telekméret: 756 m2
Fűtés: Gázkazán
Komfort: Duplakomfortos
Energetikai besorolás: Nem adta meg a hirdető

Az OTP Bank lakáshitel ajánlataFizetett hirdetés

+36 70 316
Pannuska Marcell
OTPip - Nyíregyháza Sólyom utca 4 - OTP Ingatlanpont Iroda

Érdekel az OTP Bank kedvezményes lakáshitel ajánlata? *

* A kérdésre „Igen” válasz bejelölése esetén, az „Üzenet küldése” gombra kattintva kijelentem, hogy az OTP Bank Nyrt. Adatkezelési tájékoztatójának tartalmát megismertem és tudomásul vettem.

Eladó családi ház leírása

Mádon nagyon jó lakókörnyezetben 2 szintes családi ház eladó, 2 garázzsal, kazánházzal borospincével. Mád nagyon felkapott település lett Hegyalján. Az ingatlan 756 m2-es telken található, lakóterülete 207 m2. Egyéb lakhatáshoz tartozó területek: pince, 2 db garázs, kazánház, alapterülete összesen 127 m2. Mádon minden megtalálható ami a napi élethez szükséges. Legközelebbi város 10 km-re Szerencs, ahol bevásárló központok, orvosi rendelők, több középiskola, bölcsődék, óvodák található. A ház alkalmas lehet magánszállás, kisebb panzió kialakítására, vagy akár vállalkozás székhelyének, irodának, a jó megközelíthetőség miatt, vagy akár több generációnak is alkalmas lakhatásra. Szomszédok rendesek, csendesek. A ház tehermentes. Érdeklődés esetén kérem az alábbi referencia számra hivatkozzon: M316223
OTP Banki hátterünknek köszönhetően finanszírozási igényekben (pl. Otthon Start Hitelprogram, Babaváró, Falusi CSOK, CSOK Plusz, Lakáshitel, Személyi kölcsön stb.), illetve biztosítások tekintetében is díjmentesen, soron kívüli ügyintézéssel segítem ügyfeleim!
Jöjjön nézzük meg együtt!

Az energetikai tanúsítvány készítése folyamatban van, amint rendelkezésre áll, úgy azzal a hirdetés frissítésre kerül.

Referencia szám: M316223

Hirdetés feltöltve: 2026. 04. 17. Utoljára módosítva: 2026. 05. 22.

Az ingatlan elhelyezkedése

Cím: Mád

Eladó ingatlanok a környékről

Rudabánya
Eladó családi ház

Rudabánya

19.9 M Ft
5 szoba
140 m²
Ózd
Eladó családi ház

Ózd

7.3 M Ft
3 szoba
125 m²
Rátka
Eladó családi ház

Rátka

41.9 M Ft
1 + 1 szoba
87 m²
Mád, Kazinczy utca 7
Eladó családi ház

Mád

90 M Ft
2 + 1 szoba
405 m²
Miskolc
Eladó panellakás

Miskolc

28.5 M Ft
2 szoba
51 m²
Miskolc
Eladó családi ház

Miskolc

54.99 M Ft
4 szoba
103 m²
Putnok
Eladó családi ház

Putnok

11 M Ft
3 szoba
79 m²
Mezőzombor
Eladó családi ház

Mezőzombor

13.8 M Ft
2 + 1 szoba
81 m²
Szikszó
Eladó családi ház

Szikszó

89.9 M Ft
3 szoba
100 m²
Gönc, Kossuth Lajos utca
Eladó családi ház

Gönc

26 M Ft
2 + 1 szoba
130 m²
Tiszaújváros
Eladó családi ház

Tiszaújváros

125 M Ft
5 szoba
208 m²
Sátoraljaújhely, Aradi vértanúk útja
Eladó családi ház

Sátoraljaújhely

57 M Ft
6 szoba
310 m²
Mád
Eladó családi ház

Mád

59.9 M Ft
3 szoba
130 m²
Ózd
Eladó családi ház

Ózd

25.99 M Ft
4 szoba
198 m²
Szerencs
Eladó családi ház

Szerencs

38.9 M Ft
2 szoba
63 m²
Mád
Eladó családi ház

Mád

48 M Ft
3 szoba
181 m²
Kány
Eladó hotel

Kány

82 M Ft
5 szoba
106 m²
Ózd
Eladó családi ház

Ózd

15 M Ft
7 szoba
225 m²
Miskolc
Eladó családi ház

Miskolc

110 M Ft
6 szoba
199 m²
Mád
Eladó családi ház

Mád

19.9 M Ft
1 + 2 szoba
54 m²
Alsóvadász
Eladó családi ház

Alsóvadász

14.5 M Ft
2 + 1 szoba
93 m²
Mád
Eladó családi ház

Mád

53 M Ft
4 + 2 szoba
334 m²
Mád
Eladó családi ház

Mád

53 M Ft
4 + 2 szoba
334 m²
Mád
Eladó családi ház

Mád

31.99 M Ft
2 + 1 szoba
92 m²

Falusi CSOK ingatlanok

Szászvár
Eladó családi ház

Szászvár

26.9 M Ft
2 szoba
70 m²
Újkígyós
Eladó családi ház

Újkígyós

29.9 M Ft
4 szoba
145 m²
Berzence
Eladó családi ház

Berzence

40 M Ft
3 szoba
233 m²
Örkény
Eladó családi ház

Örkény

34 M Ft
2 + 1 szoba
85 m²
Nyáregyháza
Eladó ikerház

Nyáregyháza

75.9 M Ft
4 szoba
0 m²
Ceglédbercel
Eladó családi ház

Ceglédbercel

89 M Ft
4 szoba
135 m²
Herend
Eladó családi ház

Herend

144.9 M Ft
7 szoba
285 m²
Jászkarajenő
Eladó családi ház

Jászkarajenő

17 M Ft
3 szoba
81 m²

Falusi CSOK ingatlanok

Fertőd
Eladó családi ház

Fertőd

140.91 M Ft
4 + 2 szoba
190 m²
Balatonszemes
Eladó téglalakás

Balatonszemes

125.2 M Ft
2 szoba
50 m²
Nyáregyháza
Eladó ikerház

Nyáregyháza

75.9 M Ft
4 szoba
0 m²
Tass
Eladó családi ház

Tass

37 M Ft
2 szoba
75 m²
Balatonkenese
Eladó családi ház

Balatonkenese

165.7 M Ft
2 + 4 szoba
179 m²
Gádoros
Eladó családi ház

Gádoros

25.5 M Ft
4 szoba
140 m²
Szászvár
Eladó családi ház

Szászvár

26.9 M Ft
2 szoba
70 m²
Szalkszentmárton
Eladó családi ház

Szalkszentmárton

145 M Ft
5 szoba
620 m²