Avico Greentop

Eladó családi ház
Lőrinci

+ 11 kép 1/14
38 500 000 Ft38.5 M Ft 574 627 Ft/m2
3 szoba
67 m²
építés éve:2004

Részletes adatok

Telekméret: 115 m2
Fűtés: Egyéb
Parkolás: Garázs
Közmű: Víz, Gáz, Villany, Csatorna
Komfort: Összkomfortos
Energetikai besorolás: Nem adta meg a hirdető

Az OTP Bank lakáshitel ajánlataFizetett hirdetés

+36 30 186
Fekécs Nóra
Gyémánt Ingatlaniroda

Érdekel az OTP Bank kedvezményes lakáshitel ajánlata? *

* A kérdésre „Igen” válasz bejelölése esetén, az „Üzenet küldése” gombra kattintva kijelentem, hogy az OTP Bank Nyrt. Adatkezelési tájékoztatójának tartalmát megismertem és tudomásul vettem.

Eladó családi ház leírása

Lőrinciben, forgalmas főút mellett kínálunk megvételre egy különleges adottságokkal rendelkező ingatlant, amely két különálló családi házból áll egy 735 nm-es telken. Az ingatlan elhelyezkedése és kialakítása miatt ideális választás befektetőknek, többgenerációs családoknak, illetve azoknak, akik lakhatásukat saját vállalkozásukkal szeretnék összekapcsolni.
A két ingatlan egyben és külön is megvásárolható, így befektetési szempontból is rugalmas lehetőséget kínál: akár bérbeadásra, akár üzleti célú hasznosításra is kiváló választás.
Az ingatlan kiváló láthatóságú, jól megközelíthető helyen található, közvetlen kapcsolattal a négysávos 21-es főúthoz, valamint mindössze néhány perc autóútra a Hatvani csomóponttól, ami üzleti szempontból is kiemelkedő értéket képvisel.
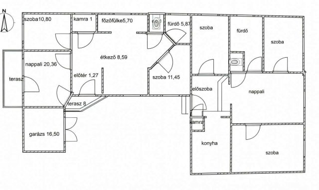
1. épület – 67 nm-es családi ház (2004)
A 2004-ben téglából épült, 67 nm-es családi ház elrendezése: 2 szoba, nappali, étkező-konyha, fürdőszoba és külön WC. Fűtése vízteres kandallóval megoldott, jelenleg gázóra nincs. Az épület fa nyílászárókkal rendelkezik, a homlokzat külső vakolatot kapott, festés és igény szerint szigetelés javasolt. Az ingatlanhoz 16,5 nm-es garázs is tartozik.
Irányár: 38,5 millió Ft.
2. épület – 93 nm-es felújított családi ház
A telken található egy 93 nm-es, téglából és blokkból épült családi ház, amely 2002-ben teljes körű felújításon esett át. A felújítás során megtörtént a tetőcsere, a villamoshálózat korszerűsítése, a fürdőszoba felújítása, a nyílászárók cseréje, a fűtés korszerűsítése, a hideg- és melegburkolatok cseréje, valamint a külső homlokzat szigetelése és színezése. Elrendezése: 3 szoba, nappali, konyha, előszoba, kamra, fürdőszoba és külön WC. A ház részben alápincézett, klímával felszerelt, fűtése vegyestüzelésű kazánnal és gázcirkóval is megoldható, valamint teljes közművel rendelkezik. Az ingatlan részben bútorozva kerül értékesítésre.
Irányár: 54 millió Ft.
A két ház közös udvari bejárattal rendelkezik, és a nagy forgalmú főút melletti elhelyezkedésnek köszönhetően vállalkozási célra is kiváló lehetőséget kínál. Az egyik épület könnyen átalakítható üzlethelyiséggé, például cukrászda, kávézó, szépségszalon, fodrászat, masszázs- vagy egészségügyi rendelő, iroda, bemutatóterem vagy webshop átvételi pont céljára. További előny, hogy az utcafront felől külön bejárat is kialakítható, így az üzlet és a lakótér teljesen elkülöníthető.
Ez az ingatlan kiváló befektetési lehetőség, hiszen egyszerre kínál lakhatási, bérbeadási és üzleti hasznosítási potenciált egy jól látható, forgalmas elhelyezkedésű telken.

Hirdetés feltöltve: 2026. 04. 02. Utoljára módosítva: 2026. 05. 12.

3 szobás családi házak ára Lőrinciben

Ebből az összehasonlításból megtudhatod, hogyan viszonyul a lakás ára a környékbeli családi házak átlagos árához. Ez nem azt jelenti, hogy ennyivel olcsóbb vagy drágább, mint amennyit a lakás ér, hanem hogy ennyivel tér el a környékbeli átlagtól.

Ennek a m² ára
Lőrinci m² ár
575 e Ft
132 e Ft -335%
Ennek az ára
Lőrinci átlagár
38.5 M Ft m Ft
12.8 m Ft -200%

Az ingatlan elhelyezkedése

Cím: Lőrinci

Eladó családi házak a környékről

Gyöngyös
Eladó családi ház

Gyöngyös

28.5 M Ft
1 + 1 szoba
62 m²
Hatvan
Eladó családi ház

Hatvan

97.95 M Ft
5 + 2 szoba
253 m²
Andornaktálya
Eladó családi ház

Andornaktálya

42 M Ft
4 szoba
116 m²
Szilvásvárad
Eladó családi ház

Szilvásvárad

92 M Ft
4 + 1 szoba
220 m²
Lőrinci
Eladó családi ház

Lőrinci

280 M Ft
17 szoba
2868 m²
Parád
Eladó családi ház

Parád

47 M Ft
8 + 5 szoba
383 m²
Mátraderecske
Eladó családi ház

Mátraderecske

74 M Ft
4 szoba
200 m²
Lőrinci
Eladó családi ház

Lőrinci

24.5 M Ft
2 szoba
62 m²
Lőrinci
Eladó családi ház

Lőrinci

48.2 M Ft
4 szoba
100 m²
Szarvaskő
Eladó családi ház

Szarvaskő

230 M Ft
5 szoba
424 m²
Gyöngyös
Eladó családi ház

Gyöngyös

940 M Ft
30 szoba
4000 m²
Andornaktálya
Eladó családi ház

Andornaktálya

42.5 M Ft
3 szoba
115 m²
Lőrinci
Eladó családi ház

Lőrinci

42.9 M Ft
4 szoba
200 m²
Lőrinci
Eladó családi ház

Lőrinci

49.9 M Ft
3 szoba
98 m²
Lőrinci
Eladó családi ház

Lőrinci

24.5 M Ft
2 szoba
62 m²
Lőrinci
Eladó családi ház

Lőrinci

55.9 M Ft
3 szoba
94 m²
Lőrinci
Eladó családi ház

Lőrinci

49.9 M Ft
3 szoba
92 m²
Mátraszentimre
Eladó családi ház

Mátraszentimre

250 M Ft
8 szoba
300 m²
Lőrinci
Eladó családi ház

Lőrinci

24.5 M Ft
2 szoba
62 m²
Bükkszék
Eladó családi ház

Bükkszék

69 M Ft
5 szoba
240 m²
Bodony
Eladó családi ház

Bodony

24.5 M Ft
3 szoba
95 m²
Lőrinci
Eladó családi ház

Lőrinci

50 M Ft
3 szoba
182 m²
Bükkszék
Eladó családi ház

Bükkszék

78.9 M Ft
2 + 1 szoba
160 m²
Karácsond
Eladó családi ház

Karácsond

29.5 M Ft
3 szoba
88 m²

Falusi CSOK ingatlanok

Csurgó
Eladó téglalakás

Csurgó

12.5 M Ft
2 szoba
54 m²
Tótszentmárton
Eladó családi ház

Tótszentmárton

31.5 M Ft
5 szoba
130 m²
Zákányfalu
Eladó családi ház

Zákányfalu

14.5 M Ft
2 szoba
80 m²
Kaposgyarmat
Eladó családi ház

Kaposgyarmat

695 M Ft
6 szoba
610 m²
Márianosztra
Eladó családi ház

Márianosztra

38 M Ft
4 szoba
75 m²
Röszke
Eladó családi ház

Röszke

69.99 M Ft
4 szoba
99 m²
Zalaszentiván
Eladó ikerház

Zalaszentiván

54.99 M Ft
5 szoba
160 m²
Nagyhegyes
Eladó családi ház

Nagyhegyes

92900 M Ft
3 + 1 szoba
120 m²