Astora Art House

Eladó családi ház
Lepsény

Figyelem!

Ez az ingatlan a 2019.07.01-től induló falusi CSOK által támogatott településen található

+ 14 kép 1/17
72 000 000 Ft72 M Ft 857 143 Ft/m2
2 szoba
84 m²
építés éve:1960

Részletes adatok

Állapot: Felújított
Telekméret: 2130 m2
Fűtés: Elektromos
Energetikai besorolás: Nem adta meg a hirdető

Az OTP Bank lakáshitel ajánlataFizetett hirdetés

+36 70 228
Forgács Martin
referens

Érdekel az OTP Bank kedvezményes lakáshitel ajánlata? *

* A kérdésre „Igen” válasz bejelölése esetén, az „Üzenet küldése” gombra kattintva kijelentem, hogy az OTP Bank Nyrt. Adatkezelési tájékoztatójának tartalmát megismertem és tudomásul vettem.

Eladó családi ház leírása

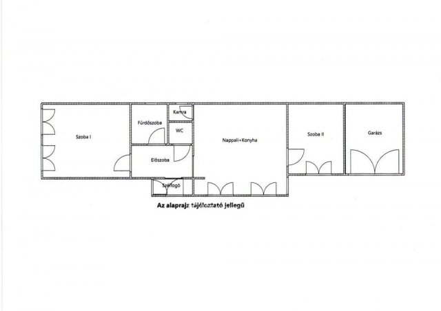
Eladó Fejér vármegyében, Lepsény központjában egy 82 nm-es, napfényes, felújított családi ház egy 2130 nm-es tágas telken. A ház praktikus elrendezésű: 2 külön nyíló szoba, tágas nappali-konyha és fürdőszoba. A nagy ablakoknak köszönhetően minden helyiség világos, barátságos hangulatú.

A műszaki tartalom kiemelkedő: új tető és szigetelés, napelemes rendszer az alacsony rezsiért, valamint többféle fűtési lehetőség. A telek számos lehetőséget rejt: kertészkedés, önellátó gazdálkodás, pihenőkert vagy akár további bővítés.

Lepsény jó közlekedésű település: az M7-es autópálya és a 7-es főút révén könnyen elérhető Székesfehérvár, Siófok és Budapest (kb. 1 óra). A környéken óvoda, iskola, boltok és orvosi ellátás biztosítja a kényelmes mindennapokat.

Ajánlott: családoknak nagy kerttel, nyugalmat keresőknek, gazdálkodásban gondolkodóknak, illetve befektetőknek.

Ne hagyja ki! További információért és megtekintésért keressen bizalommal!

Hirdetés feltöltve: 2026. 04. 01. Utoljára módosítva: 2026. 05. 12.

Az ingatlan elhelyezkedése

Cím: Lepsény

Eladó családi házak a környékről

Szabadbattyán
Eladó családi ház

Szabadbattyán

357.518 M Ft
9 + 2 szoba
1053 m²
Etyek
Eladó családi ház

Etyek

160 M Ft
6 szoba
228 m²
Bakonycsernye
Eladó családi ház

Bakonycsernye

39 M Ft
3 szoba
350 m²
Iváncsa, Táncsics Mihály utca
Eladó családi ház

Iváncsa

86 M Ft
4 szoba
120 m²
Lepsény
Eladó családi ház

Lepsény

220 M Ft
5 szoba
280 m²
Lepsény
Eladó családi ház

Lepsény

120 M Ft
5 szoba
200 m²
Mór
Eladó családi ház

Mór

110 M Ft
12 szoba
340 m²
Gánt, Gánti út
Eladó családi ház

Gánt

29.9 M Ft
2 + 1 szoba
40 m²
Lepsény
Eladó családi ház

Lepsény

120 M Ft
4 szoba
200 m²
Székesfehérvár
Eladó családi ház

Székesfehérvár

59 M Ft
3 szoba
100 m²
Velence
Eladó családi ház

Velence

80 M Ft
6 szoba
200 m²
Adony
Eladó családi ház

Adony

8 M Ft
2 szoba
30 m²
Velence, Liget utca
Eladó családi ház

Velence

149 M Ft
2 + 2 szoba
150 m²
Lepsény
Eladó családi ház

Lepsény

84.9 M Ft
4 szoba
102 m²
Lepsény
Eladó családi ház

Lepsény

55 M Ft
3 szoba
120 m²
Alcsútdoboz, Szabadság utca
Eladó családi ház

Alcsútdoboz

320 M Ft
12 szoba
620 m²
Gárdony, Gárdonyi Géza utca
Eladó családi ház

Gárdony

59 M Ft
3 szoba
100 m²
Lepsény, Róka sétány
Eladó családi ház

Lepsény

64.9 M Ft
5 + 1 szoba
203 m²
Bicske, Baboshegy
Eladó családi ház

Bicske

26.9 M Ft
1 szoba
30 m²
Tabajd
Eladó családi ház

Tabajd

22 M Ft
3 szoba
75 m²
Kulcs
Eladó családi ház

Kulcs

180 M Ft
8 szoba
167 m²
Lepsény
Eladó családi ház

Lepsény

340 M Ft
7 szoba
347 m²
Lepsény
Eladó családi ház

Lepsény

70.9 M Ft
3 szoba
80 m²
Felcsút, Rákóczi Ferenc utca
Eladó családi ház

Felcsút

32 M Ft
2 + 1 szoba
55 m²

Falusi CSOK ingatlanok

Balatonszemes
Eladó téglalakás

Balatonszemes

125.2 M Ft
2 szoba
50 m²
Törtel
Eladó családi ház

Törtel

32.5 M Ft
3 szoba
66 m²
Pilisszentkereszt
Eladó családi ház

Pilisszentkereszt

68.9 M Ft
2 szoba
50 m²
Vértesboglár, Dózsa utca
Eladó családi ház

Vértesboglár

99 M Ft
4 szoba
110 m²
Bag
Eladó családi ház

Bag

16.9 M Ft
6 szoba
160 m²
Mesteri
Eladó családi ház

Mesteri

29.7 M Ft
4 szoba
140 m²
Tápióság
Eladó családi ház

Tápióság

30 M Ft
3 szoba
105 m²
Ceglédbercel
Eladó családi ház

Ceglédbercel

89 M Ft
4 szoba
135 m²

Falusi CSOK ingatlanok

Hahót
Eladó családi ház

Hahót

48 M Ft
4 + 1 szoba
110 m²
Fertőd
Eladó családi ház

Fertőd

140.91 M Ft
4 + 2 szoba
190 m²
Balatonszemes
Eladó téglalakás

Balatonszemes

91.5 M Ft
2 szoba
0 m²
Zalaszentiván
Eladó ikerház

Zalaszentiván

54.99 M Ft
5 szoba
160 m²
Mikepércs
Eladó családi ház

Mikepércs

56 M Ft
3 + 1 szoba
87 m²
Tass
Eladó családi ház

Tass

37 M Ft
2 szoba
75 m²
Egerbakta
Eladó családi ház

Egerbakta

43.9 M Ft
5 + 1 szoba
160 m²
Szob
Eladó sorház

Szob

16 M Ft
2 szoba
45 m²