Eladó családi ház
Kunsziget 
Részletes adatok
Az OTP Bank lakáshitel ajánlataFizetett hirdetés
Induló törlesztőrészlet
101 262 Ft /hóTörlesztőrészlet a 13. hónaptól
129 106 Ft /hóInduló törlesztőrészlet
135 016 Ft /hóTörlesztőrészlet a 13. hónaptól
172 142 Ft /hóA tájékoztatás nem teljes körű és nem minősül ajánlattételnek. Az OTP Évnyerő Lakáshitelei 1 éves türelmi idős kölcsönök, amellyel az első 12 hónapban alacsonyabb a havi törlesztőrészlet. A tőke törlesztését a 13. hónaptól kell megkezdeni.
Eladó családi ház leírása
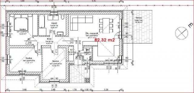
Kunsziget településen új építésű családi házas környezetben, 760 nm alapterületű összközműves telken (víz, villany, gáz), új építésű emelt szintű szerkezet kész készültséggel családi ház leköthető. A település kiváló infrastruktúrával rendelkezik (bölcsőde, óvoda, iskola), Győrtől 18 km távolságra van. A nappali+3 hálószobával rendelkező ház nettó alapterülete 82,32 nm+15 nm terasszal. A hirdetett ház falazata tégla, homlokzatvakolat DRYWIT rendszerrel, 15 cm hőszigeteléssel. Külső nyílászárók: 6 légkamrás, 3 rétegű üvegezésű műanyag ablakok, biztonsági ajtóval. A fűtés korszerű technológiával, hőszivattyús padló / mennyezet hűtés / fűtés. A ház fűtés kész állapotú átadására a szerződés megkötésétől számított 9 - hónap.
Egyedi igényeket is figyelembe véve, nagyobb ház esetén kb. bruttó 500.000.-Ft/nm felárral lehet kalkulálni. Az ár tartalmazza a telek árát is. Amennyiben a hirdetés felkeltette érdeklődését és bővebb információt szeretne, keressen bizalommal elérhetőségeimen!
Állok rendelkezésre ingatlan eladás-vétel, pénzügyi termékek, hitel, CSOK ügyintézésében. Több százas ingatlanállományból biztos megtalálom az Ön igényeinek megfelelőt! Hívjon bizalommal: Komádi Csaba +36706229209
Referencia szám: M252729-ZE
Hirdetés feltöltve: 2025. 10. 31. Utoljára módosítva: 2025. 10. 31.
Az ingatlan elhelyezkedése
Cím: Kunsziget
 
 
 
 
 
 
 
 
 
 
 
 
 
 
 
 
 
 
 
 
 
 
 
 
 
 
 
 
 
 
 
 
