Kedves Felhasználónk! Rendszerfrissítés miatt az oldalunk 2026. február 9-én 12 órától várhatóan 20 óráig nem lesz elérhető. Köszönjük megértésed!
Oasis Residence

Eladó családi ház
Kunágota

Figyelem!

Ez az ingatlan a 2019.07.01-től induló falusi CSOK által támogatott településen található

+ 17 kép 1/20
13 200 000 Ft13.2 M Ft 114 783 Ft/m2
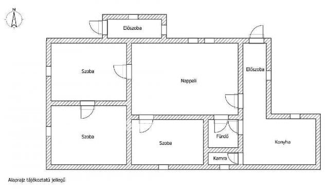
4 szoba
115 m2
építés éve:1950

Részletes adatok

Állapot: Átlagos
Telekméret: 2089 m2
Fűtés: Gázkazán
Energetikai besorolás: Nem adta meg a hirdető

Az OTP Bank lakáshitel ajánlataFizetett hirdetés

+36 70 788
Pócsik Attila
OTP Ingatlanpont

Érdekel az OTP Bank kedvezményes lakáshitel ajánlata? *

* A kérdésre „Igen” válasz bejelölése esetén, az „Üzenet küldése” gombra kattintva kijelentem, hogy az OTP Bank Nyrt. Adatkezelési tájékoztatójának tartalmát megismertem és tudomásul vettem.

Eladó családi ház leírása

Tágas otthon Kunágotán nagy telekkel, tehermentes, azonnal költözhető! Ha vidéki nyugalomra vágyik, ez az ingatlan Önre vár! Eladásra kínálunk, Békés vármegyébe, egy 115 nm-es családi házat Kunágotán, csendes utcában, a központhoz közel. A tágas, 2089 nm-es telek számos lehetőséget rejt magában. A melléképületben nyárikonyha, több tárolóhelyiség, garázs, valamint állattartásra kialakított disznóólak és tyúkólak, disznóvágásra alkalmas terek találhatóak. A telek másik felében, gyümölcsfák vannak, kertészkedésre, gazdálkodásra tökéletesen alkalmas. A ház három szobával, nappalival, konyhával, fürdőszobával, kamrával és két előszobával rendelkezik, így ideális lehet nagyobb családok számára is. A mindennapok kényelméről gázkazános fűtés, bojleres meleg víz és klíma gondoskodik, így télen-nyáron kellemes hőmérséklet várja. Az ingatlan költözhető állapotú, csupán egy tisztasági festés után máris új élet költözhet a falak közé. Ráadásul tehermentes és hitelezhető, így akár azonnal belevághat új otthona megteremtésébe. Ha Ön is érzi, hogy ez lehet az a hely, ahol igazán otthonra találhat, hívjon bizalommal! Az OTP Ingatlanpont a banki háttérrel eladóink, és vevőink igényeit teljeskörűen ki tudja szolgálni, az eladástól a vevői finanszírozásig és az ingatlan birtokbaadásáig. Hitel igénylés esetén akár egyedi kamatkedvezménnyel, jogosultság esetén az állami támogatásokhoz kapcsolódó felvilágosítással, teljeskörű pénzügyi tanácsadással és ügyintézéssel állunk ügyfeleink rendelkezésére. A pénzügyi tanácsadás és ügyintézői szolgáltatásunk díjmentes. ***VÁLASSZUK KI EGYÜTT AZ ÖNNEK LEGMEGFELELŐBB AJÁNLATOT! BANKI SORBAN ÁLLÁS NÉLKÜL! ***

Referencia szám: M307699-ZE

Hirdetés feltöltve: 2026. 02. 07. Utoljára módosítva: 2026. 02. 07.

Az ingatlan elhelyezkedése

Cím: Kunágota

Eladó ingatlanok a környékről

Eladó családi ház
Eladó családi ház

Sarkad

16.95 M Ft
9 szoba
170 m2
Eladó családi ház
Eladó családi ház

Szarvas

7 M Ft
2 szoba
57 m2
Eladó családi ház
Eladó családi ház

Gyula, Vár utca

85.9 M Ft
4 szoba
180 m2
Eladó családi ház
Eladó családi ház

Orosháza

79.99 M Ft
7 szoba
294 m2
Eladó családi ház
Eladó családi ház

Sarkad

15 M Ft
3 szoba
110 m2
Eladó családi ház
Eladó családi ház

Murony

16.99 M Ft
2 szoba
85 m2
Eladó családi ház
Eladó családi ház

Dévaványa

11.9 M Ft
2 szoba
78 m2
Eladó családi ház
Eladó családi ház

Mezőkovácsháza

52.9 M Ft
7 szoba
400 m2
Eladó családi ház
Eladó családi ház

Kunágota

8.5 M Ft
3 szoba
75 m2
Eladó családi ház
Eladó családi ház

Kunágota

15.99 M Ft
2 szoba
100 m2
Eladó nyaraló
Eladó nyaraló

Gyula

21 M Ft
2 szoba
53 m2
Eladó családi ház
Eladó családi ház

Doboz

7.5 M Ft
4 szoba
100 m2
Eladó családi ház
Eladó családi ház

Sarkad

24.9 M Ft
4 szoba
135 m2
Eladó családi ház
Eladó családi ház

Kunágota

8 M Ft
2 szoba
77 m2
Eladó ikerház
Eladó ikerház

Orosháza

22 M Ft
2 szoba
97 m2
Eladó téglalakás
Eladó téglalakás

Mezőhegyes

6.9 M Ft
2 szoba
71 m2
Eladó családi ház
Eladó családi ház

Békéscsaba

35.9 M Ft
3 szoba
130 m2
Eladó ipari ingatlan
Eladó ipari ingatlan

Orosháza

115 M Ft
1800 m²
1200 m2
Eladó családi ház
Eladó családi ház

Békéscsaba

86.39 M Ft
4 szoba
106 m2
Eladó családi ház
Eladó családi ház

Csanádapáca

15.7 M Ft
5 szoba
131 m2
Eladó panellakás
Eladó panellakás

Mezőhegyes

16.5 M Ft
3 szoba
56 m2
Eladó családi ház
Eladó családi ház

Tótkomlós

13 M Ft
3 szoba
100 m2
Eladó családi ház
Eladó családi ház

Gyomaendrőd

6.8 M Ft
1 szoba
60 m2
Eladó családi ház
Eladó családi ház

Mezőkovácsháza

4.5 M Ft
3 + 2 szoba
119 m2

Falusi CSOK ingatlanok

Eladó családi ház
Eladó családi ház

Bátmonostor

22.9 M Ft
3 szoba
82 m2
Eladó családi ház
Eladó családi ház

Recsk

59 M Ft
2 szoba
70 m2
Eladó téglalakás
Eladó téglalakás

Balatonszemes

119.9 M Ft
2 szoba
81 m2
Eladó családi ház
Eladó családi ház

Gátér, Dózsa György utca 43

21.62 M Ft
1 + 1 szoba
153 m2
Eladó családi ház
Eladó családi ház

Bakonycsernye

39 M Ft
3 szoba
350 m2
Eladó családi ház
Eladó családi ház

Csemő

36.6 M Ft
1 szoba
48 m2
Eladó ikerház
Eladó ikerház

Balatonakali

129 M Ft
4 szoba
145 m2
Eladó családi ház
Eladó családi ház

Gyöngyöshalász

59 M Ft
4 + 3 szoba
214 m2

Falusi CSOK ingatlanok

Eladó családi ház
Eladó családi ház

Lippó

10 M Ft
2 + 3 szoba
95 m2
Eladó családi ház
Eladó családi ház

Alattyán

45 M Ft
4 + 1 szoba
186 m2
Eladó családi ház
Eladó családi ház

Adásztevel

8.9 M Ft
2 szoba
63 m2
Eladó családi ház
Eladó családi ház

Galambok

118 M Ft
7 szoba
249 m2
Eladó családi ház
Eladó családi ház

Gyöngyöshalász

59 M Ft
4 + 3 szoba
214 m2
Eladó családi ház
Eladó családi ház

Kenyeri

21.8 M Ft
2 szoba
75 m2
Eladó családi ház
Eladó családi ház

Újhartyán

89.9 M Ft
4 szoba
99 m2
Eladó családi ház
Eladó családi ház

Tápiógyörgye

44.9 M Ft
3 szoba
105 m2