Metrodom

Eladó családi ház
Kunágota

Figyelem!

Ez az ingatlan a 2019.07.01-től induló falusi CSOK által támogatott településen található

+ 17 kép 1/20
13 200 000 Ft13.2 M Ft 114 783 Ft/m2
4 szoba
115 m2
építés éve:1950

Részletes adatok

Állapot: Átlagos
Telekméret: 2089 m2
Fűtés: Gázkazán
Energetikai besorolás: Nem adta meg a hirdető

Az OTP Bank lakáshitel ajánlataFizetett hirdetés

+36 70 455
Szlovák Ibolya
Csongrád OTP Ingatlanpont Iroda

Érdekel az OTP Bank kedvezményes lakáshitel ajánlata? *

* A kérdésre „Igen” válasz bejelölése esetén, az „Üzenet küldése” gombra kattintva kijelentem, hogy az OTP Bank Nyrt. Adatkezelési tájékoztatójának tartalmát megismertem és tudomásul vettem.

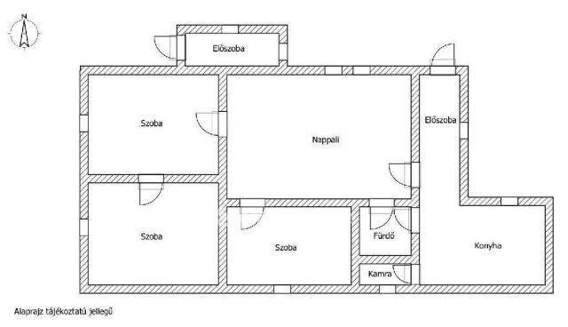
Eladó családi ház leírása

Tágas otthon Kunágotán nagy telekkel, tehermentes, azonnal költözhető! Ha vidéki nyugalomra vágyik, ez az ingatlan Önre vár! Eladásra kínálunk, Békés vármegyébe, egy 115 nm-es családi házat Kunágotán, csendes utcában, a központhoz közel. A tágas, 2089 nm-es telek számos lehetőséget rejt magában. A melléképületben nyárikonyha, több tárolóhelyiség, garázs, valamint állattartásra kialakított disznóólak és tyúkólak, disznóvágásra alkalmas terek találhatóak. A telek másik felében, gyümölcsfák vannak, kertészkedésre, gazdálkodásra tökéletesen alkalmas. A ház három szobával, nappalival, konyhával, fürdőszobával, kamrával és két előszobával rendelkezik, így ideális lehet nagyobb családok számára is. A mindennapok kényelméről gázkazános fűtés, bojleres meleg víz és klíma gondoskodik, így télen-nyáron kellemes hőmérséklet várja. Az ingatlan költözhető állapotú, csupán egy tisztasági festés után máris új élet költözhet a falak közé. Ráadásul tehermentes és hitelezhető, így akár azonnal belevághat új otthona megteremtésébe. Ha Ön is érzi, hogy ez lehet az a hely, ahol igazán otthonra találhat, hívjon bizalommal! Az OTP Ingatlanpont a banki háttérrel eladóink, és vevőink igényeit teljeskörűen ki tudja szolgálni, az eladástól a vevői finanszírozásig és az ingatlan birtokbaadásáig. Hitel igénylés esetén akár egyedi kamatkedvezménnyel, jogosultság esetén az állami támogatásokhoz kapcsolódó felvilágosítással, teljeskörű pénzügyi tanácsadással és ügyintézéssel állunk ügyfeleink rendelkezésére. A pénzügyi tanácsadás és ügyintézői szolgáltatásunk díjmentes. ***VÁLASSZUK KI EGYÜTT AZ ÖNNEK LEGMEGFELELŐBB AJÁNLATOT! BANKI SORBAN ÁLLÁS NÉLKÜL! ***
Érdeklődni: Szlovák Ibolya +36704550993

Referencia szám: M307699-ZE

Hirdetés feltöltve: 2025. 10. 03. Utoljára módosítva: 2025. 11. 18.

Az ingatlan elhelyezkedése

Cím: Kunágota

Eladó ingatlanok a környékről

Eladó téglalakás
Eladó téglalakás

Gyula

40.5 M Ft
2 szoba
56 m2
Eladó családi ház
Eladó családi ház

Békéscsaba

35 M Ft
2 + 6 szoba
152 m2
Eladó családi ház
Eladó családi ház

Békéscsaba

84.588 M Ft
4 szoba
106 m2
Eladó családi ház
Eladó családi ház

Gyula

25 M Ft
2 szoba
70 m2
Eladó családi ház
Eladó családi ház

Kunágota

13.9 M Ft
2 + 1 szoba
63 m2
Eladó családi ház
Eladó családi ház

Doboz

7.5 M Ft
4 szoba
100 m2
Eladó téglalakás
Eladó téglalakás

Békéscsaba

23.9 M Ft
1 szoba
42 m2
Eladó családi ház
Eladó családi ház

Orosháza

79.9 M Ft
4 szoba
230 m2
Eladó családi ház
Eladó családi ház

Orosháza

21.5 M Ft
3 + 1 szoba
88 m2
Eladó családi ház
Eladó családi ház

Sarkad, Munkás utca

13.9 M Ft
3 szoba
115 m2
Eladó téglalakás
Eladó téglalakás

Békés

19.5 M Ft
1 + 2 szoba
55 m2
Eladó téglalakás
Eladó téglalakás

Gyula

40.5 M Ft
2 szoba
56 m2
Eladó családi ház
Eladó családi ház

Orosháza

1219.2 M Ft
10 szoba
770 m2
Eladó családi ház
Eladó családi ház

Sarkad

29.9 M Ft
3 szoba
93 m2
Eladó családi ház
Eladó családi ház

Tótkomlós, Lehel utca

23 M Ft
2 szoba
102 m2
Eladó családi ház
Eladó családi ház

Szeghalom

12.9 M Ft
4 szoba
150 m2
Eladó családi ház
Eladó családi ház

Gyula

159 M Ft
5 + 2 szoba
258 m2
Eladó családi ház
Eladó családi ház

Sarkad

8.7 M Ft
2 szoba
90 m2
Eladó családi ház
Eladó családi ház

Sarkad

15 M Ft
3 szoba
110 m2
Eladó családi ház
Eladó családi ház

Gyula

36.9 M Ft
4 szoba
82 m2
Eladó családi ház
Eladó családi ház

Kunágota

15.99 M Ft
2 szoba
100 m2
Eladó családi ház
Eladó családi ház

Kunágota

9.9 M Ft
2 + 1 szoba
70 m2
Eladó családi ház
Eladó családi ház

Kunágota

13.2 M Ft
4 szoba
115 m2
Eladó családi ház
Eladó családi ház

Sarkad

15 M Ft
4 szoba
150 m2

Falusi CSOK ingatlanok

Eladó családi ház
Eladó családi ház

Tésenfa, Kossuth utca 23/a

5.55 M Ft
1 + 1 szoba
109 m2
Eladó családi ház
Eladó családi ház

Sümegcsehi

119 M Ft
5 szoba
237 m2
Eladó családi ház
Eladó családi ház

Csengőd

34 M Ft
2 szoba
81 m2
Eladó családi ház
Eladó családi ház

Kondorfa

71 M Ft
2 szoba
82 m2
Eladó családi ház
Eladó családi ház

Hercegszántó, Dózsa György utca

16 M Ft
3 szoba
140 m2
Eladó családi ház
Eladó családi ház

Fertőd

189.9 M Ft
4 szoba
175 m2
Eladó családi ház
Eladó családi ház

Hajdúbagos

69.9 M Ft
5 szoba
230 m2
Eladó családi ház
Eladó családi ház

Győrság

86.9 M Ft
4 szoba
92 m2

Falusi CSOK ingatlanok

Eladó ikerház
Eladó ikerház

Balatonakali

129 M Ft
4 szoba
145 m2
Eladó családi ház
Eladó családi ház

Söpte

94.9 M Ft
4 szoba
94 m2
Eladó családi ház
Eladó családi ház

Törtel

25.9 M Ft
5 szoba
95 m2
Eladó téglalakás
Eladó téglalakás

Balatonszemes

125.2 M Ft
2 szoba
50 m2
Eladó családi ház
Eladó családi ház

Őriszentpéter

49.9 M Ft
5 + 1 szoba
131 m2
Eladó családi ház
Eladó családi ház

Kenyeri

21.8 M Ft
2 szoba
75 m2
Eladó családi ház
Eladó családi ház

Pétfürdő

44.9 M Ft
2 szoba
75 m2
Eladó családi ház
Eladó családi ház

Vaskút

64 M Ft
5 szoba
180 m2