Kedves Felhasználónk! Rendszerfrissítés miatt az oldalunk 2026. február 10-én 0 órától várhatóan 11 óráig nem lesz elérhető. Köszönjük megértésed!
Astora Art House

Eladó családi ház
Kótaj

Figyelem!

Ez az ingatlan a 2019.07.01-től induló falusi CSOK által támogatott településen található

+ 15 kép 1/18
99 000 000 Ft99 M Ft 529 412 Ft/m2
3 szoba
187 m2
építés éve:2025

Részletes adatok

Telekméret: 1500 m2
Fűtés: Egyéb
Parkolás: Garázs
Közmű: Víz, Gáz, Villany, Csatorna, KábelTV
Energetikai besorolás: A++

Az OTP Bank lakáshitel ajánlataFizetett hirdetés

+36 20 270
Megfoglak
referens

Érdekel az OTP Bank kedvezményes lakáshitel ajánlata? *

* A kérdésre „Igen” válasz bejelölése esetén, az „Üzenet küldése” gombra kattintva kijelentem, hogy az OTP Bank Nyrt. Adatkezelési tájékoztatójának tartalmát megismertem és tudomásul vettem.

Eladó családi ház leírása

Új építésű, önálló családi ház Kótajban – tágas, modern otthon kiváló elosztással és elhelyezkedéssel!

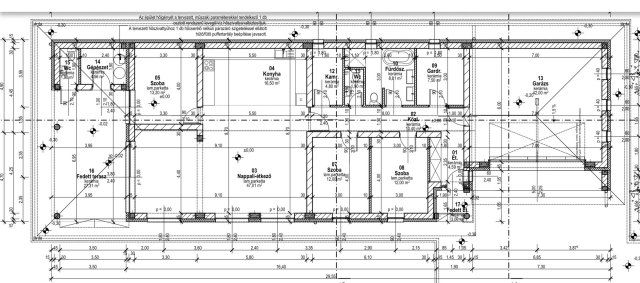
Eladásra kínálunk egy önálló, új építésű, 187 m²-es családi házat 1500 m²-es telken.

Az ingatlan tégla falazatú, szigetelt, cseréptetős.
Kiemelkedő elosztás és funkcionalitás:

A ház belső terei átgondoltan és praktikusan lettek megtervezve:

-tágas, egybenyitott nappali–konyha–étkező központi tér, mely 64 m2-es
-3 nagy hálószoba (mindegyik 12 m² fölötti),
- modern fürdőszoba káddal, zuhanyzóval és wc-vel
- 2 db külön wc
- gardrób helyiség
-háztartási helyiség,
-kamra,
-előszoba és fedett előtér,
-valamint fedett terasz a pihenéshez és kikapcsolódáshoz.
Az ingatlan minden részletében a kényelmet és a minőséget tükrözi.

Az otthon energiahatékonyságáról 30 cm vastag födém-, és 15 cm homlokzati szigetelés gondoskodik, a hőszivattyús padlófűtés és a hűtő-fűtő klíma pedig garantálják az alacsony fenntartási költségeket.
Az 1500 m²-es, parkosított kert, öntözőrendszerrel felszerelve, kiváló teret biztosít a kikapcsolódáshoz és szabadtéri programokhoz.
A duplaállásos garázs, valamint az automata kert- és garázskapu biztosítja a mindennapok kényelmét és az otthon zavartalan megközelítését.
A ház azonnal költözhető.

Hirdetés feltöltve: 2026. 01. 20. Utoljára módosítva: 2026. 01. 21.

3 szobás családi házak ára Kótajon

Ebből az összehasonlításból megtudhatod, hogyan viszonyul a lakás ára a környékbeli családi házak átlagos árához. Ez nem azt jelenti, hogy ennyivel olcsóbb vagy drágább, mint amennyit a lakás ér, hanem hogy ennyivel tér el a környékbeli átlagtól.

Ennek a m² ára
Kótaj m² ár
529 e Ft
269 e Ft -97%
Ennek az ára
Kótaj átlagár
99 M Ft m Ft
29.7 m Ft -233%

Az ingatlan elhelyezkedése

Cím: Kótaj

Eladó ingatlanok a környékről

Eladó családi ház
Eladó családi ház

Nyíregyháza

92 M Ft
3 szoba
161 m2
Eladó családi ház
Eladó családi ház

Kótaj

75 M Ft
4 szoba
114 m2
Eladó családi ház
Eladó családi ház

Kállósemjén

29.999 M Ft
2 szoba
67 m2
Eladó téglalakás
Eladó téglalakás

Nyíregyháza

59.9 M Ft
3 szoba
92 m2
Eladó családi ház
Eladó családi ház

Nyírbogdány

45.9 M Ft
3 szoba
78 m2
Eladó téglalakás
Eladó téglalakás

Nyíregyháza

0.18 M Ft
2 szoba
49 m2
Eladó családi ház
Eladó családi ház

Nyíregyháza

68 M Ft
4 szoba
220 m2
Eladó családi ház
Eladó családi ház

Nyíregyháza

190 M Ft
4 szoba
230 m2
Eladó családi ház
Eladó családi ház

Kótaj, Bajzattanya

94 M Ft
4 szoba
190 m2
Eladó családi ház
Eladó családi ház

Nyíregyháza

90 M Ft
3 szoba
170 m2
Eladó családi ház
Eladó családi ház

Balsa

38.9 M Ft
6 szoba
120 m2
Eladó családi ház
Eladó családi ház

Levelek

29.8 M Ft
2 szoba
80 m2
Eladó családi ház
Eladó családi ház

Kótaj

17.9 M Ft
2 szoba
55 m2
Eladó családi ház
Eladó családi ház

Kótaj

18.5 M Ft
2 szoba
55 m2
Eladó családi ház
Eladó családi ház

Kótaj

85 M Ft
5 szoba
130 m2
Eladó téglalakás
Eladó téglalakás

Nyíregyháza

87.5 M Ft
3 szoba
107 m2
Eladó családi ház
Eladó családi ház

Nyíregyháza

89.9 M Ft
5 szoba
274 m2
Eladó üzlethelyiség
Eladó üzlethelyiség

Nyíregyháza

30 M Ft
43 m2
Eladó családi ház
Eladó családi ház

Nyírtelek

130 M Ft
3 szoba
159 m2
Eladó családi ház
Eladó családi ház

Kótaj

17.9 M Ft
2 szoba
55 m2
Eladó családi ház
Eladó családi ház

Nyíregyháza

98 M Ft
4 szoba
125 m2
Eladó családi ház
Eladó családi ház

Nyíregyháza

430 M Ft
5 szoba
294 m2
Eladó családi ház
Eladó családi ház

Nyíregyháza

199.9 M Ft
6 szoba
200 m2
Eladó családi ház
Eladó családi ház

Nyíregyháza

79.9 M Ft
2 szoba
70 m2

Falusi CSOK ingatlanok

Eladó családi ház
Eladó családi ház

Üllés

35.5 M Ft
3 szoba
99 m2
Eladó családi ház
Eladó családi ház

Bag, Árpád utca 15

29.62 M Ft
1 + 1 szoba
155 m2
Eladó téglalakás
Eladó téglalakás

Balatonszemes

123.3 M Ft
2 szoba
70 m2
Eladó családi ház
Eladó családi ház

Alattyán

8.5 M Ft
1 + 1 szoba
70 m2
Eladó családi ház
Eladó családi ház

Bugac

55 M Ft
3 szoba
90 m2
Eladó családi ház
Eladó családi ház

Tésenfa, Kossuth utca 23/a

5.55 M Ft
1 + 1 szoba
109 m2
Eladó családi ház
Eladó családi ház

Ónod, Szent István u. 9

9.24 M Ft
1 + 1 szoba
155 m2
Eladó családi ház
Eladó családi ház

Jászalsószentgyörgy, Fő út 1

14.09 M Ft
1 + 1 szoba
116 m2

Falusi CSOK ingatlanok

Eladó családi ház
Eladó családi ház

Elek

85.9 M Ft
5 szoba
274 m2
Eladó családi ház
Eladó családi ház

Herend

128 M Ft
3 + 2 szoba
246 m2
Eladó családi ház
Eladó családi ház

Csemő

36.6 M Ft
1 szoba
48 m2
Eladó családi ház
Eladó családi ház

Ónod, Szent István u. 9

9.24 M Ft
1 + 1 szoba
155 m2
Eladó családi ház
Eladó családi ház

Illocska

15 M Ft
2 szoba
105 m2
Eladó családi ház
Eladó családi ház

Alattyán

45 M Ft
4 + 1 szoba
186 m2
Eladó családi ház
Eladó családi ház

Szakmár

12.9 M Ft
3 + 1 szoba
90 m2
Eladó családi ház
Eladó családi ház

Tápiógyörgye

44.9 M Ft
3 + 1 szoba
120 m2