Stay Family Park

Eladó családi ház
Kiskunlacháza

+ 11 kép 1/14
59 900 000 Ft59.9 M Ft 495 041 Ft/m2
4 szoba
121 m2
építés éve:1965

Részletes adatok

Állapot: Átlagos
Telekméret: 850 m2
Fűtés: Gázkazán
Energetikai besorolás: Nem adta meg a hirdető

Az OTP Bank lakáshitel ajánlataFizetett hirdetés

+36 30 324
Major Katalin Tünde
Szigetszentmiklós OTP Ip

Érdekel az OTP Bank kedvezményes lakáshitel ajánlata? *

* A kérdésre „Igen” válasz bejelölése esetén, az „Üzenet küldése” gombra kattintva kijelentem, hogy az OTP Bank Nyrt. Adatkezelési tájékoztatójának tartalmát megismertem és tudomásul vettem.

Eladó családi ház leírása

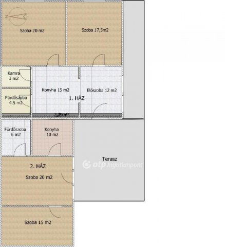
Pest megye egyik legkedveltebb részén, Kiskunlacházán eladó egy 850 m2-es telken lévő, kétgenerációs, téglaépítésű, duplakomfortos, 4 szobás, összesen 121 m2-es családi ház. Az ingatlan jelenleg 2 házból áll melyek egy ajtó beépítésével egybenyithatóak. Az 1. ház 72 m2-es, 2 szobás, átlagos állapotú. Fűtése konvektorokkal, hűtő-fűtő klímával és kandallóval megoldott. A 2. ház pár éve épült, újnak mondható. Ez a lakrész 50 m2-es, 2 szobás, kiváló állapotú. Ez utóbbi fűtéséről kombi-cirkó a hűtéséről hűtő-fűtő klíma gondoskodik. Az ingatlan H tarifával és ipari árammal is rendelkezik. A nappaliból kilépve jutunk ki a nagy méretű teraszra. Az udvarban található egy dupla beállós garázs és több tároló is. A környék infrastruktúrája nagyon jó. Minden ami számít pár perc sétával elérhető.

Amennyiben felkeltettem érdeklődését, hívjon bizalommal a hét bármely napján!

Az OTP Bankcsoport teljeskörű ügyintézéssel áll az eladók és a vevők rendelkezésére! A kínálatunkból választott ingatlan finanszírozásához kedvezményes hitelkonstrukciókat kínálunk. Az adásvételi szerződés megkötéséhez igény szerint megbízható ügyvédi közreműködést biztosítunk és segítséget nyújtunk az adásvételhez kapcsolódó ügyek intézéséhez.

Referenciaszám: M317486

Hirdetés feltöltve: 2025. 11. 19. Utoljára módosítva: 2025. 11. 19.

4 szobás családi házak ára Kiskunlacházán

Ebből az összehasonlításból megtudhatod, hogyan viszonyul a lakás ára a környékbeli családi házak átlagos árához. Ez nem azt jelenti, hogy ennyivel olcsóbb vagy drágább, mint amennyit a lakás ér, hanem hogy ennyivel tér el a környékbeli átlagtól.

Ennek a m² ára
Kiskunlacháza m² ár
495 e Ft
749 e Ft 34%
Ennek az ára
Kiskunlacháza átlagár
59.9 M Ft m Ft
81.1 m Ft 26%

Az ingatlan elhelyezkedése

Cím: Kiskunlacháza

Eladó családi házak a környékről

Eladó családi ház
Eladó családi ház

Kiskunlacháza

450 M Ft
5 + 1 szoba
405 m2
Eladó családi ház
Eladó családi ház

Kiskunlacháza

74.5 M Ft
2 szoba
90 m2
Eladó családi ház
Eladó családi ház

Tahitótfalu

188 M Ft
7 szoba
280 m2
Eladó családi ház
Eladó családi ház

Dunavarsány

69.9 M Ft
3 + 1 szoba
140 m2
Eladó családi ház
Eladó családi ház

Kiskunlacháza, Szabadság utca 20

24.85 M Ft
1 + 1 szoba
84 m2
Eladó családi ház
Eladó családi ház

Kiskunlacháza

159 M Ft
3 szoba
104 m2
Eladó családi ház
Eladó családi ház

Kiskunlacháza

65 M Ft
3 szoba
207 m2
Eladó családi ház
Eladó családi ház

Budakeszi, Makkosmária

100 M Ft
1 szoba
10 m2
Eladó családi ház
Eladó családi ház

Kiskunlacháza

89.1 M Ft
5 szoba
99 m2
Eladó családi ház
Eladó családi ház

Kiskunlacháza

450 M Ft
5 + 1 szoba
405 m2
Eladó családi ház
Eladó családi ház

Dunavarsány

49.9 M Ft
3 + 2 szoba
130 m2
Eladó családi ház
Eladó családi ház

Kiskunlacháza

35.5 M Ft
3 szoba
60 m2
Eladó családi ház
Eladó családi ház

Kiskunlacháza

450 M Ft
5 + 1 szoba
405 m2
Eladó családi ház
Eladó családi ház

Kiskunlacháza

120 M Ft
4 szoba
135 m2
Eladó családi ház
Eladó családi ház

Kiskunlacháza

119.9 M Ft
4 szoba
360 m2
Eladó családi ház
Eladó családi ház

Kiskunlacháza

120 M Ft
4 szoba
135 m2
Eladó családi ház
Eladó családi ház

Remeteszőlős

399.9 M Ft
5 + 2 szoba
260 m2
Eladó családi ház
Eladó családi ház

Kiskunlacháza

72.5 M Ft
4 szoba
91 m2
Eladó családi ház
Eladó családi ház

Tápiószentmárton

7.9 M Ft
2 + 1 szoba
86 m2
Eladó családi ház
Eladó családi ház

Budakeszi

130 M Ft
5 szoba
30 m2
Eladó családi ház
Eladó családi ház

Kiskunlacháza

450 M Ft
6 szoba
405 m2
Eladó családi ház
Eladó családi ház

Budakeszi, Budakeszi kertváros

140 M Ft
2 szoba
55 m2
Eladó családi ház
Eladó családi ház

Kiskunlacháza

159.9 M Ft
4 szoba
170 m2
Eladó családi ház
Eladó családi ház

Tápiószentmárton

48 M Ft
5 szoba
180 m2

Falusi CSOK ingatlanok

Eladó családi ház
Eladó családi ház

Zengővárkony

35 M Ft
3 szoba
87 m2
Eladó családi ház
Eladó családi ház

Enese

78.9 M Ft
4 szoba
90 m2
Eladó téglalakás
Eladó téglalakás

Balatonszemes

119.9 M Ft
2 szoba
81 m2
Eladó családi ház
Eladó családi ház

Bag

16.9 M Ft
6 szoba
160 m2
Eladó családi ház
Eladó családi ház

Alattyán

8.5 M Ft
1 + 1 szoba
70 m2
Eladó családi ház
Eladó családi ház

Újlengyel

108 M Ft
3 szoba
80 m2
Eladó családi ház
Eladó családi ház

Balatonfenyves

430 M Ft
4 szoba
274 m2
Eladó családi ház
Eladó családi ház

Magyarszék

48.5 M Ft
3 + 1 szoba
86 m2